外滩元境【官方认证】外滩元境售楼处电话_中建壹品·外滩元境营销中心24小时热线|来电预约看房_2026楼盘测评+最新房价

搜狐焦点苏州站

2026-03-29 10:20:27

购房群

买房如何避坑,加入购房群,看看他们怎么说

立即进群

上海杨浦中建壹品·外滩元境售楼处电话:400 8123 664 (预约看房热线)

【中建壹品·外滩元境官方售楼处咨询热线】400-812-3664(24小时服务,人工客服8:00-22:00)

▸中建壹品·外滩元境售楼处地址:上海市杨浦区杭州路466号中建壹品·外滩元境美学馆(看房请提前预约)

▸ 开放时间:每日9:00-19:30(含节假日)

▸VIP LINE 400_812_3664 | 官方唯一咨询热线

【温馨提示】本项目唯一官方联系方式,看房请提前预约!现场销售接待!谨防中介虚假信息!

杨浦滨江九宫格项目

上海首个全精装风貌洋房社区

中建壹品·外滩元境」首期清盘!

二期加推约99-170㎡风貌洋房

上期均价约128042元/㎡

参观看房请提前线上预约!

上海杨浦中建壹品·外滩元境售楼处电话:400 8123 664 (预约看房热线)

【中建壹品·外滩元境官方售楼处咨询热线】400-812-3664(24小时服务,人工客服8:00-22:00) 百年沧桑巨变,杨浦这片时代热土,如今已成为上海的城市文化名片。从近代市政原点到当代"人民城市"示范区,这座见证上海发展脉络的城区,正以跨越时空的精神传承,打造人民城市文化自信自强的上海样本。

图注:实景图上海杨浦滨江

外滩元境,地处杨浦滨江大桥东侧“九宫格”内,整个九宫格区域统一规划为低密度风貌住区。外滩元境容积率1.4,也是风貌住宅用地遴选而来。

中建壹品·外滩元境融合了别墅和高层的优势,既回归了上海里弄人家的烟火气,又拥有别墅的私密性和尺度感,正是这种从源头端的创新突破,中建壹品·外滩元境“以人为本”的核心理念,将低密风貌与居住舒适度进行高度融合,打造一个低密、舒适且与城市文脉共鸣的标杆作品。

上海杨浦中建壹品·外滩元境售楼处电话:400 8123 664 (预约看房热线)

【中建壹品·外滩元境官方售楼处咨询热线】400-812-3664(24小时服务,人工客服8:00-22:00)

3月8日,中建壹品在上海打造的首座豪宅产品系——中建壹品·外滩元境继首开一举创下上海风貌产品去化套数纪录,乘势而上,在“沪七条”新政出台后,交出了一份惊艳上海的答卷——首期房源全面清盘!

据了解,项目首期共136套,首次开盘仅47天实现清盘,金额劲销21亿+,刷新上海风貌产品销售记录,成功揽获上海克而瑞1-2月网签套数TOP1(数据来源:上海克而瑞),为市场注入澎湃信心。

中建壹品·外滩元境择址世界科创滨江九宫格板块,循着上海“一江一河”城市战略的宏大叙事脉络,精准落子“东外滩”与杨浦“世界科创滨江”交汇的稀贵版图。

作为上海首个低密三层风貌洋房,从规划源头便锚定“风貌洋房标杆”:约1.4低容积率远低于常规城市住区、约12米建筑限高造就3层亲地住宅,创新内环风貌的空间法则,极境设计缔造出约110%-208%的超高得房率,再以“一巷三坊,三庭四园”的景观布局串联四季景致,跳脱高层高密的传统城市居住模式,在繁华内环内,营造“洋房的低密舒适”与“别墅的静谧私享”双重生活体验。

据悉,外滩元境二期建面约99-170㎡三至四居低密风貌洋房,即将上新,仅有的84席,融合六恒气候系统与全屋智能等高端配置,以央企筑造实力,打造超越市场期待的创新产品,将再次定义上海高品质人居标准。

最新消息!上海首个全精装风貌洋房社区,直线距离杨浦滨江约500米!「中建壹品·外滩元境」二期将于后期应势加推主力面积:建面约135-170㎡洋房,芯位楼王双拼户型重磅登场,兼具稀缺占位与进阶质感,价值维度再跃升。样板间已开启预约参观!

上海杨浦中建壹品·外滩元境售楼处电话:400 8123 664 (预约看房热线)

【中建壹品·外滩元境官方售楼处咨询热线】400-812-3664(24小时服务,人工客服8:00-22:00)

示范区开放后,吸引了超百组同行踩盘调研;更夸张的是在最近的蓄客期间,甚至出现核心户型“认购率超10倍”的罕见现象。

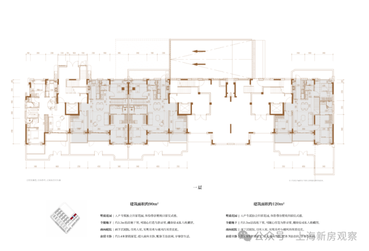
官宣户型图如下:

上海杨浦中建壹品·外滩元境售楼处电话:400 8123 664 (预约看房热线)

【中建壹品·外滩元境官方售楼处咨询热线】400-812-3664(24小时服务,人工客服8:00-22:00)

上海杨浦中建壹品·外滩元境售楼处电话:400 8123 664 (预约看房热线)

【中建壹品·外滩元境官方售楼处咨询热线】400-812-3664(24小时服务,人工客服8:00-22:00)

上海杨浦中建壹品·外滩元境售楼处电话:400 8123 664 (预约看房热线)

【中建壹品·外滩元境官方售楼处咨询热线】400-812-3664(24小时服务,人工客服8:00-22:00)

建面约110㎡样板间展示

上海杨浦中建壹品·外滩元境售楼处电话:400 8123 664 (预约看房热线)

【中建壹品·外滩元境官方售楼处咨询热线】400-812-3664(24小时服务,人工客服8:00-22:00)

上海杨浦中建壹品·外滩元境售楼处电话:400 8123 664 (预约看房热线)

【中建壹品·外滩元境官方售楼处咨询热线】400-812-3664(24小时服务,人工客服8:00-22:00)

建面约140㎡样板间展示

上海杨浦中建壹品·外滩元境售楼处电话:400 8123 664 (预约看房热线)

【中建壹品·外滩元境官方售楼处咨询热线】400-812-3664(24小时服务,人工客服8:00-22:00)

项目主打3层的超低密洋房产品,另有3套联排产品,户型类型丰富;洋房为创新的多层退台式洋房,层高高于传统常规洋房产品,3.3-3.6m层高对标别墅产品层高。

上海杨浦中建壹品·外滩元境售楼处电话:400 8123 664 (预约看房热线)

【中建壹品·外滩元境官方售楼处咨询热线】400-812-3664(24小时服务,人工客服8:00-22:00)

赠送率极高:首层私家花园、地下室、采光花园全赠送;二层大面积阳台露台赠送;三层大尺寸露台赠送,并带有闷顶。

又有高层的生活质感,像别墅没有的入户大堂、入户双玄关收纳系统,甚至做出了高层住宅才有的满飘窗通透格局。

上海杨浦中建壹品·外滩元境售楼处电话:400 8123 664 (预约看房热线)

【中建壹品·外滩元境官方售楼处咨询热线】400-812-3664(24小时服务,人工客服8:00-22:00)

上海杨浦中建壹品·外滩元境售楼处电话:400 8123 664 (预约看房热线)

【中建壹品·外滩元境官方售楼处咨询热线】400-812-3664(24小时服务,人工客服8:00-22:00)

像打造艺术品一样,打造洋房新物种:每一座风格独特、宜居舒适、令人向往的洋房都在证明,最鲜活的居住文化永远是进行时。好房子,不仅是供人品鉴的艺术品,而且能给居者带来曼妙且美好的时光之旅,通往“世界性与本土性共存”的大门。而中建壹品·外滩元境,是值得臻藏的好房子,是稀世存在的风貌洋房。

上海杨浦中建壹品·外滩元境售楼处电话:400 8123 664 (预约看房热线)

【中建壹品·外滩元境官方售楼处咨询热线】400-812-3664(24小时服务,人工客服8:00-22:00) 从设计理念上,充分尊重建筑原本肌理:项目整体布局规划由上海澜道环境设计操刀,以南北主弄为轴线,沿用修仁坊、利民里等旧称命名里弄,延续海派里弄的街巷肌理,一轴三里重现老上海的烟火气息。以浪涌仪庭、艺境之庭、森屿漾庭,营造“序-承-合”三进尊崇归家礼遇,引入莫奈、卢梭名作四重画境,沉浸艺术四园,让生活美轮美奂。

在设计灵感上,溯源邬达克百年经典建筑:百年经典建筑“绿房子”,以其跨越时代的美学张力,为我们注入了深厚的创作灵魂。作为1938年的作品,其流畅的弧形立面、贯通空间的阳光房、以及保全完整花园的智慧,至今仍散发着历久弥新的魅力。

上海杨浦中建壹品·外滩元境售楼处电话:400 8123 664 (预约看房热线)

【中建壹品·外滩元境官方售楼处咨询热线】400-812-3664(24小时服务,人工客服8:00-22:00)

图注:过程效果图,仅供参考,以实际交付为准

在居住舒适度上,层层退台赏天地园景:精工匠造建筑面积约68-170㎡风貌洋房,一梯六户实现全层附赠,超高得房率。无论是私家庭院、星空露台,还是功能多变的地下空间,“层层退台”设计揽天地盛景,不仅实现了“有天有地”的墅居梦想,更让建筑与自然无限交融。

以更细腻的笔触,精工打造奢适人居场景:内外双玄关,更好地隔绝噪音,营造静谧空间。270°飘窗将景色无缝衔接,揽四季美景“全景巨幕”。经典飞机户型,餐客一体通透格局,干湿分离明卫,让居住舒适度最大化。

凝聚了对于生活场景的深刻理解,处处匠心流露:华为全屋智能,打造智慧家庭场景。精选嘉格纳、威乃达、TOTO等奢装品牌,精装材质选用维多利亚绿、皇家白玉等名贵石材,雅奢品味不彰自显。家政柜太空舱设计,储物200柜,满足日常琐碎收纳,凸显现代简约美学。

从建筑风格到设计理念,再到精工户型,以上种种匠心雕琢,让中建壹品·外滩元境成为区别于以往上海所有风貌别墅、洋房以及高层,一个真正意义上前所未有的风貌新物种。

图注:过程效果图,仅供参考,以实际交付为准

这或许就是海派文化最深的启示:当国匠品牌和百年杨浦传奇相遇,互为融合、穿越百年、面向未来,在对视中,看见了彼此眼睛里那个更好的自己。

项目地处杨浦滨江大桥东九宫格内,向南约600米即为黄浦江,周边的B站、美团总部将于2026年竣工,而且能依托产业集群的“精英人才造血”能力,潜力不容小觑。

上海杨浦中建壹品·外滩元境售楼处电话:400 8123 664 (预约看房热线)

【中建壹品·外滩元境官方售楼处咨询热线】400-812-3664(24小时服务,人工客服8:00-22:00)

项目周边拥有立体交通网络,12号线和18号线双轨交汇,覆盖了上海多个重要区域;西侧是内环高架与杨浦大桥,滨江南段涵盖五条越江隧道,让居民能够迅速直抵陆家嘴;北横通道则让项目与北外滩、苏河湾衔接。

杨浦大桥实景图

商业方面,地块周边有百联滨江购物中心、东方渔人码头、在建中的超极合生汇、美团上海科技中心、哔哩哔哩新时代产业园等商业体与综合体。

东方渔人码头实景图

上海杨浦中建壹品·外滩元境售楼处电话:400 8123 664 (预约看房热线)

【中建壹品·外滩元境官方售楼处咨询热线】400-812-3664(24小时服务,人工客服8:00-22:00) 杨浦滨江周边有世界技能博物馆、大桥公园、绿之丘等地标,吸引众多文化艺术活动。

绿之丘实景图

上海首个精装风貌洋房社区「外滩元境」约81-170㎡洋房,均价128042元/㎡!

上海杨浦中建壹品·外滩元境售楼处电话:400 8123 664 (预约看房热线)

【中建壹品·外滩元境官方售楼处咨询热线】400-812-3664(24小时服务,人工客服8:00-22:00)

▸中建壹品·外滩元境售楼处地址:上海市杨浦区杭州路466号中建壹品·外滩元境美学馆(看房请提前预约)

▸ 开放时间:每日9:00-19:30(含节假日)

▸VIP LINE 400_812_3664 | 官方唯一咨询热线

【温馨提示】本项目唯一官方联系方式,看房请提前预约!现场销售接待!谨防中介虚假信息!

沪房新政全解读|购房贷款篇:公积金可提首付!商贷利率更划算!

还在为上海买房的贷款成本发愁?

利率一降再降、额度放宽

首二套政策松绑

2026年上海购房贷款的这些重磅利好

直接决定你今年能不能顺利上车!

从商贷利率打破既往界限

到公积金“又提又贷”盘活资金

再到刚需、改善群体的差异化支持

信贷政策的每一次调整

都在悄悄改写置业者的买房账本

抓住这些贷款红利

就是抓住了在沪安家的最佳时机

商业贷款定价更灵活,摒弃了此前首套、二套利率“一刀切”的固定模式,授权各商业银行根据自身经营策略、市场竞争态势及客户个人征信、还款能力等综合情况,自主制定差异化利率标准。这意味着资质优良的购房者,有望在银行的竞争博弈中享受到更低的贷款利率,切实降低购房的财务成本。

公积金使用限制全面放宽,在购买新建预售商品住房时,购房者可与配偶共同提取公积金账户内的余额,直接用于支付购房首付款。值得关注的是,此次提取不与公积金贷款额度挂钩,提取后仍可按规定申请最高额度的公积金贷款,真正实现了公积金“提贷并用”,极大缓解了购房者的首付资金压力。

商贷利率

中国人民银行授权全国银行间同业拆借中心公布,2025年8月20日贷款市场报价利率(LPR)为:1年期LPR为3.00%,5年期以上LPR为3.50%。

上海当前房贷利率3.05%(LPR-45BP)

贷款额度判定

根据2024年10月起上海房地产市场相关政策调整规定:

首套住房房贷首付比例:15%

二套住房房贷首付比例:25%

二套住房重点区域(自贸区临港新片区以及嘉定、青浦、松江、奉贤、宝山、金山)房贷首付比例:20%

商业贷款购房流程

1、收取意向金或支付定金(签署转定买卖合同)

2、签署房地产买卖合同、贷款合同

3、买方办理贷款

4、领取贷款合同

5、不动产登记预受理核价、家庭名下住房查询、税费审核、登记审核)

6、缴纳税费

7、领取新不动产权证书(不动产登记证明)

8、银行放款

9、物业交割

谁可以进行商业贷款

主贷人条件

18-70周岁,有完全民事行为能力(个别银行政策不同,根据当时银行政策);

有稳定收入,借款人家庭的收入是家庭负债的2倍有相对应的银行流水;

征信较好。逾期不能"连三累六"。逾期越多,征信越差,拒绝贷款的可能性越大;

首付款来源明确(不可通过借款、信用贷、经营贷等第三方方式得来);

家庭负债的认定:通过家庭成员的征信报告认定。(后附征信报告拉取方法)

抵押物条件

住宅类房屋(房屋性质为公寓)

借款年限最长不超过30年

商业贷款年限确定

与房龄有关

一般要求房龄在40年内

最长贷款年限计算:贷款年限+房龄≤70年(各银行间有差异)

与借款人年龄有关

一般可至男性65周岁,女性60周岁最长贷款年限计算:贷款年限+借款人年龄≤70周岁(各银行间有差异)

最长不超过30年(住宅)

非居住用房最长贷款年限10年

注:以上三点同时满足,以贷款年限短的为准。

商贷套数认定

首套

借款人在本市无住房的。(在限购前沪籍借款人及其配偶与各自父母登记在产证上的最多各有2套可剔除)

二套

家庭名下在本市有一套住房。(在限购前借款人及其配偶与各自父母登记在产证上的最多各有2套可剔除,但作为主贷人且正在还款的不可剔除)

注:网签合同(新房和二手房)、已经备案过的动迁协议都计入套数认定。

ShangHai

公积金贷款首付比例

首套住房最低首付比例:20%

二套住房最低首付比例:25%

二套住房重点区域(自贸区临港新片区以及嘉定、青浦、松江、奉贤、宝山、金山)房贷首付比例:20%

公积金贷款利率

1-5年(含5年):

首套:2.10%;二套:2.525%

5年以上:

首套:2.6%;二套:3.075%

注:2025年5月8日前已发放的未到期个人住房公积金贷款,自2026年1月1日起按本通知规定执行。

公积金提取

原有:购买新建预售商品住房,可申请提取公积金支付购房首付款,且不影响住房公积金贷款额度计算

新增:住房贷款、老旧电梯更新提取、冲还贷款、困难职工提取、租赁提取等

公积金贷款流程

1、收取意向金或支付定金(签署转定买卖合同)

2、签署房地产买卖合同

3、办理公积金贷款

4、贷款合同流转到房屋所在区登记中心

5、不动产登记预受理核价、家庭名下住房查询、税费审核、登记审核)

6、缴纳税费

7、领取新不动产权证书(不动产登记证明)

8、公积金放款

9、物业交割

如何办理公积金贷款

1、APP预约公积金申请时间,上下家到场填写书面材料(可以预约网签同一天办理,先网签转账后办理公积金贷款)

2、12-15个工作日后短信提示审批结果,下家现场签署正式贷款合同

3、3-5个工作日贷款合同流转至交易中心公积金窗口(跨区时间更长)

注:若公积金有断缴需要复议,额外加5到10个工作日的时间

公积金贷款套数认定

首套住房贷款

家庭名下在本市无住房、或者购买本市共有产权保障住房的,在全国未使用过公积金贷款或首次公积金贷款已经结清的;

借款人其配偶婚前与父母共有1套产权住房,或与其配偶婚前各自与父母共有各1套产权住房,或尚未建立婚姻关系且与其父母共有1套产权住房的;

二套住房贷款

家庭名下在本市已有一套住房,在全国未使用过公积金贷款或首次公积金贷款已经结清的;

不予贷款

在全国存在未结清的公积金个人住房贷款;

在全国有两次及以上的公积金个人住房贷款记录。

注:申请人家庭的范围仅限于申请人、配偶及未成年子女

公积金贷款年限判定

注:公积金贷款最长期限不超过申请人法定离退休年龄后5年"房龄"与"年龄"的计算结果,采取孰低原则。

还款方式

谁可以申请公积金贷款

1、符合国家及本市房地产调控政策规定的条件;

2、为正常缴存住房公积金的职工;

外省市缴存职工应当进行异地贷款缴存使用证明审核;共同借款人应当为借款人的配偶、父母、子女。

3、具有完全民事行为能力,已年满18周岁且未超过法定退休年龄;

4、公积金账户唯一且未被冻结,当前连续足额缴存住房公积金达到规定期限;

5、具有良好的信用记录与还款意愿

6、借款人必须是购买本市具有所有权的自住住房的产权人,已支付不低于规定比例的首付款资金

7、能够提供市公积金中心认可的担保方式;

8、符合法律法规、规章及规范性文件规定的条件。

不予贷款情形

1、家庭在本市购买第三套及以上住房的,或在全国存在未结清的公积金贷款或有两次及以上公积金贷款记录的;

2、征信报告存在当前逾期尚未偿还,或5年内逾期连续6期(含)或累计超过12期(含);

3、被纳入失信被执行人名单的;

4、提供虚假资料、虚假承诺的;

5、3年内以伪造合同、出具虚假证明、编造虚假租赁等手段骗提套取住房公积金的,或5年内存在严重失信行为的;

6、所购买房屋用途为非居住用途的,或仅购买房屋部分产权份额的(共有产权保障住房除外);

7、存在对还款意愿及还款能力产生重大不利影响的经济纠纷或违法行为的;

8、在本市存在未办结的《异地贷款职工住房公积金缴存使用证明》,包括》异地贷款职工住房公积金缴存使用证明》的状态为未注销、无回执、有准予贷款的回执但无结清凭证的;

9、法律法规、规章或有关政策规定不予贷款的情形。

说到底,好的购房政策

从来都是为了让“安家”更简单

商贷利率的灵活选择空间

公积金提首付不影响贷款的贴心设计

都是给每一个想在上海扎根的人

递上的一把“减负钥匙”

愿每一位购房者都能抓住政策红利

选到心仪的房子

在这座繁华的城市里

稳稳安放属于自己的家

全部

相关资讯

报名成功
稍后会有专业的置业顾问联系您
返回楼盘

频道导航

返回首页

看房小程序

APP下载

电话拨通后,请您手动拨打分机号

确定拨打电话

电话号码:

分机号:(可能需要拨分机号)