美兰金色宝邸-楼盘网站-上海宝山(美兰金色宝邸)户型配套-2025最新房价曝光

搜狐焦点苏州站

2025-09-27 08:00:00

购房群

买房如何避坑,加入购房群,看看他们怎么说

立即进群

上海宝山美兰金色宝邸售楼处电话:400-8828-814✔✔【预约热线】美兰金色宝邸售楼处营销中心:400-8828-814美兰金色宝邸售楼处电话/地址☎:400-882-8814(开发商热线)如有问题欢迎来电咨询,专业一对一热情服务,让您用专业眼光去买房。建面约300-317联排别墅,毛坯交付,均价约3.45-3.6万/㎡!

美兰金色宝邸售楼处营销中心:400-8828-814美兰金色宝邸售楼处电话/地址☎:400-882-8814(开发商热线)

⛩项目名称:「美兰金色宝邸」

项目简介:宝山罗泾稀缺联排别墅

最新动态:最新房源火热在售中,样板间开放中。

区域板块:宝山罗泾

开发企业:上海顾村房地产

产品价格:均价约3.45-3.6万/㎡,总价约1043-1141万/套(文末含全套一房一价表)美兰金色宝邸售楼处营销中心:400-8828-814美兰金色宝邸售楼处电话/地址☎:400-882-8814(开发商热线)

产品介绍:推出建面约300-317联排别墅,交付(全套户型图在文章内)

️商业配套:世纪华联潘沪店NO.2023、宝山区宝雄杂货店、如海超市、良友金伴(潘沪路)、光明便利、百新杂货店

周边学校:罗泾中学、宝山区罗泾镇第二幼儿园、罗泾镇中心幼儿园、上海市宝山区罗泾中心校、罗泾中心小学、罗泾镇中心幼儿园

交通配套:潘沪路罗宁路(281米)、潘泾路潘沪路(330米)、罗宁路潘沪路(400米)、宝虹家园(464米)、潘泾路陈川路(507米)、罗宁路陈川路(589米)

医疗配套:罗泾镇社区卫生宝丰站、罗泾镇社区卫生服务中心

生态配套:罗泾公园美兰金色宝邸售楼处营销中心:400-8828-814美兰金色宝邸售楼处电话/地址☎:400-882-8814(开发商热线)

美兰金色宝邸售楼处营销中心:400-8828-814美兰金色宝邸售楼处电话/地址☎:400-882-8814(开发商热线)项目位于罗泾镇中心区,周边配套成熟,罗泾中学、罗泾镇卫生服务中心仅一河之隔,周边成熟小区林立,项目西侧地块系规划商业地块,坐享城市便捷生活。10分钟内接驳轨道交通7号线美兰湖站及1号线富锦路站,尽享成熟便捷交通,出行无忧。

美兰金色宝邸售楼处营销中心:400-8828-814美兰金色宝邸售楼处电话/地址☎:400-882-8814(开发商热线)

示意图

公共交通:潘沪路罗宁路(281米)、潘泾路潘沪路(330米)、罗宁路潘沪路(400米)、宝虹家园(464米)、潘泾路陈川路(507米)、罗宁路陈川路(589米)

美兰金色宝邸售楼处营销中心:400-8828-814美兰金色宝邸售楼处电话/地址☎:400-882-8814(开发商热线)

教育资源:罗泾中学(234米)、宝山区罗泾镇第二幼儿园(461米)、罗泾镇中心幼儿园(925米)、上海市宝山区罗泾中心校(947米)、罗泾中心小学(949米)、罗泾镇中心幼儿园(993米)

美兰金色宝邸售楼处营销中心:400-8828-814美兰金色宝邸售楼处电话/地址☎:400-882-8814(开发商热线)商业配套:世纪华联潘沪店NO.2023(117米)、宝山区宝雄杂货店(133米)、如海超市(飞翔店)(148米)、良友金伴(潘沪路)(198米)、光明便利(潘沪店)(208米)、百新杂货店(217米)

示意图

医疗资源:罗泾镇社区卫生宝丰站(3053米)、罗泾镇社区卫生服务中心(272米)

银行配套:上海农商银行陈行分理处(969米)、上海农村商业银行(罗泾支行)(973米)、上海农商银行ATM(973米)、上海农村商业银行ATM(罗泾支行)(974米)、中国邮政储蓄银行(罗泾支行)(986米)

美兰金色宝邸售楼处营销中心:400-8828-814美兰金色宝邸售楼处电话/地址☎:400-882-8814(开发商热线)其它及饮食:豪大大鸡排(266米)、赵鱼头(507米)、赵鱼头成通酒家(553米)、成通大酒店(555米)、森绿人家常菜馆(674米)、都是客酒店(罗泾店)(683米)、水上饭店(陈镇路)(695米)、宝祥桥(51米)、小朱桥(114米)、宝一房产(120米)、村夫烤鱼(690米)、徐介路(333米)

美兰金色宝邸售楼处营销中心:400-8828-814美兰金色宝邸售楼处电话/地址☎:400-882-8814(开发商热线)

示意图

休闲娱乐:罗泾公园(东南门)(441米)、罗泾公园(451米)

示意图

2产品

美兰金色宝邸售楼处营销中心:400-8828-814美兰金色宝邸售楼处电话/地址☎:400-882-8814(开发商热线)

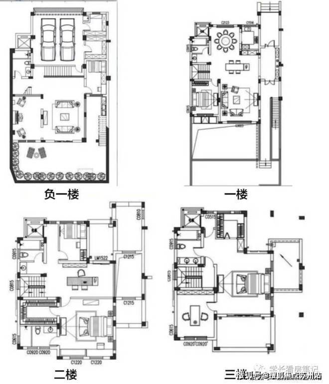
「美兰金色宝邸」由上海顾村房地产开发(集团)有限公司开发的罗泾B1-4地块居住小区(金色宝邸),小区由4幢小高层和55栋联排住宅构成。房源建面约300㎡~398㎡,总价约1000万起/套。

效果图

美兰金色宝邸售楼处营销中心:400-8828-814美兰金色宝邸售楼处电话/地址☎:400-882-8814(开发商热线)

小区建筑采用经典优雅英伦风格,近邻115亩罗泾公园仅500米,不仅饱览自然风光,更如同拥有一个天然大氧吧,时时刻刻空气清新。

美兰金色宝邸售楼处营销中心:400-8828-814美兰金色宝邸售楼处电话/地址☎:400-882-8814(开发商热线)

最新消息,「美兰金色宝邸」最新房源正在销售中,推出建面约300-317联排别墅,毛坯交付,均价约3.45-3.6万/㎡,总价约1043-1141万/套,可售房源34套。目前已预约接受预约登记,样板间售楼处开放中。

美兰金色宝邸售楼处营销中心:400-8828-814美兰金色宝邸售楼处电话/地址☎:400-882-8814(开发商热线)

「美兰金色宝邸」

样板间实拍

美兰金色宝邸售楼处营销中心:400-8828-814美兰金色宝邸售楼处电话/地址☎:400-882-8814(开发商热线)

美兰金色宝邸售楼处营销中心:400-8828-814美兰金色宝邸售楼处电话/地址☎:400-882-8814(开发商热线)

美兰金色宝邸售楼处营销中心:400-8828-814美兰金色宝邸售楼处电话/地址☎:400-882-8814(开发商热线)

备注:美兰金色宝邸

「美兰金色宝邸」

一房一价表

上海宝山美兰金色宝邸售楼处电话:400-8828-814✔✔【预约热线】美兰金色宝邸售楼处营销中心:400-8828-814美兰金色宝邸售楼处电话/地址☎:400-882-8814(开发商热线)如有问题欢迎来电咨询,专业一对一热情服务,让您用专业眼光去买房。建面约300-317联排别墅,毛坯交付,均价约3.45-3.6万/㎡!

全部

相关资讯

报名成功
稍后会有专业的置业顾问联系您
返回楼盘

频道导航

返回首页

看房小程序

APP下载

电话拨通后,请您手动拨打分机号

确定拨打电话

电话号码:

分机号:(可能需要拨分机号)