近期,园区发布了2025年青年人才政策,为来园区求职就业及创新创业的青年人才提供了诸多福利与补贴。从面试交通补贴最高2000元,到"先落户后就业"的便利政策,再到创新创业项目的启动资金支持,以及高达10万元的创业补贴,这些政策无疑为想在园区安家的年轻人提供了强有力的支持。此外,还有优租、优补、优购等安居保障服务及子女教育保障服务,让青年人才在园区能够安心发展、舒心生活。
在这样的园区青年人才政策背景下,星合晋墅这样的高品质住宅项目,正成为越来越多青年人才安家置业的理想选择。下面,让我们一起来了解这个充满生活美学的社区。
星合晋墅,一个坚持"只定制,不复制"的城市生活美学运营商。这个项目有着约50%的绿化覆盖率,容积率仅为约1.02,意味着社区环境非常舒适宜居。项目由7层的低密洋房和3层的院墅组成,面积从230平方米到350平方米的洋房,以及400平方米到700平方米的稀缺院墅,满足不同家庭的需求。如果您感兴趣,可以拨打咨询热线:18662309054了解更多详情。
18662309054
区域配套
住在星合晋墅,各种园区优质配套都在3公里黄金生活圈内,让您的生活便利又精彩。孩子的教育不用愁,从幼儿园到中学都有知名学府可选,比如华林幼儿园、双湖湾教育幼儿园、翰林小学和尹山湖中学等。健康有保障,双湖区域内有星海医院、九龙医院、独墅湖医院等权威医疗资源。出行也很方便,靠近5号和8号地铁,还有金鸡湖大道、独墅湖大道、金鸡湖隧道这三条黄金主轴,无论去哪里都快捷高效。购物娱乐选择丰富,山姆会员店、星湖天地、星月坊商业街等就在附近。闲暇时,1.6公里外的金鸡湖高尔夫俱乐部和3公里外的独墅湖公园是您放松身心的好去处。
品牌价值
星合控股,这个有着国际高端底蕴的品牌,自2003年进入苏州以来,已经在园区深耕了20多年。他们用心打造高品质住宅、奢华酒店和潮流商业,不断与时俱进,全方位打造国际化高端生活方式。他们的代表作品遍布苏州,比如苏州晋园别墅、晋合水巷邻里、晋府水巷别墅、金湖湾,还有洲际酒店、凯悦酒店等知名项目。选择星合晋墅,就是选择了一个有品质保障的家。

户型鉴赏
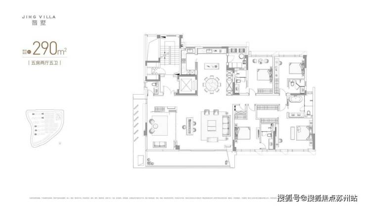
星合晋墅从"精神场域构建"到"大宅场景空间"的精心设计,让家不仅是一个居住空间,更是一个能够滋养心灵的地方。我们主推建面约230㎡-350㎡的低密洋房,空间宽敞舒适,每一处细节都彰显品质生活。此外,还有联排产品可选,满足不同家庭的需求。无论是哪种户型,都经过精心设计,让您的居住体验更加舒适惬意。
联排产品



优势分析
星合晋墅最特别的是那约11亩的湖叙SPACE,这是一个国际生活的艺术藏馆,坐落在美丽的双湖之畔。这里是一个能让时光放缓、让心灵得到栖息的特别场所。会所内设有泳池、羽毛球场、高端健身区、家族私宴空间、亲子阅读室等私享空间,让您和家人在这里享受高品质生活,同时也结识志同道合的朋友,演绎属于自己的圈层生活范本。
随着园区2025年青年人才政策的全面落地,越来越多的年轻才俊将选择在这里扎根发展。星合晋墅凭借其优越的地理位置、完善的配套、高品质居住环境,将成为这些青年人才安家置业的理想选择。项目周边的教育、医疗、商业等园区优质配套将随着园区的发展不断完善,为业主提供更加便捷舒适的生活体验。同时,星合控股20多年的品牌积淀和国际化高端生活方式的打造理念,也将为业主带来持续的价值提升。选择星合晋墅,不仅是选择了一个家,更是选择了一种高品质生活方式,与园区共同成长,共创美好未来。
联系方式:18662309054