近期楼市利好政策频出,公积金首付比例降至15%,直接降低了刚需及改善家庭的购房门槛;贷款次数"动态核减"政策让已出售公积金贷款所购住房的家庭仍有机会申请贷款;大病提取覆盖6类亲属,一年可提两次公积金;物业费提取政策破冰,让生活更加便利。这些政策无疑为购房者带来了实实在在的福利,也让置业的门槛变得更加亲民。在这样的政策背景下,一个值得关注的优质楼盘——建屋·新棠玥,正等待着懂生活的你。
基本信息
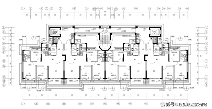
建屋·新棠玥,这个由新建元与苏州恒泰联袂打造的项目,坐落在苏州工业园区独墅湖大道与星塘街交汇处西北侧,占地面积约4万㎡。项目规划了11栋13-17层的小高层住宅,建筑密度仅为19.8%,容积率1.7,居住舒适度相当不错。户型面积段在165-225㎡之间,都是四房三卫的设计,非常适合追求品质生活的家庭。
18662309054
区域配套
住在建屋·新棠玥,生活便利度绝对让你满意。这里有"四圈环绕"的优质配套:
高浓自然圈:金鸡湖右岸客厅、独墅湖公园、弥陀泾,让你随时亲近自然,享受悠闲时光。
高效出行圈:独墅湖城市主干道、星塘街就在家门口,加上约4公里外的苏州东站(在建),出行便捷无忧。
高教创新圈:苏州工业园区图书馆、独墅湖文体中心湾国际中心,满足你对知识与文化生活的追求。
缤纷生活圈:湖东CBD、奥体中心、邻瑞广场(山姆店)、斜塘老街,购物、娱乐、餐饮一应俱全。
品牌价值
建屋·新棠玥由实力雄厚的「新建元」与「苏州恒泰」两大国企联袂打造,品质有保障。

新建元集团是园区成立最早、规模最大的国资企业,以"创新改变城市"为核心理念,代表项目有金鸡湖右岸客厅。
苏州恒泰控股则是中新合作苏州工业园区直属的大型国有企业,净资产138亿元,资产总规模365亿元,累计开发各类物业载体760万平方米,是园区商业地产、产业地产、租赁住房领域的重要运营商。
斜塘区域汇聚了园区卓越发展经验,从产城融合到人城境业全合,已成为园区人居高地,承载时代所向。在苏州园区"一主两副四片多点"的战略格局下,斜塘交汇于金鸡湖中央商务区、独墅湖科教创新区、高端制造与国际贸易区和苏州园区东站副中心之上,享更高能级城市规划,必然汇聚时代潮向与发展力。
户型鉴赏
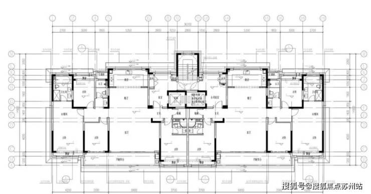
建屋·新棠玥的户型设计充分考虑了现代家庭的生活需求,面积段在165-225㎡之间,都是四房三卫的格局,空间宽敞舒适。

10#14F小高层标准层的设计注重空间的合理利用,让每一寸面积都发挥最大价值。

1#17F小高层标准层(建面约175平)的户型布局合理,动静分区明确,无论是三代同堂还是二孩家庭,都能找到各自的生活空间。
6#16F小高层标准层(建面约215㎡)则是大户型中的佼佼者,空间阔绰,适合追求高品质生活的家庭。
优势分析
建屋·新棠玥作为新建元建屋31载园区人居理念的最新实践,有着诸多独特优势:
大师修为,匠筑传世美学。项目邀请了多位国际知名设计师联袂执笔,以国际前沿美学理念,演绎具备时代精神的美学场域。
建筑设计由宋照青Lacime Architects日清设计创始人担纲,其代表作品包括上海新天地、上海中星美华村、华东师范大学丽娃河畔书吧等知名项目。
景观设计由A&N尚源景观负责,精装设计由Yan Design大研设计操刀,泛光设计则交由bpi照明设计,确保每个细节都精益求精。
项目以玥系高端产品线展开新质时代人居所需,传承苏式人居文脉,塑新时代符号大宅,以国际前瞻视野与在地文化开启全新作,展开苏式人居的场域精神。
繁华静处,心有私屿。建屋·新棠玥以新质人居为要求与前瞻,描绘人与城市共创的时代符号,赋新园区时代人居新意,迭写时代的园意与城市的生生不息。
在当前政策利好的背景下,选择一处品质优良的住宅,不仅是对当下生活的投资,更是对未来幸福生活的规划。建屋·新棠玥凭借其优越的地理位置、完善的配套设施、强大的品牌实力以及精心设计的户型,无疑是园区人居的优质选择。
随着苏州工业园区"一主两副四片多点"战略的深入推进,斜塘区域作为交汇点,未来发展潜力巨大。加上公积金新政等政策支持,现在正是置业的黄金时机。选择建屋·新棠玥,不仅是选择一处住所,更是选择一种高品质的生活方式,一个充满希望的未来。
联系方式:18662309054