上海虹口天潼里售楼处电话:400 8123 664 (预约看房热线)
【天潼里官方售楼处咨询热线】400-812-3664(24小时服务,人工客服8:00-22:00)
▸天潼里售楼处地址:上海市虹口区武昌路309号(看房请提前预约)
▸ 开放时间:每日9:00-19:30(含节假日)
▸VIP LINE 400_812_3664 | 官方唯一咨询热线
【温馨提示】本项目唯一官方联系方式,看房请提前预约!现场销售接待!谨防中介虚假信息!
上海·外滩一手新房
外滩·距离外白渡桥260米
全新一手豪宅【天潼里】
建面约458-551㎡大平层
建面约320-349㎡叠加别墅
建面约500-900㎡合院别墅
全新551㎡大平层样板房
以及别墅样板房
正式开放预约
上海虹口天潼里售楼处电话:400 8123 664 (预约看房热线)
【天潼里官方售楼处咨询热线】400-812-3664(24小时服务,人工客服8:00-22:00)
风貌小高层
建面约458-551㎡7800万起
叠加别墅24套
建面约270-330㎡5800万起
27套风貌合院别墅(天潼里)
地上建面约525-907㎡
(地上地下加起来约1500-2000㎡)
合院别墅总价1.5亿左右起
样板房已开放
有兴趣的朋友
上海虹口天潼里售楼处电话:400 8123 664 (预约看房热线)
【天潼里官方售楼处咨询热线】400-812-3664(24小时服务,人工客服8:00-22:00)
天潼里位于内环内北外滩核心,天潼路近乍浦路口,独占江(黄浦江)河(苏州河)交汇上佳钻石地段,距离外白渡桥仅200余米。


项目建造历史风貌高层、多层和里弄住宅,另有少量商业、美术馆和酒店式公寓。


天潼里住宅产品户型图特别多,达到42种。包含面积段约209-641㎡高层住宅,面积段约231-400㎡多层住宅,面积段约㎡高层住宅270-330㎡叠加别墅,面积段约525-907㎡合院别墅。
共124套住宅单元,从图示来看,全部是风貌住宅产品。以下为首开楼栋图示,73套小高层+27套合院别墅+24套叠加别墅:
让我们来看看部分户型图,先是小高层平墅:
(458-551平米超级大平层)
上海虹口天潼里售楼处电话:400 8123 664 (预约看房热线)
【天潼里官方售楼处咨询热线】400-812-3664(24小时服务,人工客服8:00-22:00)
全新551㎡样板房首发
01|通厅揽景,天幕如卷
上海虹口天潼里售楼处电话:400 8123 664 (预约看房热线)
【天潼里官方售楼处咨询热线】400-812-3664(24小时服务,人工客服8:00-22:00)
三面全明贯通厅,接驳城市天际线的剧场式生活场景
约270度三面环幕式开窗,打通阳台、客厅、餐厅与厨房,形成约19.1米南向与22.1米东向的超宽视野面宽。空间如画轴展开,面朝陆家嘴天际线,营造如剧场般的奢阔视觉感受。
02|奢阔阳台,南得尺度
南向巨幕级双阳台布局,生活场景随光线延展
户型配置约10.8米客厅阳台与约8.3米主卧阳台,南向布局让自然光与景观最大化融入日常生活,在起居与私密空间中形成连续的舒展界面,真正实现自然与生活的双重联动。
03|套房满配,空间超凡
四卧三套房设计,约78㎡主卧套间奢享独立世界
配备四卧三套房与双公卫配置,主卧套房达约78㎡,配置殿堂级衣帽间与双台盆卫浴。三间套房均设独立衣帽间,其中两间配有阳台,全方位满足居者的尊贵私密与生活仪式感。
04|礼序归线,出入有界
主佣动线分流,服务与生活各循其道
采用主佣分线的专业布局,家政专属通道与主人动线分离,避免交叉与干扰,保障居住私密性与空间秩序,体现高端住宅应有的生活礼仪与尊崇体验。
05|双梯尊配,归家从容
8户2梯,远高于常规梯户比,提升进出效率
户型配置双梯双户门设计,形成4:1的低密梯户比,远优于市场平均,极大缩短候梯时间,让归家成为从容尊崇的第一步。
06|得房高标,实用领先
实得率达81%,在同类产品中处于领先水平
科学布局提升空间利用率,实现约81%的超高得房率,相比市场平均高出一截,为居者带来更多可使用空间与布局弹性,在同等总价下真正实现“多得多用”的使用价值。
叠加别墅介绍:(下叠和上叠)
下叠别墅,是城市别墅生活的隐奢表达。沿街独立门牌,不仅昭示归家仪式,更在迎宾会客之间,展露门第的从容与尊贵。
上海虹口天潼里售楼处电话:400 8123 664 (预约看房热线)
【天潼里官方售楼处咨询热线】400-812-3664(24小时服务,人工客服8:00-22:00)
01|独立门牌,尽显门第风范
沿街独立门牌,构筑家族化的身份标识。归家有序,待客有仪,于出入之间尽呈居者品味。
02|南北双入户,兼顾礼仪与私密
南向礼仪门迎宾,北向私密入户,动静有序,便捷自如,彰显居者从容气度。
03|近30㎡私家庭院,阳光与私密兼得
约2.2m围墙设计,既保留私密,又引光入室,于内外之间构建生活的层次感。
04|约10.5米南向面宽,开阔横向尺度
南向宽幕引光入室,赋予居住以通透的仪式感。
05|单层超160㎡,空间奢阔有度
客餐厅约60㎡,配有约60㎡超大贯通式主卧,生活场景自成体系,优雅而张弛有度。
全套房布局,让家人各得其所,舒适与私密兼得。
06|郎阔格局,空间随心定义
约3.5m与3.6m层高递进延展,纵深之中蕴含尊崇尺度。
基本无承重墙设计,空间可自由定义,生活随心铺陈。
超1:1实得赠送比,让空间更丰盈、体验更进阶。
07|地下空间,功能无限延展
地下层均配采光井,舒适度保障;约6.7m层高可容纳酒窖、会所等多元功能,承载生活的更多想象
上海虹口天潼里售楼处电话:400 8123 664 (预约看房热线)
【天潼里官方售楼处咨询热线】400-812-3664(24小时服务,人工客服8:00-22:00)
上海虹口天潼里售楼处电话:400 8123 664 (预约看房热线)
【天潼里官方售楼处咨询热线】400-812-3664(24小时服务,人工客服8:00-22:00)
上海虹口天潼里售楼处电话:400 8123 664 (预约看房热线)
【天潼里官方售楼处咨询热线】400-812-3664(24小时服务,人工客服8:00-22:00)
上海虹口天潼里售楼处电话:400 8123 664 (预约看房热线)
【天潼里官方售楼处咨询热线】400-812-3664(24小时服务,人工客服8:00-22:00)
上叠别墅,是一种生活姿态。居于更高一隅,揽尽城市的光影流转。在喧嚣之上,自成一方私域天地。
01|双露台·一阳台,延展自然的呼吸
南北双向开阔布局,北向露台近10米,城市景观与自然相融。
休闲露台对话城市天际线,于阳光与风景之间,重拾生活的轻盈。
02|约10.5米南向面宽,采光极佳
横向展开的空间尺度,让阳光洒满每一处生活场景,晨昏之间皆是风景。
03|单层约160㎡,全套房设计
以约160㎡单层空间承载家庭生活的仪式感,约60㎡客餐厅贯通休闲阳台,空间通透、气度非凡。全套房设计,保证每位居者的私密与舒适,礼序有致、功能齐备。
04|自由改动,基本无承重
内部结构灵动,可根据家庭需求自由规划,空间使用无界。
赠送约3.2米层高地下室,生活可能由此倍增。
05|奢阔层高,演绎空间的尊崇感
三层约3.5m、四层约3.6m层高,纵向空间感更显阔绰,舒居尺度跃然呈现。
外滩之上·大师联袂
叠墅建面约320-349㎡
大平层建面约458-551m²
全新作品敬请期待
——品鉴热线——
上海虹口天潼里售楼处电话:400 8123 664 (预约看房热线)
【天潼里官方售楼处咨询热线】400-812-3664(24小时服务,人工客服8:00-22:00)
外滩正核板块唯一在售新房
苏州河黄浦江「一江一河」交汇原点
距外白渡桥约200米,步行约5分钟至外滩万国建筑群
与陆家嘴三件套隔江对望,坐享丰盈配套
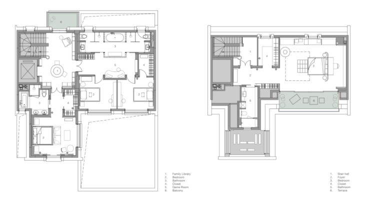
接下来介绍525平合院别墅:
近年来,上海在城市更新方面既注重保护原有城市肌理,又着重发展历史风貌建筑。这一方式虽然创造了一个多元且尊重历史的城市景观,但这些新开发的风貌住宅项目也代表着一种有别于中国传统房地产市场的新方向。
LilongLiving
里弄生活
江南绞圈房与西式联排住宅
JiangnanCourtyardHouse&WesternTownhouse
里弄房屋,也称为石库门,是中国传统四合院与西方联排住宅的独特融合,体现了海派建筑的跨文化特色传统。中国传统四合院强调内向的水平空间,而西方联排住宅则以外向的垂直空间为特色。这种建筑设计的融合反映了十九世纪至二十世纪初上海开放进取的国际精神。
ReturntotheCourtyard
栖息院落

1层设计平面
1FFloorplan
入户体验始于私家庭院。在高密度的城市环境中,庭院为住宅提供了一处解压之地,一缕新鲜空气。因此,在平面布局上,我们将所有重要空间布置在庭院周边,以充分利用庭院空间。
上海虹口天潼里售楼处电话:400 8123 664 (预约看房热线)
【天潼里官方售楼处咨询热线】400-812-3664(24小时服务,人工客服8:00-22:00)
庭院
Courtyard
从庭院地面层,可以看到客厅和餐厅的内部空间。客厅在立面上向内凹陷,形成了一条有遮盖的走廊,通向房屋定制的深铜色入户大门。
入户门
EntryDoor
入户空间由一个简约的门厅和楼梯厅组成,门厅配有控制台和嵌入式衣柜。以多功能圆桌为中心的楼梯厅连接着楼梯、电梯、客用卫生间和客厅。空间采用白色洞石搭配特制染色的胡桃木,其浅色调与洞石和谐呼应,同时保留了胡桃木独特的纹理特征。
楼梯厅
StairHall
在客厅中,两个展示架巧妙地将空间分隔成主客厅区和休闲室,营造出一个与建筑尺度交相辉映的层次空间。
上海虹口天潼里售楼处电话:400 8123 664 (预约看房热线)
【天潼里官方售楼处咨询热线】400-812-3664(24小时服务,人工客服8:00-22:00)
这样的布局提供了多样的就座选择——主客厅区保持其开阔大气,与庭院浑然一体;而配备了吧台并可俯瞰北侧小庭院的休闲室,则营造出温馨私密的氛围。
正式客厅
FormalLivingRoom
餐厅四角以高光烤漆板为基准,营造出庄重感。空间一侧临近中庭,另一侧毗邻西侧小庭院。
上海虹口天潼里售楼处电话:400 8123 664 (预约看房热线)
【天潼里官方售楼处咨询热线】400-812-3664(24小时服务,人工客服8:00-22:00)
餐厅
DiningRoom
一面贯穿地下室至阁楼七层的整体白色洞石墙体构成建筑主轴。楼梯采用纯净简约的设计,作为连接整个住宅的核心元素,与每层的风格相得益彰。
<<滑动查看swipeformore>>
1-4层楼梯间
1-4FStaircase
深铜色的栏杆和扶手融合传统与现代语汇,演变出一种当代型态,与现代白色洞石相映成趣,营造出优雅纯粹的意境。
MasteroftheCourtyard
大隐隐于市
整个三层都属于主卧套间。我们非常重视这一层空间的秩序感和流线,并尝试了多种方案。最终我们没有将主卧室空间直接紧贴面向庭院的窗户,而是借鉴上海老洋房的做法,在中间增加了一个过渡空间——‘阳光房’。
这个空间不仅解决了整层的交通动线,更重要的是,考虑到里弄建筑之间的紧密距离,通过将最私密的卧室区域与大窗户分开来确保居住者的隐私。同时为了确保主卧室区域能获得充足的自然光,我们使用折叠百叶门来分隔主空间和阳光房。

3层设计平面
3FFloorplan
主卧入口
MasterBedroomEntrance
上海虹口天潼里售楼处电话:400 8123 664 (预约看房热线)
【天潼里官方售楼处咨询热线】400-812-3664(24小时服务,人工客服8:00-22:00)
主卧室空间
MainBedroomSpace
床边的读书角落
ReadingCorner
“阳光房“
“Sunroom“
上海虹口天潼里售楼处电话:400 8123 664 (预约看房热线)
【天潼里官方售楼处咨询热线】400-812-3664(24小时服务,人工客服8:00-22:00)
深色烟熏橡木搭配EricMorris定制的黄铜五金件,将上海石库门的韵味和气质在精致的细节中得到完美诠释。
主卫
MasterBathroom
CourtyardLiving
庭院生活
2&4层设计平面

2&4FFloorplan
二层设有儿童区和父母房间。所有房间都围绕庭院布置,以充分利用景观视野。我们还将楼梯厅空间改造成家庭图书馆——在这个原本私密的楼层创造了一个公共空间。这为家庭成员增加了除客厅和地下室之外的又一互动空间,强化了我们对现代上海家庭——更多交通和爱的理念。
家庭书房
FamilyLibrary
<<滑动查看swipeformore>>
上海虹口天潼里售楼处电话:400 8123 664 (预约看房热线)
【天潼里官方售楼处咨询热线】400-812-3664(24小时服务,人工客服8:00-22:00)
父母卧房&儿童卧房
Parents’andKid’sBedrooms
儿童卫生间
Kid’sBathroom
四层阁楼是大女儿的卧室。这里的斜顶启发我们在空间内打造了一个木质小屋;配备私人浴室和衣帽间,还有一个露天阳台,仿佛这充满阳光的一层就是个独立公寓。
EndlessInterior
室内的"室内"
地下室层是娱乐和家庭聚会的主要空间,因此,我们将空间设计得更现代和随意。也正是在这里,我们突破了室内空间中跨文化对话的界限。
地下设计平面

BasementFloorplan
尽管有明确的结构分区和限制,我们还是将地下室视为一个整体空间。我们的方法是在空间中植入一个“町屋”(日本传统商住建筑)。
“町屋”概念图
“Machiya”ConceptDiagram
木屋
WoodenHouse
这个木质建筑统一了地下室空间,同时分隔出不同的功能区域。在木质建筑内部,夹层设有榻榻米茶室,下层则是影音娱乐室。大型推拉门让空间在举办派对和接待客人时能够自由流动。
茶室
TeaRoom
在“木屋”的南侧还有一个无固定方向的休闲接待空间,其中布置多组座椅区域,满足不同使用需求。一面蓝色烤漆墙锚定角落,简约现代的空间与木质建筑结构形成鲜明对比。
上海虹口天潼里售楼处电话:400 8123 664 (预约看房热线)
【天潼里官方售楼处咨询热线】400-812-3664(24小时服务,人工客服8:00-22:00)
地下客厅
BasementLivingRoom
在对角,我们开辟了一面落地窗展示酒窖,展现主人的收藏。温暖的酒窖灯光和壁炉光线映照在白橡木酒架上,为客厅带来温暖舒适的氛围。
上海虹口天潼里售楼处电话:400 8123 664 (预约看房热线)
【天潼里官方售楼处咨询热线】400-812-3664(24小时服务,人工客服8:00-22:00)
在“木屋”后方,是一个墙面和天花板都覆盖金箔的“水吧”。在这里,我们重新引入了一些当代西方设计语言——大理石地面图案、蛋形吧台和墙面护板细节。这些元素与醒目的红色高光烤漆柜相互平衡。
上海虹口天潼里售楼处电话:400 8123 664 (预约看房热线)
【天潼里官方售楼处咨询热线】400-812-3664(24小时服务,人工客服8:00-22:00)
水吧
GoldBar
样板房已开放
上海虹口天潼里售楼处电话:400 8123 664 (预约看房热线)
【天潼里官方售楼处咨询热线】400-812-3664(24小时服务,人工客服8:00-22:00)
▸天潼里售楼处地址:上海市虹口区武昌路309号(看房请提前预约)
▸ 开放时间:每日9:00-19:30(含节假日)
▸VIP LINE 400_812_3664 | 官方唯一咨询热线
【温馨提示】本项目唯一官方联系方式,看房请提前预约!现场销售接待!谨防中介虚假信息!
2026年最新房产政策解读
根据2026年3月全国两会及近期政策文件,房地产领域迎来多项重要调整,核心政策可归纳为以下几方面:
一、政府工作报告核心定调
"着力稳定房地产市场"成为2026年工作重点,相比2025年的"止跌回稳",今年更强调防止市场大幅波动,总体房价将呈现"L型"小幅震荡筑底态势,不会大涨也不会大跌。
二、土地供应政策重大调整
自然资源部新规(2026年3月)明确:
新增建设用地原则上不再用于普通商品房开发,优先保障交通、能源、水利等重大基础设施及学校、医院、保障性住房等民生工程
保障性住房及城中村改造中用于保障性住房、公用设施营业网点、零售商业等民生用的零星土地(面积不超过项目总面积10%),可按规定申请新增用地
建立新增与存量挂钩机制,年度新增城乡建设用地原则上不得超过盘活存量土地面积
三、住房政策重点方向
人口与住房政策:加强初婚初育家庭住房保障,支持多子女家庭改善性住房需求,将住房政策与人口战略深度绑定
城市更新与存量盘活:高质量推进城市更新,稳步实施城镇老旧小区、城中村等改造,盘活利用存量土地和闲置房屋设施
"好房子"建设:有序推动安全舒适绿色智慧的"好房子"建设,实施房屋品质提升工程和物业服务质量提升行动,行业正式从"有没有"转向"好不好"
四、2026年购房建议
把握政策窗口期:2026年货币政策宽松,利率处于低位,建议刚需或改善型购房者可入场锁定长期低息成本
关注"小阳春"行情:随着更多城市政策落实到位,"小阳春"行情或值得期待,但需等待具体政策细则
谨慎评估二手房:政府大量收购存量房作保障房,购买二手房时需评估所购房源或周边是否有大量房源被收购为保障房
老破小需分化评估:加大危旧房改造和物业服务质量提升,购买老破小需选择核心地段且已纳入改造计划的小区
资产优化置换:抓住政策支持窗口期,置换为符合"好房子"标准的品质盘,关注低密度、高得房率、绿色、智能化等要素
五、其他重要政策
公积金政策优化:深化住房公积金制度改革,贷款额度有望提升,使用门槛将降低,家庭互助购房提取公积金政策延续
税收优惠:换购住房个税退税政策、不满2年房产增值税降至3%、公积金贷款最低首付15%等政策延续
商转公政策放宽:取消原商贷偿还年限限制,商转公贷款最高比例从60%提升至80%
这些政策调整表明,2026年房地产市场将更加注重稳定发展、品质提升和民生保障,购房者应根据自身需求和政策导向,理性选择适合的购房时机和产品。