象屿天宸雅颂(售楼处)首页网站象屿天宸雅颂 售楼中心2025年评测-房价户型|商圈配套象屿天宸雅颂首页网站(2025最新)象屿天宸雅颂楼盘评测|最新价格户型配套

搜狐焦点苏州站

2025-06-25 11:00:34

购房群

买房如何避坑,加入购房群,看看他们怎么说

立即进群

象屿天宸雅颂售楼处电话:400-902-3966

上海象屿天宸雅颂24小时vip热线☎:400-902-3966(一对一热情服务)

欢迎致电售楼处电话,专业一对一热情服务,更多楼盘详情敬请咨询,看房请提前预约销售,这里是售楼处专属热线,专业顾问为您解答置业咨询服务,静候您的来电☎!

项目项目择址嘉定新城核心区,坐拥远香湖CAZ中央活动区规划红利,由国企象屿地产匠心打造。此次加推建面约89-141㎡的3-4房精装住宅,均价约4.5万元/㎡,总价380万起,性价比凸显。

看房请务必致电与销售确认时间,仅预约客户可享受开发商内部优惠,专属老带新推荐奖!

项目容积率仅2.2,规划13栋14-18层小高层,采用现代简约建筑风格,搭配大面积玻璃幕墙,颜值与质感兼具。社区内打造“一环两轴五园”景观体系,涵盖约600米环形跑道、中央景观轴及五大主题花园,满足全龄段休闲需求。

户型设计亮点突出,89㎡三房实现三开间朝南+南北通透,LDK一体化设计提升空间利用率;106㎡三房配置约5.5米宽厅,主卧套房带独立卫浴与衣帽间;141㎡四房做到四开间朝南+双套房设计,尺度感媲美大平层。全屋精装交付,严选科勒、方太等品牌,中央空调、地暖、新风系统一应俱全。

象屿天宸雅颂售楼处电话:400-902-3966

上海象屿天宸雅颂24小时vip热线☎:400-902-3966(一对一热情服务)

项目周边配套醇熟,直线距离11号线嘉定新城站约1.2公里,万达广场、宝龙广场等商业综合体环伺,嘉定实验学校、瑞金医院北院等优质资源近在咫尺。象屿·天宸雅颂,以国企品质、硬核产品力及高性价比,重塑嘉定新城人居标杆,现加推在即,诚邀品鉴!

象屿天宸雅颂售楼处电话:400-902-3966

上海象屿天宸雅颂24小时vip热线☎:400-902-3966(一对一热情服务)

高层户型图如下:

象屿天宸雅颂售楼处电话:400-902-3966

上海象屿天宸雅颂24小时vip热线☎:400-902-3966(一对一热情服务)

象屿天宸雅颂售楼处电话:400-902-3966

上海象屿天宸雅颂24小时vip热线☎:400-902-3966(一对一热情服务)

象屿天宸雅颂售楼处电话:400-902-3966

上海象屿天宸雅颂24小时vip热线☎:400-902-3966(一对一热情服务)

象屿天宸雅颂售楼处电话:400-902-3966

上海象屿天宸雅颂24小时vip热线☎:400-902-3966(一对一热情服务)

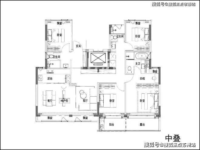
叠墅户型图如下:(过程稿,以开发商发布为准)

象屿天宸雅颂售楼处电话:400-902-3966

上海象屿天宸雅颂24小时vip热线☎:400-902-3966(一对一热情服务)

象屿天宸雅颂售楼处电话:400-902-3966

上海象屿天宸雅颂24小时vip热线☎:400-902-3966(一对一热情服务)

象屿天宸雅颂售楼处电话:400-902-3966

上海象屿天宸雅颂24小时vip热线☎:400-902-3966(一对一热情服务)

去年10月25日,上海市第六批涉住地块供地中,闵行区MHP0-1316单元01-03、01-02、03-02地块,东至浦星公路,南至姚家浜,西至大寨河,北至昌林路,竞得房企为上海象创房地产开发有限公司。

象屿天宸雅颂售楼处电话:400-902-3966上海象屿天宸雅颂24小时vip热线☎:400-902-3966(一对一热

象屿天宸雅颂售楼处电话:400-902-3966

上海象屿天宸雅颂24小时vip热线☎:400-902-3966(一对一热情服务)

象屿天宸雅颂售楼处电话:400-902-3966

上海象屿天宸雅颂24小时vip热线☎:400-902-3966(一对一热情服务)

象屿天宸雅颂售楼处电话:400-902-3966

上海象屿天宸雅颂24小时vip热线☎:400-902-3966(一对一热情服务)

地块位于8号线沈杜公路站西侧。总出让面积69492平方米,总计容面积140631平方米。

其中01-03地块出让面积25684平方米,计容面积61643平方米,容积率2.4;

01-02地块出让面积22015平方米,计容面积52836平方米,容积率2.4;

03-02地块出让面积21793平方米,计容面积26152平方米,容积率1.2。

土地性质为住宅用地,绿地率不低于35%,其中集中绿地率不低于10%。

象屿天宸雅颂售楼处电话:400-902-3966

上海象屿天宸雅颂24小时vip热线☎:400-902-3966(一对一热情服务)

地块规划方案如下:

象屿天宸雅颂售楼处电话:400-902-3966

上海象屿天宸雅颂24小时vip热线☎:400-902-3966(一对一热情服务)

地块实景如下:

象屿天宸雅颂售楼处电话:400-902-3966

上海象屿天宸雅颂24小时vip热线☎:400-902-3966(一对一热情服务)

项目分三个住宅地块开发:

01-02地块规划约524套可售住宅,无保障房

拟建8栋17-18F高层住宅。

以及若干社区配套用房,全部为两梯四户带连廊;地面无车位,全人车分流,规划有风雨连廊以及大量的架空层,预计打造泛会所概念(公共活动空间);

01-03地块规划约466套可售住宅

地块拟建9栋17-18F高层住宅、1栋20F保障房以及若干社区配套用房;

其中1#为两梯三户带连廊、4#、6#、8#为一梯两户,其余楼栋为两梯四户带连廊;

该地块地面也无车位,全人车分流,规划有风雨连廊,下沉式庭院以及大量的架空层,预计打造泛会所概念(公共活动空间)。

地块实景:

象屿天宸雅颂售楼处电话:400-902-3966

上海象屿天宸雅颂24小时vip热线☎:400-902-3966(一对一热情服务)

03-02地块为别墅产品,其中叠墅约147套,联排约35套

该地块拟建4栋7F多层住宅、4栋4F住宅、5栋3F多层住宅以及若干社区配套用房,其中4-7F住宅为叠墅,3F住宅为联排。

象屿天宸雅颂售楼处电话:400-902-3966

上海象屿天宸雅颂24小时vip热线☎:400-902-3966(一对一热情服务)

方案来看,项目产品为弧形立面,产品力应该是不错的,同时社区内部规划了风雨连廊、下沉式庭院以及大量的架空层,三个社区地面均无车位,全人分流设计。

产品上,项目整体建筑风格高层以东方海派为主,别墅以宋风美学为主;外墙采用铝板、铝格栅及大面积玻璃设计(局部使用涂料),高层边户更是打造弧形转角飘窗。

社区上配备了约2500㎡会所,设置了游⼼·泳池、天性·童玩区、思坐·休息区、律动·健身房、正念·瑜伽室、森活·⽔吧区、时宴·私宴厅等,还有约3000㎡架空层。

当然,项目也有劣势,周边有墓地以及遗憾的是商业地块并没有一起打包出让,也就意味着未来商业规划的落地更是遥遥无期,存在一定的不确定性;网传高层价格在5万+,叠墅在6.5万+左右。

目前来看,项目最大的卖点就是8号线地铁盘,如果未来价格合理,还是值得关注的。

象屿天宸雅颂售楼处电话:400-902-3966

上海象屿天宸雅颂24小时vip热线☎:400-902-3966(一对一热情服务)

象屿天宸雅颂售楼处电话:400-902-3966

上海象屿天宸雅颂24小时vip热线☎:400-902-3966(一对一热情服务)

象屿天宸雅颂售楼处电话:400-902-3966【预约☎】√√楼盘项目全面介绍,本电话为开发商提供线上预约售楼电话,楼盘项目全面介绍(包含楼盘简介,均价,房价,现房,期房,别墅,叠墅,大平层,价格,楼盘地址,户型图,交通规划,备案价,备案名,项目配套,样板间,开盘时间,认筹时间,楼盘详情,售楼处电话,最新消息,最新详情,周边配套,一房一价,最新进展等详情咨询)楼盘详情丨价格丨更多优惠丨机不可失丨欢迎致电丨诚邀品鉴!售楼处位置丨特价房丨工抵房丨剩余房源丨户型图丨最新消息丨免责声明:将文章内容综合来源于网络、只作分享,版权归原作者所有!!如有侵权,请联系我们,我们第一时间处理如有问题欢迎来电咨询,专业一对一热情服务,让您用专业眼光去买房。如果您想了解更多楼盘详情,欢迎提前预约拨打象屿天宸雅颂售楼处电话:400-902-3966【预约☎】√√

买房须知的18个常识是什么?

1、查看五证,所谓五证就是指《国有土地使用证》、《建筑用地规划许可证》、《建筑工程规划许可证》、《建筑工程施工许可证》和《商品房预售许可证》。

2、买房其实选择口碑好的开发商很有必要。一般好的开发商资质高、资金充足。

3、选户型,挑选户型时,首先要看户型的朝向。朝向优劣的顺序依次为:正南、东南、东、西南、北、西。

4、选楼层,中间层房屋的空气质量相较于低层更好,出行较高层更方便,可以说是折中。

5、很多购房者认为,当下房价过高,所以买房时,一般会在同等区域、同等地段选择价位便宜的楼盘。正确的做法是多学习选房知识,关注户型好坏,房屋质量等干货。

6、评估购房能力,对于刚需族来说,由于他们的经济能力有限,所以都会采取贷款的方式买房。而贷款每个月需要交一定数额的月供,为了保证生活质量不受影响,避免断供的风险,小编建议月供的数额最好控制在总收入的50%以内。

7、看优惠,对于开发商给出的优惠,要多打听,多分析,多判断,不要盲目追风。

8、莫心急,年轻人置业时,不宜好大喜贵,应抛弃置业必须一步到位的思想,根据自身所能承受的范围,作出合理的决策。

9、看规划,买房当然要挑楼盘,挑小区,挑户型,但是也不能只看房子,还要看房子的位置。毕竟,决定房子价值最大的因素便是地段,建议在购置房产时,要切记紧跟城市发展的方向。

10、看价格,价格挑选比较个人承受范围、交通状况、社区环境、户型结构等条件衡量楼盘价格。

11、小区环境,小区景观、绿化、配套等与生活密切相关,更是楼盘质量的体现。

12、避免极端层,顶层和底层不建议买,底层不仅容易潮湿,发霉,滋生蚊子,光线也不好,顶层一到大夏天,不仅闷热,不透气,还容易漏水。

13、远离设备层,设备层是专门供水,供电的中间楼层,要是常年居住在设备层的附近的话,不仅机器设备的噪音把人折磨得无法休息,连机器的辐射也会影响人的身体健康。

14、不可一味买大,看房一定要综合考虑,不可片面。首先是面积,面积以适用为原则,不可为大而大。

15、考虑孩子问题,买地产要考虑孩子路上的安全问题,尽量选择距离近的房子。这样可以给孩子节约大量的时间,让孩子有充裕的时间学习和休息。

16、购房定金,定金对买受人是极为不利的,使买受人在签约的时候处于不利的境地,买受人往往在定金不退的压力下,违心地接受开发商的不平等条款。

17、物业,不同的物业公司所做的服务千差万别,物业公司能否尽善尽美地完成自己的任务牵扯到小区的整体质量。

18、签认购书,认购书基本条款要约定详细,对所要购买的房屋的主要情况在认购书中予以约定。条款内容约定要合法有效,要求开发商提供作为正式签约的商品房买卖合同文本

目前北京、上海、深圳的首套房贷款利率均为 LPR - 45BP,本次 LPR 下降后,这些地区首套房贷款利率或降至 3.05%。全国 45 个重点城市 4 月首套房贷款平均利率为 3.10%,二套房贷款平均利率为 3.21%。

此外,自 2025 年 5 月 8 日起,个人住房公积金贷款利率下调 0.25 个百分点,5 年以下(含 5 年)和 5 年以上首套个人住房公积金贷款利率分别调整为 2.1%和 2.6%,5 年以下(含 5 年)和 5 年以上第二套个人住房公积金贷款利率分别调整为不低于 2.525%和 3.075%

象屿天宸雅颂售楼处电话:400-902-3966

上海象屿天宸雅颂24小时vip热线☎:400-902-3966(一对一热情服务)

全部

相关资讯

报名成功
稍后会有专业的置业顾问联系您
返回楼盘

频道导航

返回首页

看房小程序

APP下载

电话拨通后,请您手动拨打分机号

确定拨打电话

电话号码:

分机号:(可能需要拨分机号)