联仲都悦汇售楼处电话:400-812-3664
上海闵行联仲都悦汇售楼处电话☎:400-8123-664【开发商售楼处预约看房热线】(一对一热情服务)
01.项目基本信息
【开发商】:上海联仲置业有限公司
【物业】:上海仲量联行物业管理公司
【容积率】:1.0
【绿化率】:35%
【车位比】:1:2.1
【物业费】:8元/㎡/月
【本次开盘】:14套
【物业类型】:商业联排别墅
【交付标准】:毛坯
【拿地时间】:2014年8月
【交房时间】:2023年6月
联仲都悦汇售楼处电话:400-812-3664
上海闵行联仲都悦汇售楼处电话☎:400-8123-664【开发商售楼处预约看房热线】(一对一热情服务)
看房请提前致电预约,可享受内部渠道优惠!联系销售人员获取最新一房一价表,官方售楼处最新优惠底价!开发商官方销售人员将详细介绍每个户型的独特设计和优势,带您参观样板间,感受精装修的品质和温馨氛围。您还可以了解周边配套设施,包括高端购物中心、优质学校和便捷交通网络,让您的居住体验更加完美。
联仲都悦汇售楼处电话:400-8123-664
上海闵行联仲都悦汇售楼处电话☎:400-8123-664【开发商售楼处预约看房热线】(一对一热情服务)
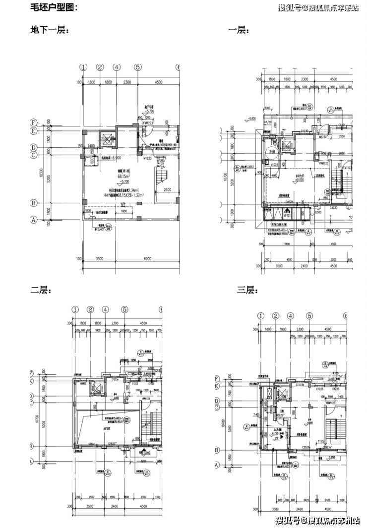
在售户型:建面约310-410平米,地上三层地下一层
(地上:一层层高3.6米/二层层高3.4米/三层层高3.4米/地下层高5.4米)
总价:约1400-1800万️
单价:约5万/平米
小区整体商业:10万方(在建)南北双花园90-300平
水电:商水&商电,电1.3元/度,水6元/吨
产权车位:约30万左右

联仲都悦汇售楼处电话:400-8123-664
上海闵行联仲都悦汇售楼处电话☎:400-8123-664【开发商售楼处预约看房热线】(一对一热情服务)
02.户型图及样板间照户
(特殊说明:户型朝向-上南下北)
约10.4米大面宽,面积达到55平
送电梯,北进门,南花园,超大地下室
客厅7米落地窗,采光明亮,尽显大气
约310平户型图▼

联仲都悦汇售楼处电话:400-8123-664
上海闵行联仲都悦汇售楼处电话☎:400-8123-664【开发商售楼处预约看房热线】(一对一热情服务)
约378~420平户型图▼

联仲都悦汇售楼处电话:400-8123-664
上海闵行联仲都悦汇售楼处电话☎:400-8123-664【开发商售楼处预约看房热线】(一对一热情服务)
约407~441平户型图▼

联仲都悦汇售楼处电话:400-812-3664
上海闵行联仲都悦汇售楼处电话☎:400-8123-664【开发商售楼处预约看房热线】(一对一热情服务)
样板间效果图如下:
联仲都悦汇售楼处咨询电话:400-8123-664本项目暂不接受临时到访,过来参观样板房请记得提前来电预约!
联仲都悦汇售楼处电话:400-8123-664
上海闵行联仲都悦汇售楼处电话☎:400-8123-664【开发商售楼处预约看房热线】(一对一热情服务)
联仲都悦汇售楼处咨询电话:400-8123-664本项目暂不接受临时到访,过来参观样板房请记得提前来电预约!
联仲都悦汇售楼处电话:400-812-3664
上海闵行联仲都悦汇售楼处电话☎:400-8123-664【开发商售楼处预约看房热线】(一对一热情服务)
联仲都悦汇售楼处咨询电话:400-8123-664本项目暂不接受临时到访,过来参观样板房请记得提前来电预约!
联仲都悦汇售楼处咨询电话:400-8123-664本项目暂不接受临时到访,过来参观样板房请记得提前来电预约!
联仲都悦汇售楼处电话:400-8123-664
上海闵行联仲都悦汇售楼处电话☎:400-8123-664【开发商售楼处预约看房热线】(一对一热情服务)
联仲都悦汇售楼处电话:400-812-3664
上海闵行联仲都悦汇售楼处电话☎:400-8123-664【开发商售楼处预约看房热线】(一对一热情服务)
联仲都悦汇售楼处咨询电话:400-8123-664本项目暂不接受临时到访,过来参观样板房请记得提前来电预约!
联仲都悦汇售楼处咨询电话:400-8123-664本项目暂不接受临时到访,过来参观样板房请记得提前来电预约!
03.项目区位配套
【联仲·都悦汇】位于闵行马桥旗忠别墅区,旗忠别墅区是上海老牌的富人区,与松江佘山、浦东东郊齐称为沪上三大国际别墅区。上海仅存少量的容积率0.18以下超低密度居住用地中,大多数在马桥旗忠别墅区。
联仲都悦汇售楼处电话:400-8123-664
上海闵行联仲都悦汇售楼处电话☎:400-8123-664【开发商售楼处预约看房热线】(一对一热情服务)
板块以低容积率、生态自然环境和高端国际品牌配置,2010年被列为上海第二批大型居住社区之一。总建面约33万方城市综合体联仲都悦汇位于旗忠板块正核心,紧临网球中心,超10万方市政绿化所环绕。
联仲都悦汇售楼处咨询电话:400-8123-664本项目暂不接受临时到访,过来参观样板房请记得提前来电预约!
【联仲都悦汇】同样是低密度别墅区里的一员,背靠绿城玫瑰园,容积率低至1.0。项目贯穿了3条自然水系,分为ABCD四个地块,其中ABC为商住办综合地块,自带商业办公。
联仲都悦汇售楼处咨询电话:400-8123-664本项目暂不接受临时到访,过来参观样板房请记得提前来电预约!
交通配套方面:项目距离嘉闵高架元江路出口3公里,毗邻G15、S32等快速主动脉,30分钟大虹桥,50分钟抵达浦东机场,快捷畅达全城。
联仲都悦汇售楼处电话:400-812-3664
上海闵行联仲都悦汇售楼处电话☎:400-8123-664【开发商售楼处预约看房热线】(一对一热情服务)
地铁:5号线华宁路站,剑川路站
公交:马莘专线:联工路站,闵行19路:银春路华宁路站
高速:嘉闵高架、沪金高速、虹梅南路高架沪昆高速、申嘉湖高速、沪闵高架
高铁:距离上海虹桥枢纽站(高铁、机场)约20km
未来规划:嘉闵线延伸段
(以上数据来源于高德地图)

联仲都悦汇售楼处咨询电话:400-8123-664本项目暂不接受临时到访,过来参观样板房请记得提前来电预约!
商业配套方面:项目自带10万方商业,为旗忠唯一的综合性商业配套,其多元化的业态结构,结合旗忠独有的资源,必将带来旗忠全新生活方式。
联仲都悦汇售楼处咨询电话:400-8123-664本项目暂不接受临时到访,过来参观样板房请记得提前来电预约!
联仲都悦汇售楼处电话:400-812-3664
上海闵行联仲都悦汇售楼处电话☎:400-8123-664【开发商售楼处预约看房热线】(一对一热情服务)
联仲都悦汇售楼处咨询电话:400-8123-664本项目暂不接受临时到访,过来参观样板房请记得提前来电预约!
生态资源方面:项目周边有马桥森林公园、旗忠高尔夫球场、旗忠网球中心、韩湘水博园、养云安缦酒店等。
联仲都悦汇售楼处电话:400-8123-664
上海闵行联仲都悦汇售楼处电话☎:400-8123-664【开发商售楼处预约看房热线】(一对一热情服务)
教育资源方面:周边有复旦万科实验学校,德威英国国际学校、斯代文森国际高中、上海美高学校。幼儿园:元祥幼儿园、富杰幼儿园启英幼儿园,大学:上海交通大学、华东师范大学

联仲都悦汇售楼处电话:400-812-3664
上海闵行联仲都悦汇售楼处电话☎:400-8123-664【开发商售楼处预约看房热线】(一对一热情服务)

联仲都悦汇售楼处咨询电话:400-8123-664本项目暂不接受临时到访,过来参观样板房请记得提前来电预约!

联仲都悦汇售楼处咨询电话:400-8123-664本项目暂不接受临时到访,过来参观样板房请记得提前来电预约!

联仲都悦汇售楼处电话:400-812-3664
上海闵行联仲都悦汇售楼处电话☎:400-8123-664【开发商售楼处预约看房热线】(一对一热情服务)
看房请提前致电预约,可享受内部渠道优惠!联系销售人员获取最新一房一价表,官方售楼处最新优惠底价!开发商官方销售人员将详细介绍每个户型的独特设计和优势,带您参观样板间,感受精装修的品质和温馨氛围。您还可以了解周边配套设施,包括高端购物中心、优质学校和便捷交通网络,让您的居住体验更加完美。
房产知识大揭秘:贷款干货全解析
在房产市场中,贷款无疑是连接购房者与心仪房产的重要桥梁。无论是首次购房的新手,还是经验丰富的投资者,对于房产贷款的了解和把握都至关重要。本文将深入探讨房产知识中的贷款干货,从贷款的基本概念、类型、申请流程到还款方式,全方位解析房产贷款的奥秘。

一、房产贷款基础篇:揭开贷款的神秘面纱
(一)房产贷款的定义与意义
房产贷款,顾名思义,是指购房者以所购房产作为抵押物,向银行等金融机构申请贷款以支付购房款项的一种融资方式。对于大多数购房者而言,全款购房往往是一笔巨大的负担,而房产贷款则提供了一种分期还款的可能,使得购房者能够在自身经济能力范围内实现购房梦想。
(二)房产贷款的基本要素
1. 贷款额度:贷款额度是指银行愿意提供给购房者的最高贷款金额,它通常基于购房者的收入、信用记录、房产价值等因素综合评估。
2. 贷款期限:贷款期限是指购房者需要在多长时间内还清贷款。一般来说,房产贷款的期限较长,可以达到10年、20年甚至30年,这有助于购房者分散还款压力。
3. 贷款利率:贷款利率是购房者需要支付给银行的贷款成本,它通常以年化利率表示。贷款利率的高低直接影响购房者的还款金额和还款压力。
4. 还款方式:还款方式是指购房者如何向银行偿还贷款本金和利息。常见的还款方式包括等额本息还款法、等额本金还款法等。
(三)房产贷款的类型
1. 商业贷款:商业贷款是指购房者向商业银行等金融机构申请的贷款,它通常用于购买商品房等可交易的房产。商业贷款的利率、期限和还款方式等由银行根据市场情况和购房者条件自主确定。
2. 公积金贷款:公积金贷款是指购房者向住房公积金管理中心申请的贷款,它通常用于购买自住住房。公积金贷款的利率较低,且贷款额度与购房者的公积金缴存额度和缴存时间等因素有关。
3. 组合贷款:组合贷款是指购房者同时申请商业贷款和公积金贷款,将两种贷款方式结合使用以满足购房需求。组合贷款结合了商业贷款和公积金贷款的优点,既能够享受公积金贷款的低利率,又能够获得商业贷款较高的贷款额度。
二、房产贷款申请篇:步步为营,顺利获贷
(一)贷款申请前的准备
1. 了解自己的信用状况:在申请贷款前,购房者需要了解自己的信用状况,包括信用报告中的信用评分、逾期记录等。信用状况是银行评估购房者还款能力和信用风险的重要依据。
2. 评估自己的还款能力:购房者需要根据自己的收入、支出等情况,评估自己是否有足够的还款能力来承担贷款。银行在审批贷款时,也会重点考察购房者的还款能力。
3. 选择合适的贷款产品和银行:购房者需要根据自己的需求和条件,选择合适的贷款产品和银行。不同的银行和贷款产品可能有不同的利率、期限、还款方式等条件,购房者需要仔细比较和选择。
(二)贷款申请流程
1. 提交贷款申请:购房者需要向选择的银行提交贷款申请,并提供相关的申请材料,如身份证、收入证明、房产证明等。
2. 银行审批:银行在收到贷款申请后,会对购房者的信用状况、还款能力等进行审批。审批通过后,银行会与购房者签订贷款合同。
3. 办理抵押登记:购房者需要与银行一起办理房产抵押登记手续,将所购房产抵押给银行作为贷款的担保。
4. 银行放款:在抵押登记手续办理完成后,银行会将贷款款项直接划入售房单位在该行的账户上,购房者从而完成购房交易。
(三)贷款申请中的注意事项
1. 提供真实材料:购房者在申请贷款时,需要提供真实、准确的申请材料。如果提供虚假材料,一旦被银行发现,可能会导致贷款申请被拒绝,甚至可能面临法律责任。
2. 注意贷款额度与期限:购房者需要根据自己的经济能力和还款计划,合理选择贷款额度和期限。过高的贷款额度或过长的贷款期限可能会增加购房者的还款压力。
3. 了解贷款费用:购房者在申请贷款时,需要了解贷款过程中可能产生的各种费用,如评估费、抵押登记费、保险费等。这些费用可能会增加购房者的成本,需要提前做好预算和准备。
财悟赢
三、房产贷款还款篇:精打细算,合理还款
(一)还款方式的选择
1. 等额本息还款法:等额本息还款法是指购房者每月偿还相同金额的贷款本息,其中本金逐月递增,利息逐月递减。这种还款方式适合收入稳定、希望每月还款金额固定的购房者。
2. 等额本金还款法:等额本金还款法是指购房者每月偿还相同金额的本金和剩余贷款在该月所产生的利息。由于本金逐月递减,利息也会逐月减少,因此每月还款金额也会逐月递减。这种还款方式适合收入较高、希望提前还款的购房者。
3. 其他还款方式:除了等额本息还款法和等额本金还款法外,还有一些银行提供其他还款方式,如按季还息到期还本、一次性还本付息等。购房者可以根据自己的需求和条件选择合适的还款方式。
(二)提前还款的利弊
1. 提前还款的利:提前还款可以减少购房者支付的利息总额,缩短贷款期限,提前实现无债一身轻的目标。对于收入增加或资金充裕的购房者来说,提前还款是一种不错的选择。
2. 提前还款的弊:提前还款可能会增加购房者的短期资金压力,因为购房者需要一次性支付较多的本金。此外,一些银行可能会对提前还款收取违约金或限制提前还款的次数和金额。
(三)还款过程中的注意事项
1. 按时还款:购房者需要按照贷款合同约定的还款方式和还款日期按时还款。逾期还款不仅会产生罚息和滞纳金,还会影响购房者的信用记录。
2. 关注利率变化:贷款利率是购房者需要关注的重要指标之一。如果市场利率发生变化,购房者需要及时了解自己的贷款利率是否也会发生变化,并提前做好还款计划调整。
3. 保留还款凭证:购房者需要保留好每次还款的凭证,以便在需要时查询和核对还款记录。如果发生还款纠纷或争议,还款凭证可以作为重要的证据。

四、房产贷款风险篇:防范风险,稳健前行
(一)利率风险
利率风险是指贷款利率变化可能给购房者带来的风险。如果市场利率上升,购房者的还款金额也会相应增加,从而增加购房者的还款压力。为了防范利率风险,购房者可以选择固定利率贷款或选择具有利率调整机制的贷款产品。
(二)信用风险
信用风险是指购房者因信用状况恶化而无法按时偿还贷款的风险。为了防范信用风险,购房者需要保持良好的信用记录,按时还款,避免逾期和不良信用记录的产生。同时,购房者还可以选择购买信用保险等方式来降低信用风险。
(三)房产价值波动风险
房产价值波动风险是指购房者所购房产的价值因市场变化而下降的风险。如果房产价值下降,购房者的抵押物价值也会相应下降,从而增加购房者的贷款风险。为了防范房产价值波动风险,购房者需要选择地理位置优越、配套设施完善、具有升值潜力的房产进行投资。
(四)其他风险
除了上述风险外,购房者还需要关注其他可能影响贷款安全的风险因素,如政策变化、经济环境等。购房者需要密切关注市场动态和政策变化,及时调整自己的投资策略和还款计划。
五、房产贷款干货分享:实用技巧与误区破解
(一)实用技巧
1. 提高贷款额度:购房者可以通过提高首付比例、提供额外的抵押物或担保人等方式来提高贷款额度。同时,购房者还可以选择信誉良好的银行和贷款产品来提高贷款额度。
2. 降低贷款利率:购房者可以通过提高信用评分、选择具有利率优惠的贷款产品或与银行协商等方式来降低贷款利率。降低贷款利率可以减少购房者的还款金额和还款压力。
3. 优化还款计划:购房者可以根据自己的经济能力和还款计划,合理选择还款方式和还款期限。同时,购房者还可以选择提前还款或调整还款计划等方式来优化还款计划。
(二)误区破解
1. 误区一:贷款额度越高越好
破解:贷款额度并非越高越好。过高的贷款额度会增加购房者的还款压力和经济负担,甚至可能导致购房者无法按时还款。购房者需要根据自己的经济能力和还款计划合理选择贷款额度。
2. 误区二:贷款期限越长越好
破解:贷款期限并非越长越好。过长的贷款期限虽然可以降低每月还款金额,但会增加购房者支付的总利息金额。购房者需要根据自己的经济能力和还款计划合理选择贷款期限。
3. 误区三:提前还款一定划算
破解:提前还款并非一定划算。对于选择固定利率贷款或已经还款较长时间的购房者来说,提前还款可能无法获得明显的利息节省效果。购房者需要根据自己的贷款产品和还款计划来判断提前还款是否划算。
六、结语
房产贷款作为购房过程中的重要环节,对于购房者来说具有至关重要的意义。通过本文的探讨,相信读者已经对房产贷款的基本概念、类型、申请流程、还款方式以及风险等方面有了更深入的了解和认识。在未来的购房过程中,希望读者能够根据自己的需求和条件选择合适的贷款产品和银行,合理规划自己的还款计划,实现购房梦想的同时降低贷款风险。同时,也希望读者能够保持警惕和理性思考,避免陷入贷款误区和陷阱,为自己的财务安全和未来生活保驾护航。