公积金新政助力安家梦想:狮子山澜庭/院,城市核心的静谧居所

搜狐焦点苏州站

2025-06-03 15:49:22

购房群

买房如何避坑,加入购房群,看看他们怎么说

立即进群

最近,公积金新政的出台,无疑为许多家庭带来了福音。特别是对于那些有未成年子女的家庭,新政更是提供了实实在在的优惠。养育未成年二孩的家庭,在使用住房公积金贷款购买首套或第二套自住住房时,贷款额度可在可贷基础上上浮30%。而养育三孩及以上的家庭,贷款额度更可上浮40%。这样的政策,无疑为许多家庭减轻了购房的经济压力,也让安家梦想更加触手可及。

在这样的政策背景下,苏州的狮子山澜庭/院项目,成为了许多家庭关注的焦点。这个由仁恒、华发和苏高新三大品牌联手打造的项目,不仅地理位置优越,更在产品设计上展现了极高的品质和匠心。接下来,让我们一起深入了解这个项目,看看它是否能够成为你理想中的家。

狮子山澜庭/院:城市核心的静谧居所

基本信息

狮子山澜庭/院,位于苏州狮子山脚下,项目总建筑面积约24万平方米,容积率仅为1.27,综合楼面价25094元/㎡。项目分为东区狮子山澜庭和西区狮子山澜院,共计37栋6-8层洋房,提供674套住宅。户型配置从168㎡到228㎡的洋房宽居,以及约450-650㎡的澜墅产品,满足不同家庭的需求。车位配比高达1:2.5,物业由仁恒物业负责,物业费为4.25元/平/月。项目一期已于2023年3月交付,二期和三期也分别于2023年6月交付。

18662309054

区域配套

狮子山澜庭/院地处新区核心,这里是高新区的金融中心,聚集了大量的金融机构和高档住宅,是高新区现代化都市形象的展示区。项目周边不仅有丰富的商业配套,如龙湖天街、金鹰国际、泉屋百货等,还有苏州博物馆西馆、苏州科技馆·工业展览馆等文化地标。此外,项目周边教育资源丰富,狮山实验小学、新区实验中学、苏州外国语学校等名校环绕,医疗资源也十分完善,明基医院、新区人民医院、苏大附二院等医疗机构在侧,为居民提供全方位的保障。

品牌价值

狮子山澜庭/院由仁恒、华发和苏高新三大品牌联手打造,这三大品牌在苏州豪宅市场都有着极高的声誉。仁恒与华发,各自在苏州深耕多年,精雕细琢的每一处细节都是品质的象征。两大巨匠的联手,以约1325亩的真山水为背景,合力打造出稀世之珍的狮山正席,为苏州献上了一部大师级的低密藏品。

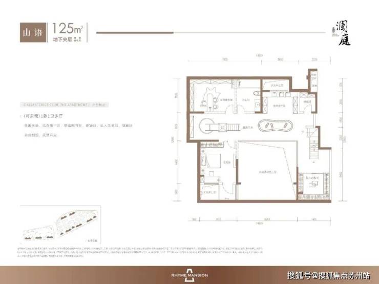
户型鉴赏

狮子山澜庭/院提供多种户型选择,从168㎡到228㎡的洋房宽居,以及约450-650㎡的澜墅产品,满足不同家庭的需求。洋房户型均为一梯两户设计,采光面宽,空间布局合理,主卧套房设计,独立衣帽间,主卫带浴缸,南向次卧套房,南北双阳台,带家政间,洄游式动线,生活空间敞亮通透。澜墅产品则创新性地采用了超大采光井设计,尽可能扩大采光面,将光引入到地下,增加地下空间的通透感和舒适度。

优劣势分析

狮子山澜庭/院的优势显而易见,地处新区核心,配套完善,品牌价值高,产品设计精良,户型选择多样,车位配比高,物业服务优质。然而,项目也存在一些劣势,如价格相对较高,可能不适合预算有限的家庭。此外,项目周边虽然商业配套丰富,但也可能带来一定的噪音和交通压力。

未来展望:狮子山澜庭/院,理想生活的起点

随着公积金新政的出台,狮子山澜庭/院这样的高品质项目,无疑成为了许多家庭的首选。无论是从地理位置、品牌价值,还是产品设计上,狮子山澜庭/院都展现出了极高的水准。对于那些追求品质生活、注重家庭幸福的人来说,这里无疑是一个理想的选择。未来,随着新区的发展和项目的成熟,狮子山澜庭/院的价值将会进一步提升,成为苏州城市新名片的一部分。

联系方式

如果你对狮子山澜庭/院感兴趣,欢迎随时联系我们,了解更多详细信息。联系电话:18662309054。

全部

相关资讯

报名成功
稍后会有专业的置业顾问联系您
返回楼盘

频道导航

返回首页

看房小程序

APP下载

电话拨通后,请您手动拨打分机号

确定拨打电话

电话号码:

分机号:(可能需要拨分机号)