华润望云值得买吗?(华润望云优劣势分析)多维度解读,华润望云楼盘图文资料!

搜狐焦点苏州站

2025-07-16 16:18:48

购房群

买房如何避坑,加入购房群,看看他们怎么说

立即进群

上海宝山华润望云售楼处电话:400-8828-814✔✔【预约热线】华润望云售楼处营销中心:400-8828-814华润望云售楼处电话/地址☎:400-882-8814(开发商热线)如有问题欢迎来电咨询,专业一对一热情服务,让您用专业眼光去买房。约108-188㎡3-4房,均价73722元/㎡!TOD综合体:无缝对接15号线丰翔路站(约200米),地库直连商业与地铁,打造百万方万象汇TOD生活圈,户型创新:108㎡三房双开间阳台+270°飘窗,188㎡四房一梯一户配环幕落地窗,得房率最高达85%。

1

基本信息

中環置地中心·望雲售楼处电话:400-8828-814【预约☎】

上半年的上海楼市,有这样一个“神盘”,六开六捷,同时以住宅套数销售TOP1、销售面积TOP2的断层级领先优势,问鼎楼市天花板!

华润望云售楼处电话:400-882-8814

上海宝山华润望云售楼处电话☎:400-8828-814(售楼处预约看房热线)

10月25日,上海第六批次土拍,中環置地中心·望雲售楼处电话:400-8828-814【预约☎】华润置地以46亿总价拿下宝山南大W12-1301单元32-04 、11-01地块,打造润府二期!

效果图展示,实际以交付为准

效果图展示,实际以交付为准

效果图展示,实际以交付为准

中環置地中心·望雲售楼处电话:400-8828-814【预约☎】

效果图展示,实际以交付为准

该宗地块与华润置地中心润府相邻,将打造全新万象汇TOD综合体——中環置地中心·望雲

中環置地中心·望雲售楼处电话:400-8828-814【预约☎】

32-04地块,规划8幢住宅,总高8-26F,可售套数约580套左右。

中環置地中心·望雲售楼处电话:400-8828-814【预约☎】

2#、7#、8#有连廊,其中2#预估是3梯5户,7#、8#是3梯6户。其余楼栋无连廊,1梯2户;

5#、6#总高8层,无架空层,其余楼栋1层均有架空;9#、10#总高17F,其余楼栋总高22-26F;

该地块无保障房,地面无车位,人车分流。

11-01地块是商业、住宅混合地块。

中環置地中心·望雲售楼处电话:400-8828-814【预约☎】

规划3栋总高17-29层住宅,商业部分有2栋总高30F的酒店、23F的综合楼、以及2栋3F的商业;

住宅和商业部分通过公共通道分隔;

住宅部分人车分流,无地面车位。车行入口在西侧祁健路上。

华润望云售楼处电话:400-882-8814

上海宝山华润望云售楼处电话☎:400-8828-814(售楼处预约看房热线)

推售信息

据悉,中環置地中心·望雲售楼处电话:400-8828-814【预约☎】将推约108-188㎡3-4房,预计将于下周样板房开放!

中環置地中心·望雲售楼处电话:400-8828-814【预约☎】

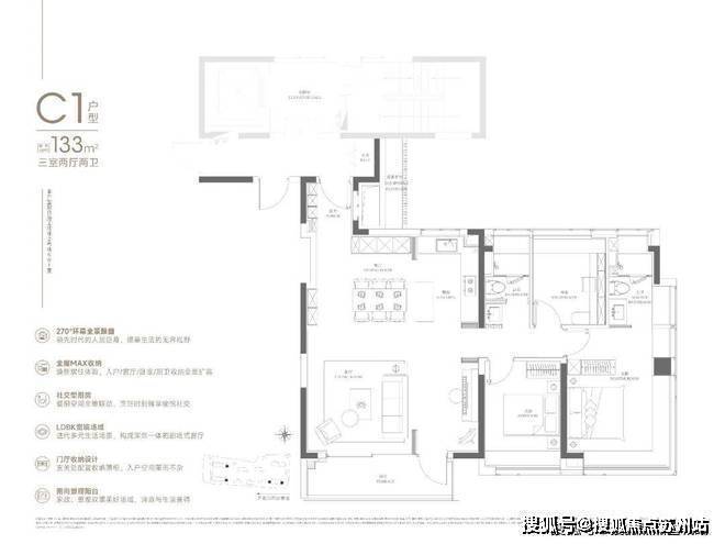
全套户型图如下:

「约108㎡ 3房2厅2卫」

「约133㎡ 3房2厅2卫」

中環置地中心·望雲售楼处电话:400-8828-814【预约☎】

「约165㎡ 4房2厅2卫」

「约188㎡ 4房2厅3卫」华润望云售楼处营销中心:400-8828-814华润望云售楼处电话/地址☎:400-882-8814(开发商热线)

上期一房一价表如下:华润望云售楼处营销中心:400-8828-814华润望云售楼处电话/地址☎:400-882-8814(开发商热线)

华润望云售楼处营销中心:400-8828-814华润望云售楼处电话/地址☎:400-882-8814(开发商热线)

华润望云售楼处营销中心:400-8828-814华润望云售楼处电话/地址☎:400-882-8814(开发商热线)

效果图展示,实际以交付为准

整个社区以主景花园联动自然教室、休闲交谊与艺术空间,形成婉转游园的酒店式迎宾水院。

效果图仅供参考,具体以实际交付为准

效果图仅供参考,具体以实际交付为准

华润望云售楼处营销中心:400-8828-814华润望云售楼处电话/地址☎:400-882-8814(开发商热线)

同时,以超奢戏水池与尊享休闲会所为核心,联动架空层,串联休憩廊架与横向端景,打造核心奢享场景。

效果图仅供参考,具体以实际交付为准

华润望云售楼处营销中心:400-8828-814华润望云售楼处电话/地址☎:400-882-8814(开发商热线)另外,整个项目拥有包括泛会所(戏水池、高定健身场所)、场景化网红架空层泛会所等全维社交场景。

华润望云售楼处营销中心:400-8828-814华润望云售楼处电话/地址☎:400-882-8814(开发商热线)

中环置地中心 地处宝山南大板块!作为宝山4个重点发展区域之一,南大同时也是上海北部最大的待开发区域之一。待开发,也就意味着尚未建成!但不管是从规划还是位置来看,南大都是上海少有的能兼顾产业和居住的板块之一。

首先南大被称为中心城区一块不可多得的“大衣料子”,总开发体量约540万方,包含两大TOD及约250米天际地标,规划绿地面积占比高达43%(来源:上海宝山)!华润望云售楼处营销中心:400-8828-814华润望云售楼处电话/地址☎:400-882-8814(开发商热线)

华润望云售楼处营销中心:400-8828-814华润望云售楼处电话/地址☎:400-882-8814(开发商热线)和其他区域边拆边建式的零散开发不同,而是统一拆改后再集中规划,这样的开发形式,也决定了这里的规划从一开始就会相对完整且高能级。比如它的产业先行,整个区域内分布了不少的科创产业。

华润望云售楼处营销中心:400-8828-814华润望云售楼处电话/地址☎:400-882-8814(开发商热线)

而且,从2035总体规划中,其实也能看出来,南大定位很高,属于全市重点推进的整体转型区域,是宝山建设上海科创中心主阵地的核心载体。

华润望云售楼处营销中心:400-8828-814华润望云售楼处电话/地址☎:400-882-8814(开发商热线)所以不管是放在全上海还是宝山,这都是一块举足轻重的产业基地。而除此之外,前面也提到,南大板块规划的绿地面积占比高达43%。特色公园40余个,人均绿色面积约39.38㎡,是上海人均绿地面积的约3倍。未来可能会是一个超越碧云的大型生态居住区。(数据来源:上海宝山区政府官网)

华润望云售楼处营销中心:400-8828-814华润望云售楼处电话/地址☎:400-882-8814(开发商热线)也就是说,在这个重点产业区域,其实早就考虑到了与生活相融的问题。讲真,在环线外的空白区域这样规划不是难事,但在上海的中环附近,近乎预留了一半的土地给到绿化,给到生活,这算得上是一件吃力不讨好的事儿。

华润望云售楼处营销中心:400-8828-814华润望云售楼处电话/地址☎:400-882-8814(开发商热线)

但南大有宜人的生态,而且还是高规格。中环置地中心·望雲位于南大智慧城C位,周边生活配套非常成熟且距离相对较近,未来随着板块规划逐步兑现,地段价值将会更加凸显。

交通方面:北侧丰翔路、西侧祁健路、东侧汇丰路已建成通车,07-01地块南侧丰皓路(祁健路-工学路)计划2024年开工建设。项目距离15号线丰翔路站步行可达,日常出行非常方便。

华润望云售楼处营销中心:400-8828-814华润望云售楼处电话/地址☎:400-882-8814(开发商热线)

华润望云售楼处营销中心:400-8828-814华润望云售楼处电话/地址☎:400-882-8814(开发商热线)

商业方面:项目本身就是一个自带商业的TOD,华润置地规划以万象系列融汇轻奢时尚、休闲生活、运动潮流等多元业态,打造北中环“都市商业新旗舰。除了未来的万象系商业(规划中),周边还有经纬汇、聚丰购物广场、上坤城市广场、山姆会员店等,购物还是比较方便的。

华润望云售楼处营销中心:400-8828-814华润望云售楼处电话/地址☎:400-882-8814(开发商热线)

医疗方面:项目周边有两大三甲级医院为健康保驾护航,分别是:仁济医院宝山分院和华山医院(宝山院区)。

华润望云售楼处营销中心:400-8828-814华润望云售楼处电话/地址☎:400-882-8814(开发商热线)

教育方面:周边荟萃南大实验幼儿园、宝山区南大实验学校、上大附小、上大附中、上海大学附属学校、上海大学等全龄化教育资源。

上海宝山华润望云售楼处电话:400-8828-814✔✔【预约热线】华润望云售楼处营销中心:400-8828-814华润望云售楼处电话/地址☎:400-882-8814(开发商热线)如有问题欢迎来电咨询,专业一对一热情服务,让您用专业眼光去买房。

全部

相关资讯

报名成功
稍后会有专业的置业顾问联系您
返回楼盘

频道导航

返回首页

看房小程序

APP下载

电话拨通后,请您手动拨打分机号

确定拨打电话

电话号码:

分机号:(可能需要拨分机号)