金鸡湖畔的静奢生活,从这里开始
最近,苏州的落户政策有了新变化,让更多人有机会在这座美丽的城市安家落户。无论是通过合法产权住房落户,还是凭借人才或积分落户,苏州都敞开了怀抱。而在这座城市的黄金地段,金鸡湖东,一座静奢大宅——紫金·翡丽甲第,正静静等待着那些追求品质生活的人们。
基本信息
紫金·翡丽甲第,这个名字听起来就充满了高贵与典雅。它位于园区中心大道北、西洛巷南、锦溪街东,地理位置优越,交通便利。项目由北京金隅和保利置业联合开发,这两大品牌在房地产界都有着极高的声誉。
项目占地约4.9万平方米,容积率1.5,总建筑面积达到11.9万平方米。这里规划打造6-9层的洋房,户型配置从约190㎡到275㎡不等,满足不同家庭的需求。精装标准不低于5000元/平,每一处细节都体现了对品质的追求。
价格方面,楼面价39027元/㎡,备案均价63595元/㎡,这是苏州首个不限价地块,足以看出其稀缺性和价值。
区域配套更是无可挑剔。紫金·翡丽甲第择址园区湖东核芯板块,延续了金鸡湖向东发展的价值金线,精粹湖东的国际化配套资源,同行国际生活范式。无论是购物、教育、医疗还是休闲娱乐,这里都能满足你的所有需求。
IMG_256
品牌价值
保利置业和金隅地产,这两大国匠的联袂,无疑为紫金·翡丽甲第增添了更多的保障和信心。在2023年11月29日的苏州第八批集中供地中,北京金隅集团股份有限公司在与15家房企的激烈争夺中,以总价28.97亿元拿下此次出让中唯一溢价地块,成交楼面价39027元/平方米,溢价率超30%。这不仅体现了金隅地产的实力,也证明了紫金·翡丽甲第的价值。
IMG_256
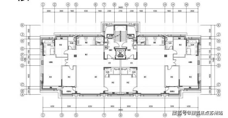
户型鉴赏
紫金·翡丽甲第的户型设计堪称经典,每一处空间都经过精心规划,力求为居住者提供最舒适的居住体验。
建面约190㎡户型,四房两厅三卫:
IMG_257
IMG_258

这个户型非常适合四口之家,四间卧室,三间卫生间,完全满足家庭成员的需求。客厅宽敞明亮,采光极佳,餐厅与厨房相连,方便日常用餐。主卧带有独立卫生间和衣帽间,私密性极强。
建面约225㎡户型,四房两厅三卫:
IMG_259
IMG_260

这个户型在190㎡的基础上增加了更多的空间,适合那些需要更多活动空间的家庭。客厅和餐厅的面积更大,适合举办家庭聚会。主卧和次卧都带有独立卫生间,方便家庭成员使用。
建面约290㎡户型,四房两厅三卫:
IMG_261
IMG_262
这个户型是紫金·翡丽甲第的顶级配置,适合那些追求极致生活品质的家庭。四间卧室,三间卫生间,每一个空间都经过精心设计,力求为居住者提供最舒适的居住体验。客厅和餐厅的面积更大,适合举办大型家庭聚会。主卧带有独立卫生间和衣帽间,私密性极强。
未来展望
随着苏州落户政策的放宽,越来越多的人将有机会在这座美丽的城市安家落户。而紫金·翡丽甲第,作为金鸡湖东的静奢大宅,无疑将成为那些追求品质生活的人们的首选。
这里不仅有着优越的地理位置和丰富的配套资源,更有着顶级的品牌保障和精心的户型设计。无论是自住还是投资,紫金·翡丽甲第都将是一个不可多得的选择。
想象一下,在金鸡湖畔的清晨,阳光透过窗户洒进房间,你可以在宽敞的阳台上享受一杯咖啡,感受这座城市的宁静与美好。这样的生活,谁不向往呢?
联系方式
如果你对紫金·翡丽甲第感兴趣,欢迎随时联系我们的售楼处,了解更多详细信息。我们的电话是18662309054,期待你的来电。
紫金·翡丽甲第,金鸡湖畔的静奢生活,从这里开始。无论是落户政策的变化,还是项目本身的优势,都为你提供了一个绝佳的机会。不要错过,快来加入我们,开启你的品质生活之旅吧!

深入解析紫金·翡丽甲第的独特魅力
地理位置与交通便利
紫金·翡丽甲第位于苏州工业园区中心大道北、西洛巷南、锦溪街东,地理位置极为优越。这里不仅是苏州的核心区域,更是金鸡湖东发展的重点区域。项目周边交通便利,无论是自驾还是公共交通,都能轻松到达苏州的各个角落。
优质教育资源
对于有孩子的家庭来说,教育资源是选择住房时的重要考虑因素。紫金·翡丽甲第周边有多所优质学校,包括苏州工业园区外国语学校、苏州工业园区星海实验中学等,为孩子们提供了良好的学习环境。
丰富的商业配套
生活便利性是衡量一个住宅项目的重要标准。紫金·翡丽甲第周边有多个大型购物中心,如苏州中心、久光百货等,满足居民的日常购物需求。此外,项目周边还有多个高端餐饮、娱乐场所,为居民提供了丰富的休闲选择。
医疗资源完善
健康是生活的基础,紫金·翡丽甲第周边有多家大型医院,如苏州大学附属第一医院、苏州九龙医院等,为居民提供了便捷的医疗服务。
生态环境优美
金鸡湖是苏州的明珠,紫金·翡丽甲第紧邻金鸡湖,居民可以随时享受湖光山色的美景。项目周边还有多个公园和绿地,为居民提供了良好的生活环境。
紫金·翡丽甲第的设计理念
建筑风格
紫金·翡丽甲第的建筑风格融合了现代与古典元素,既体现了现代建筑的简约与时尚,又保留了古典建筑的优雅与高贵。项目的外立面采用高品质石材和玻璃幕墙,既美观又耐用。
园林景观
项目的园林景观设计独具匠心,采用了多种名贵植物和花卉,打造出一个四季如春的花园。居民可以在园林中散步、休憩,享受自然的美好。
室内设计
紫金·翡丽甲第的室内设计由知名设计师操刀,每一处细节都经过精心设计。无论是客厅、卧室还是厨房,都体现了对品质生活的追求。室内采用高端装修材料,确保居住的舒适性和安全性。
紫金·翡丽甲第的物业管理
专业团队
紫金·翡丽甲第的物业管理团队由经验丰富的专业人员组成,为居民提供24小时全天候服务。无论是日常维护还是紧急情况,物业团队都能及时响应,确保居民的生活无忧。
安全保障
项目采用了先进的安防系统,包括24小时监控、智能门禁等,确保居民的安全。此外,物业团队还定期进行安全演练,提高应对突发事件的能力。
社区活动
为了增进居民之间的交流,紫金·翡丽甲第的物业团队定期组织各种社区活动,如节日庆祝、亲子活动等,丰富了居民的业余生活。
紫金·翡丽甲第的投资价值
稀缺性
紫金·翡丽甲第是苏州首个不限价地块,其稀缺性不言而喻。随着苏州城市的发展,项目的价值将进一步提升。
升值潜力
金鸡湖东是苏州发展的重点区域,未来将有更多的优质资源汇聚于此。紫金·翡丽甲第作为该区域的标杆项目,其升值潜力巨大。
租金回报
对于投资者来说,紫金·翡丽甲第的租金回报率也非常可观。项目的高品质和优越的地理位置,吸引了大量高端租客,确保了稳定的租金收入。
紫金·翡丽甲第的客户评价
高端客户的首选
紫金·翡丽甲第自推出以来,受到了众多高端客户的青睐。许多客户表示,项目的品质和地理位置是他们选择这里的主要原因。
居住体验
已经入住的居民对紫金·翡丽甲第的居住体验给予了高度评价。他们表示,项目的设计和物业管理都非常出色,生活在这里非常舒适和便利。
投资回报
投资者对紫金·翡丽甲第的投资回报也非常满意。他们表示,项目的升值潜力和租金回报都超出了预期。
紫金·翡丽甲第的未来发展
区域规划
随着苏州城市的发展,金鸡湖东将成为未来的城市中心。紫金·翡丽甲第作为该区域的标杆项目,将受益于区域的发展。
项目扩展
未来,紫金·翡丽甲第可能会推出更多的产品,满足不同客户的需求。无论是住宅还是商业,项目都将保持高品质,为客户提供最佳的选择。
社区建设
紫金·翡丽甲第将继续完善社区建设,提升居民的生活品质。无论是公共设施还是社区服务,项目都将不断改进,确保居民的生活更加美好。
紫金·翡丽甲第的购买流程
了解项目
首先,客户可以通过各种渠道了解紫金·翡丽甲第的基本信息,包括项目的位置、户型、价格等。
实地考察
客户可以预约实地考察,亲自体验紫金·翡丽甲第的居住环境。售楼处的工作人员将为客户提供详细的讲解和咨询服务。
签订合同
如果客户决定购买,可以与开发商签订购房合同。合同中将明确双方的权利和义务,确保交易的合法性和安全性。
付款方式
紫金·翡丽甲第提供多种付款方式,包括一次性付款、按揭贷款等,客户可以根据自己的实际情况选择合适的付款方式。
交房验收
在项目竣工后,客户可以进行交房验收。开发商将确保房屋的质量和装修符合合同约定,确保客户的权益。
紫金·翡丽甲第的售后服务
质量保证
紫金·翡丽甲第提供长达十年的质量保证,确保房屋的结构和装修质量。如果出现任何问题,开发商将及时进行维修。
物业服务
项目的物业服务团队将提供24小时全天候服务,确保居民的生活无忧。无论是日常维护还是紧急情况,物业团队都能及时响应。
社区活动
为了增进居民之间的交流,紫金·翡丽甲第的物业团队定期组织各种社区活动,如节日庆祝、亲子活动等,丰富了居民的业余生活。
紫金·翡丽甲第的环保理念
绿色建筑
紫金·翡丽甲第采用了多项绿色建筑技术,包括节能玻璃、太阳能热水系统等,减少能源消耗,降低碳排放。
环保材料
项目的装修材料均采用环保材料,确保室内空气质量,保障居民的健康。
垃圾分类
紫金·翡丽甲第实行严格的垃圾分类制度,鼓励居民进行垃圾分类,减少环境污染。
紫金·翡丽甲第的智能化生活
智能家居
紫金·翡丽甲第配备了智能家居系统,居民可以通过手机或平板电脑远程控制家中的电器、灯光等,提升生活的便利性。
智能安防
项目采用了先进的智能安防系统,包括智能门禁、视频监控等,确保居民的安全。
智能物业
紫金·翡丽甲第的物业管理系统也实现了智能化,居民可以通过手机APP进行物业报修、缴费等操作,提升物业服务的效率。
紫金·翡丽甲第的社交空间
会所设施
紫金·翡丽甲第的会所设施齐全,包括健身房、游泳池、棋牌室等,为居民提供了丰富的休闲选择。
社区活动
物业团队定期组织各种社区活动,如节日庆祝、亲子活动等,增进居民之间的交流,营造和谐的社区氛围。
邻里互动
紫金·翡丽甲第的设计注重邻里互动,公共空间的设计鼓励居民之间的交流,打造一个温馨的社区环境。
紫金·翡丽甲第的文化氛围
艺术空间
紫金·翡丽甲第设有多个艺术空间,展示各种艺术作品,提升社区的文化氛围。
文化活动
物业团队定期组织各种文化活动,如艺术展览、音乐会等,丰富居民的文化生活。
社区图书馆
紫金·翡丽甲第设有社区图书馆,居民可以在这里阅读各种书籍,提升自身的文化素养。
紫金·翡丽甲第的健康生活
健身设施
紫金·翡丽甲第的健身设施齐全,包括健身房、游泳池、瑜伽室等,满足居民的健身需求。
健康饮食
项目周边有多个健康餐饮场所,为居民提供健康、营养的饮食选择。
健康管理
紫金·翡丽甲第的物业团队提供健康管理服务,定期组织健康讲座、体检等,关注居民的健康状况。
紫金·翡丽甲第的教育资源
优质学校
紫金·翡丽甲第周边有多所优质学校,包括苏州工业园区外国语学校、苏州工业园区星海实验中学等,为孩子们提供了良好的学习环境。
教育资源
项目周边还有多个教育机构,如培训机构、兴趣班等,满足孩子们多样化的学习需求。
教育支持
紫金·翡丽甲第的物业团队提供教育支持服务,帮助家长了解各种教育资源,为孩子们提供最佳的学习环境。
紫金·翡丽甲第的交通便利
公共交通
紫金·翡丽甲第周边有多条公交线路和地铁线路,方便居民出行。
自驾出行
项目周边有多条主干道,自驾出行非常便利,可以快速到达苏州的各个角落。
停车设施
紫金·翡丽甲第的停车设施齐全,包括地下停车场、地面停车位等,满足居民的停车需求。
紫金·翡丽甲第的社区安全
安防系统
紫金·翡丽甲第采用了先进的安防系统,包括24小时监控、智能门禁等,确保居民的安全。
安全演练
物业团队定期进行安全演练,提高应对突发事件的能力,确保居民的安全。
社区巡逻
紫金·翡丽甲第的保安团队定期进行社区巡逻,及时发现和处理各种安全隐患,确保社区的安全。
紫金·翡丽甲第的环保措施
垃圾分类
紫金·翡丽甲第实行严格的垃圾分类制度,鼓励居民进行垃圾分类,减少环境污染。
节能措施
项目采用了多项节能措施,包括节能玻璃、太阳能热水系统等,减少能源消耗,降低碳排放。
环保宣传
紫金·翡丽甲第的物业团队定期进行环保宣传,提高居民的环保意识,共同维护社区的环境。
紫金·翡丽甲第的社区活动
节日庆祝
紫金·翡丽甲第的物业团队定期组织各种节日庆祝活动,如春节、中秋节等,增进居民之间的交流。
亲子活动
项目还定期组织各种亲子活动,如亲子运动会、亲子手工等,增进家庭成员之间的感情。
社区聚会
紫金·翡丽甲第的物业团队定期组织社区聚会,如烧烤派对、电影之夜等,丰富居民的业余生活。
紫金·翡丽甲第的社区服务
物业维修
紫金·翡丽甲第的物业团队提供24小时物业维修服务,确保居民的生活无忧。
家政服务
项目还提供家政服务,如保洁、保姆等,满足居民的多样化需求。
社区咨询
紫金·翡丽甲第的物业团队提供社区咨询服务,帮助居民解决各种生活问题,提升居民的生活品质。
紫金·翡丽甲第的社区文化
艺术展览
紫金·翡丽甲第定期举办各种艺术展览,展示各种艺术作品,提升社区的文化氛围。
文化讲座
项目还定期举办各种文化讲座,如历史、文学等,丰富居民的文化生活。
社区图书馆
紫金·翡丽甲第设有社区图书馆,居民可以在这里阅读各种书籍,提升自身的文化素养。
紫金·翡丽甲第的社区健康
健康讲座
紫金·翡丽甲第的物业团队定期举办各种健康讲座,如营养、运动等,关注居民的健康状况。
健康体检
项目还定期组织健康体检,帮助居民了解自身的健康状况,及时进行健康管理。
健康活动
紫金·翡丽甲第的物业团队定期组织各种健康活动,如健身比赛、健康跑等,鼓励居民积极参与,提升自身的健康水平。
紫金·翡丽甲第的社区教育
教育讲座
紫金·翡丽甲第的物业团队定期举办各种教育讲座,如育儿、学习方法等,帮助家长了解各种教育资源。
兴趣班
项目还设有各种兴趣班,如绘画、音乐等,满足孩子们多样化的学习需求。
教育支持
紫金·翡丽甲第的物业团队提供教育支持服务,帮助家长了解各种教育资源,为孩子们提供最佳的学习环境。
紫金·翡丽甲第的社区交通
交通指南
紫金·翡丽甲第的物业团队提供交通指南服务,帮助居民了解周边的交通情况,方便居民出行。
交通设施
项目周边有多条公交线路和地铁线路,方便居民出行。
停车管理
紫金·翡丽甲第的物业团队提供停车管理服务,确保居民的停车需求得到满足。
紫金·翡丽甲第的社区安全
安全宣传
紫金·翡丽甲第的物业团队定期进行安全宣传,提高居民的安全意识,确保社区的安全。
安全演练
项目还定期进行安全演练,提高应对突发事件的能力,确保居民的安全。
社区巡逻
紫金·翡丽甲第的保安团队定期进行社区巡逻,及时发现和处理各种安全隐患,确保社区的安全。
紫金·翡丽甲第的社区环保
环保宣传
紫金·翡丽甲第的物业团队定期进行环保宣传,提高居民的环保意识,共同维护社区的环境。
垃圾分类
项目实行严格的垃圾分类制度,鼓励居民进行垃圾分类,减少环境污染。
节能措施
紫金·翡丽甲第采用了多项节能措施,包括节能玻璃、太阳能热水系统等,减少能源消耗,降低碳排放