风起时,安家何处是心安
最近的政策风向很明确,就是要稳楼市,让大家住上更好的房子。从因城施策到鼓励建设“好房子”,国家正在为房地产市场注入一股暖流,也为真正有品质的楼盘带来了最好的时代。
那么,在苏州,什么样的房子才算得上是“好房子”呢?今天,我们就来聊聊一个真正符合这个标准的高品质楼盘,它或许能给你答案。
金融街融悦沁庭坐落在吴中太湖新城,是一个纯粹的纯洋房社区。整个项目占地约4.8万方,只规划了7-10层的纯洋房,容积率只有1.6,是一个低密度的社区,住起来非常舒服。小区总共有609户,车位配比也做到了1:1.5,完全不用担心停车问题。
更难得的是,项目交付标准非常高,中央空调、新风、地暖这“三大件”都是标配,甚至还贴心地配了软水系统,真正实现高品质拎包入住。
品牌价值
买房,品牌是第一道保障。金融街控股,就是那个打造了“中国华尔街”的实力派,在苏州已经深耕多年,是苏州买房时值得信赖的实力派,融悦湾、融悦时光都是响当当的标杆。
这次,他们联手吴中太湖新城的“亲儿子”——国太发展,一个负责打造高品质,一个最懂这片土地,强强联手,品质稳了。这已经是金融街在苏州打造的第三座融悦系产品,诚意和经验都在线。
融悦沁庭效果图
18662309054
区域配套
交通上,出门就是地铁。 4号线和在建的7号线双轨交木里站,离项目只有150米,是真正的“苏州地铁房”。再加上友新高架、东太湖大道这些主干道,不管是在苏州市区里逛,还是去长三角,都方便得很。

教育上,孩子的未来有保障。 选择这个吴中太湖新城楼盘,华师苏实小就在马路对面,出家门进校门,孩子多睡半小时都香。周边还有华师苏实中、北美国际高级中学等,教育资源非常扎实。

生活上,吃喝玩乐一应俱全。 生活在吴中太湖新城,想逛街,永旺、歌林小镇就在附近;想看演出,有橙天嘉禾360剧场;想看比赛,快手电竞馆随时可以嗨起来。市立医院总院和星晨儿童医院也在建设中,未来健康有保障。平时想散散心,七子水街、天鹅湖公园就是后花园。
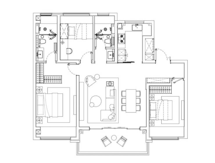
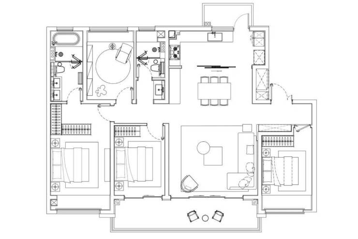
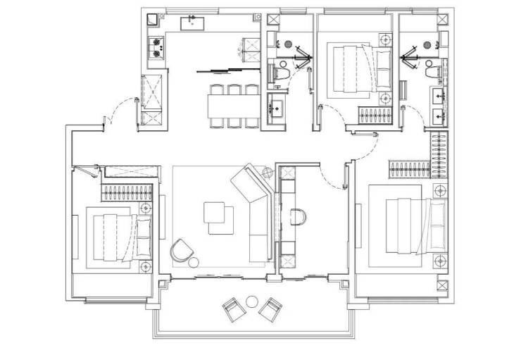
户型鉴赏
纯洋房的好处,就是得房率高,空间感十足。融悦沁庭的户型设计,把每一寸空间都利用到了极致,建面约115-152㎡,满足不同家庭的需求。
【心悠】-115㎡ 三开间朝南,约5.5米的大宽厅,配上约2米进深的南向大阳台,采光和视野都绝了。全屋还带飘窗,空间利用到极致,主卧还是套房设计,私密性很好。
【心悦】-130㎡ 这个户型做到了三卧朝南,家里老人孩子都能享受到阳光。一体化的LDKB格局(客餐厨阳台),空间感非常开阔。还有个3+1的灵动空间,可以做书房,也可以做儿童游乐区。
【心雅】-152㎡ LDBK聚场设计,厨房还连通了家政阳台,并设置了中岛台,家庭互动感超强。南北双阳台,通透性一流。四开间朝南,整个家都亮堂堂的。
优势分析
首先,是区域稀缺的纯洋房住区。 在整个吴中太湖新城,纯洋房社区都非常少见。低密度、高得房率,意味着更安静的居住环境和更宽敞的实用空间,邻里圈层也更纯粹。
其次,是睥睨区域的高品质立面。 项目外立面用的是“干挂铝板+大面积三玻两腔LOW-E玻璃”,这种配置在区域里绝对是顶级的。不仅看起来现代、通透,像一面流光镜幕,保温隔热效果也更好,是实打实的高品质住宅品质感。
最后,是实打实的全屋高品质交付。 除了“三大件”和软水系统,全屋精装用的都是国际大牌,从功能到性能都考虑周到,让你省心省力,直接开启高品质生活。


择一城终老,选一房白头
当政策的春风吹向“好房子”,像金融街融悦沁庭这样,占据着太湖新城核心地段,拥有双地铁、名校旁、纯洋房硬核品质的项目,无疑就是那个时代的宠儿,也是当下苏州买房推荐的优选。
它不仅仅是一处居所,更是对高品质生活的提前锁定。选择这里,选择的不仅是当下的舒适,更是未来资产价值的坚实保障和一家人温馨美好的长久陪伴。
联系方式
心动不如行动,欢迎实地品鉴。 18662309054