桐安里售楼处电话:400-812-3664
上海杨浦桐安里售楼处电话☎:400-8123-664【开发商售楼处预约看房热线】(一对一热情服务)
看房请提前致电预约,可享受内部渠道优惠!联系销售人员获取最新一房一价表,官方售楼处最新优惠底价!开发商官方销售人员将详细介绍每个户型的独特设计和优势,带您参观样板间,感受精装修的品质和温馨氛围。您还可以了解周边配套设施,包括高端购物中心、优质学校和便捷交通网络,让您的居住体验更加完美。
桐安里售楼处电话:400-8123-664【营销中心电话】(温馨提示:请提前来电进行预约看房或咨询项目详情)
杨浦滨江东外滩低密风貌别墅
招商平凉项目定名
「桐安里」
推出约185、235、305㎡风貌别墅
包含联排、叠加产品
仅70套
预估均价19万/㎡左右!
桐安里售楼处电话☎:400-8123-664(预约热线)✔✔✔根据《杨浦滨江“十四五”规划》,杨浦滨江将是上海最大规模的工业遗存转化和最大体量的旧区改造,通过城市更新的方式,拿出了近六成土地,共约7.46平方公里,给“大厂”和“商圈”提供了大量的土地开发空间,加快推进中节能总部、美团、B站、抖音、合生、电厂等项目建设。
桐安里售楼处电话:400-8123-664【营销中心电话】(温馨提示:请提前来电进行预约看房或咨询项目详情)
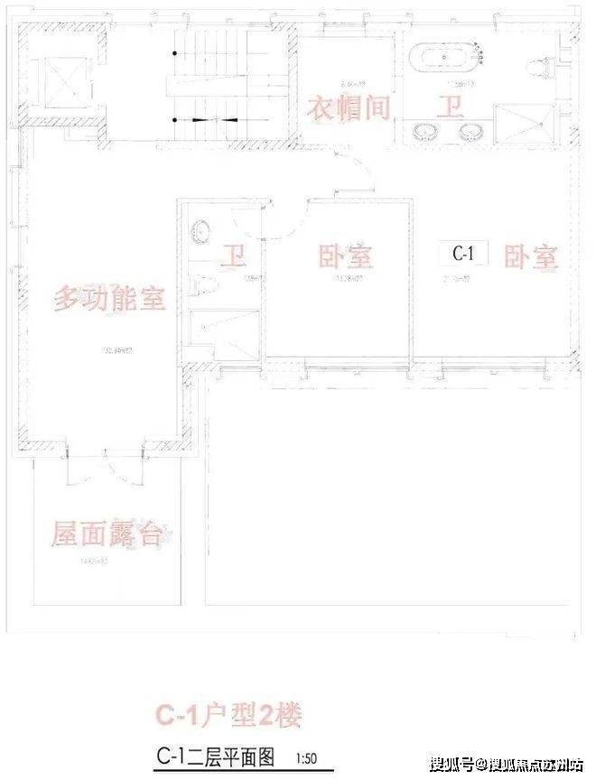
01
户型图如下
(户型图源自网络,仅供参考,最终以实际为准)
C-1户型
桐安里售楼处电话:400-812-3664
上海杨浦桐安里售楼处电话☎:400-8123-664【开发商售楼处预约看房热线】(一对一热情服务)
桐安里售楼处电话:400-812-3664
上海杨浦桐安里售楼处电话☎:400-8123-664【开发商售楼处预约看房热线】(一对一热情服务)
02
项目情况
2023年11月,招商&海门国资委拿下平凉社区01B4-04地块(平凉街道19街坊)历史风貌保护项目。
桐安里售楼处电话:400-812-3664
上海杨浦桐安里售楼处电话☎:400-8123-664【开发商售楼处预约看房热线】(一对一热情服务)
桐安里售楼处电话☎:400-8123-664(预约热线)✔✔✔从位置上看,平凉社区01B4-04地块(平凉街道19街坊)距离18号线平凉路站直线约400米,与地铁12/18号线江浦公园站直线距离约500。地块西面靠近首创天阅滨江项目,南侧靠近房地联动价21万的瑞安·翠湖滨江项目;可以说地理位置十分优越。
桐安里售楼处电话☎:400-8123-664(预约热线)✔✔✔该地块建设用地面积12666.4平方米,规划用途为二类住宅组团用地,容积率1.35,地上计容建筑面积为17099.64平方米。
本次公示设计方案如下
桐安里售楼处电话☎:400-8123-664(预约热线)✔✔✔根据此次方案公示图,项目地下建筑面积为25900平方米,共建有约15幢联排别墅,地块东南侧为3层的公租房,总户数约70套不到,主要以四联排为主。项目机动车入口设在南北两侧的惠民路和济宁路上。
桐安里售楼处电话:400-812-3664
上海杨浦桐安里售楼处电话☎:400-8123-664【开发商售楼处预约看房热线】(一对一热情服务)
项目涉及风貌保护,因此在出让阶段就有明确的要求
时间之外,历史之间
内环滨江新复古主义当代精致风貌墅
桐安里售楼处电话☎:400-8123-664(预约热线)✔✔✔招商蛇口于上海打造的第二座风貌作品、城市更新的里程碑级作品,择址杨浦内环滨江CAZ中央活动区,将里弄风貌与公馆规制创新融合,还原since1930黄金时代的人文历史底蕴与优雅风潮,撰写当代精致风貌墅的史诗。
『招商蛇口三子辉映敬献上海历史风貌作品』
桐安里售楼处电话☎:400-8123-664(预约热线)✔✔✔百年招商局旗下地产旗舰品牌——招商蛇口,入沪21载,积累了深厚的城市更新经验。从上海第一个里弄风貌别墅区、上海城市更新里程碑级作品——弘安里,到杨浦/静安/虹口三子交相辉映,以雄厚实力成为首个在沪开发三大精致风貌墅的地产开发商。
桐安里售楼处电话☎:400-8123-664(预约热线)✔✔✔江苏海鸿投资控股集团有限公司,总资产588.9亿元,企业主体信用等级为AA+。集团公司主营房地产开发、园区开发、物业服务、商业管理、科技金融、托育养老核心业务板块,致力打造成为长三角地区综合性国有企业品牌公司。
03
区域位置
桐安里售楼处电话:400-812-3664
上海杨浦桐安里售楼处电话☎:400-8123-664【开发商售楼处预约看房热线】(一对一热情服务)
『时代先驱招商与杨浦滨江的百年渊源』
1872年,李鸿章开设的轮船招商局旧址码头位于现在的杨浦滨江毛麻仓库附近;
1873年,招商局增盖仓库7座,定名为招商局北栈,现为公平路轮渡站,距离本项目地块约1.3公里。
『杨浦繁荣始于此,百年上海兴盛由此展开』
桐安里售楼处电话☎:400-8123-664(预约热线)✔✔✔过去的八埭头是杨浦的“南京路”是老上海的十里洋场,杨浦最早的商业区;1912年后八埭头已经形成了以通北路为纵向、平凉路为横向的一楼商铺街市,百货、南货、绸布等商店以及当铺、茶馆等先后开设。
『上海“十四五”规划杨浦滨江跃升全球卓越城市会客厅』
桐安里售楼处电话☎:400-8123-664(预约热线)✔✔✔在上海“十四五”规划中,杨浦滨江作为重点规划区域,不仅承载着世界级科创中心的使命,更成为丰富人文历史内涵的世界级会客厅。未来将推动数字经济与实体经济深度融合、整体转型,打造“一带、一区、一圈”数字经济地标
『“一江一河”战略,杨浦滨江成为杨浦核心地段的潜力板块』
桐安里售楼处电话☎:400-8123-664(预约热线)✔✔✔杨浦滨江全长约15.5公里滨水岸线,约2倍于黄浦滨江;规划开发体量约796万方,约2.6倍于前滩,约5倍于陆家嘴。从规划到能级,“滨江3.0”时代,正奔涌而来。
桐安里售楼处电话:400-812-3664
上海杨浦桐安里售楼处电话☎:400-8123-664【开发商售楼处预约看房热线】(一对一热情服务)
『荟萃高端科创人才形成全球创新型产业聚集地』
桐安里售楼处电话☎:400-8123-664(预约热线)✔✔✔美团上海科技中心、哗哩哗哩新世代产业园,抖音集团上海滨江中心、中国节能·上海首座等企业集群;汇聚复旦、同济等10所高校、100多家科研院所、7家国家级大学科技园力争到2025年集聚3000家以上创新型企业,产业规模超过3000亿元。
『内环滨江,黄浦江黄金中线』
桐安里售楼处电话☎:400-8123-664(预约热线)✔✔✔杨浦滨江,内环CAZ最难得大规划整体开发滨江区域。在上海“一江一河2035规划”中,杨浦内环滨江是45公里滨江带中重点规划的“科创研发”板块。同时,根据《杨浦滨江南段控制性详细规划》,杨浦滨江南段,规划八埭头、大桥东两大功能核心,未来将打造成“世界创新要素的交汇枢纽、历史未来交融的魅力水岸、卓越人才安居的海派社区”。
桐安里售楼处电话:400-812-3664
上海杨浦桐安里售楼处电话☎:400-8123-664【开发商售楼处预约看房热线】(一对一热情服务)
『艺术人文打卡地潮领滨江』
桐安里售楼处电话☎:400-8123-664(预约热线)✔✔✔作为上海2035总规划的“中央活动区”,杨浦滨江注重经济发展,更注重“人的体验”。烟草公司机修仓库,蜕变成葱郁空中花园“绿之丘”;百年编织“毛麻仓库”,化身灵动艺术场域;“长江口二号”古船博物馆,成为无数人的打卡胜地。
『立体交通枢纽,直抵城市核心区』
地铁交通:距离18号线平凉路站直线距离约400M、12号线江浦公园站直线距离约500M,通过换乘可实现6站抵达陆家嘴、5站抵达外滩、3站直达北外滩。
桐安里售楼处电话☎:400-8123-664(预约热线)✔✔✔自驾交通:多条隧道通达浦东,自驾快速抵达陆家嘴、外滩;周家嘴路地下在建的北横通道,连接长宁区、普陀区、静安区、虹口区、杨浦区的城市快速路,通车在即。
『醇熟商业林立,近享百万方商业』
百联滨江购物中心、东方渔人码头国际中心、LCM置汇旭辉广场、北外滩来福士等,醇熟商圈范围,繁华在此汇集。
『一江五园在侧,与自然和谐共生』
桐安里售楼处电话☎:400-8123-664(预约热线)✔✔✔杨浦滨江沿岸,平凉公园、江浦公园、杨浦公园、波阳公园、复兴岛公园,享受都芯自然佳境。
桐安里售楼处电话:400-812-3664
上海杨浦桐安里售楼处电话☎:400-8123-664【开发商售楼处预约看房热线】(一对一热情服务)
『六大医疗资源,健康生活全护航』
复旦大学附属妇产科医院(三甲)、上海交通大学附属新华医院(三甲)、上海市第一康复医院、杨浦区中医院、杨浦区中心医院、上海市浦东新区公利医院,近享无忧医疗配套。
免责:桐安里售楼处电话☎:400-8123-664(预约热线)✔✔✔市政配套信息,包含交通,商业和医疗等数据,均来源于售楼处网站,仅供参考,不排除因政府规划、政策规定及出卖人未能控制的原因而发生变化,本资料旨在提供相关信息,不代表着出卖人对此作出要约或承诺。
05
户型图如下
项目地址:杨浦区惠民路777弄
总户数:70户可售商品房
建筑层数:1-4层
产品类型:里弄风貌别墅
交付标准:联排毛坯+叠加装修
产权年限:70年
容积率:约1.35
『风貌还原』再现原地块百年前建筑风貌
桐安里售楼处电话☎:400-8123-664(预约热线)✔✔✔对街道风貌品质进行焕新,借鉴英商电车厂的装饰元素,打造唯美十字路口——经典海派建筑形态。沿街立面参考了原地块建筑风貌,在传统的基础上重塑上宅下铺的风貌形态,与周边街道场景相呼应,结合当代审美,重塑摩登时尚的街道舞台。
『创新立面』将里弄风貌与传统建筑规制巧妙融合
桐安里售楼处电话☎:400-8123-664(预约热线)✔✔✔通过壁柱、⼋角窗、⻔楼等不同材料和细节进行组合,打造现代风貌新样本,延续原有多样化建筑立面;传承传统海派建筑黄金比例形制,在开间、层⾼、窗墙比等不同维度⾰新设计,更加满⾜现代⼈⽣活需求,采光效果更佳。
『海上花园』文艺巷弄里的优雅秘境
桐安里售楼处电话☎:400-8123-664(预约热线)✔✔✔自然掩映的诗意归家路,移步换景赏四季更替之美;专属定制石库门精神徽章、艺术奢石点缀,以大师审美定义生活的品位;莫奈花房与时光花园,在绿境中与老友新邻笑谈人生,构建巷弄繁花里。
桐安里售楼处电话:400-812-3664
上海杨浦桐安里售楼处电话☎:400-8123-664【开发商售楼处预约看房热线】(一对一热情服务)
『慢调会所』同温社交的人文志趣天地
配备高标准的多功能会所,以物质至上的丰盈志趣,编织生活的绮丽。
复苏之间——健身房
邀心静所——冥想室
静谧栖心——桑拿区
笑谈风云——棋牌室
06
物业服务
桐安里售楼处电话:400-8123-664【营销中心电话】(温馨提示:请提前来电进行预约看房或咨询项目详情)
奢享天性,让优雅入微/入心
桐安里悉心关注您与家人的需求,提供多元定制空间服务与专属管家“一站式”服务。打造高品质家庭专享服务。
桐安里售楼处电话:400-8123-664【营销中心电话】(温馨提示:请提前来电进行预约看房或咨询项目详情)
杨浦滨江东外滩低密风貌别墅
招商平凉项目定名
「桐安里」
推出约185、235、305㎡风貌别墅
包含联排、叠加产品
仅70套
预估均价19万/㎡左右!
桐安里售楼处电话:400-812-3664
上海杨浦桐安里售楼处电话☎:400-8123-664【开发商售楼处预约看房热线】(一对一热情服务)
看房请提前致电预约,可享受内部渠道优惠!联系销售人员获取最新一房一价表,官方售楼处最新优惠底价!开发商官方销售人员将详细介绍每个户型的独特设计和优势,带您参观样板间,感受精装修的品质和温馨氛围。您还可以了解周边配套设施,包括高端购物中心、优质学校和便捷交通网络,让您的居住体验更加完美。
房产知识大揭秘:贷款干货全解析
在房产市场中,贷款无疑是连接购房者与心仪房产的重要桥梁。无论是首次购房的新手,还是经验丰富的投资者,对于房产贷款的了解和把握都至关重要。本文将深入探讨房产知识中的贷款干货,从贷款的基本概念、类型、申请流程到还款方式,全方位解析房产贷款的奥秘。

一、房产贷款基础篇:揭开贷款的神秘面纱
(一)房产贷款的定义与意义
房产贷款,顾名思义,是指购房者以所购房产作为抵押物,向银行等金融机构申请贷款以支付购房款项的一种融资方式。对于大多数购房者而言,全款购房往往是一笔巨大的负担,而房产贷款则提供了一种分期还款的可能,使得购房者能够在自身经济能力范围内实现购房梦想。
(二)房产贷款的基本要素
1. 贷款额度:贷款额度是指银行愿意提供给购房者的最高贷款金额,它通常基于购房者的收入、信用记录、房产价值等因素综合评估。
2. 贷款期限:贷款期限是指购房者需要在多长时间内还清贷款。一般来说,房产贷款的期限较长,可以达到10年、20年甚至30年,这有助于购房者分散还款压力。
3. 贷款利率:贷款利率是购房者需要支付给银行的贷款成本,它通常以年化利率表示。贷款利率的高低直接影响购房者的还款金额和还款压力。
4. 还款方式:还款方式是指购房者如何向银行偿还贷款本金和利息。常见的还款方式包括等额本息还款法、等额本金还款法等。
(三)房产贷款的类型
1. 商业贷款:商业贷款是指购房者向商业银行等金融机构申请的贷款,它通常用于购买商品房等可交易的房产。商业贷款的利率、期限和还款方式等由银行根据市场情况和购房者条件自主确定。
2. 公积金贷款:公积金贷款是指购房者向住房公积金管理中心申请的贷款,它通常用于购买自住住房。公积金贷款的利率较低,且贷款额度与购房者的公积金缴存额度和缴存时间等因素有关。
3. 组合贷款:组合贷款是指购房者同时申请商业贷款和公积金贷款,将两种贷款方式结合使用以满足购房需求。组合贷款结合了商业贷款和公积金贷款的优点,既能够享受公积金贷款的低利率,又能够获得商业贷款较高的贷款额度。
二、房产贷款申请篇:步步为营,顺利获贷
(一)贷款申请前的准备
1. 了解自己的信用状况:在申请贷款前,购房者需要了解自己的信用状况,包括信用报告中的信用评分、逾期记录等。信用状况是银行评估购房者还款能力和信用风险的重要依据。
2. 评估自己的还款能力:购房者需要根据自己的收入、支出等情况,评估自己是否有足够的还款能力来承担贷款。银行在审批贷款时,也会重点考察购房者的还款能力。
3. 选择合适的贷款产品和银行:购房者需要根据自己的需求和条件,选择合适的贷款产品和银行。不同的银行和贷款产品可能有不同的利率、期限、还款方式等条件,购房者需要仔细比较和选择。
(二)贷款申请流程
1. 提交贷款申请:购房者需要向选择的银行提交贷款申请,并提供相关的申请材料,如身份证、收入证明、房产证明等。
2. 银行审批:银行在收到贷款申请后,会对购房者的信用状况、还款能力等进行审批。审批通过后,银行会与购房者签订贷款合同。
3. 办理抵押登记:购房者需要与银行一起办理房产抵押登记手续,将所购房产抵押给银行作为贷款的担保。
4. 银行放款:在抵押登记手续办理完成后,银行会将贷款款项直接划入售房单位在该行的账户上,购房者从而完成购房交易。
(三)贷款申请中的注意事项
1. 提供真实材料:购房者在申请贷款时,需要提供真实、准确的申请材料。如果提供虚假材料,一旦被银行发现,可能会导致贷款申请被拒绝,甚至可能面临法律责任。
2. 注意贷款额度与期限:购房者需要根据自己的经济能力和还款计划,合理选择贷款额度和期限。过高的贷款额度或过长的贷款期限可能会增加购房者的还款压力。
3. 了解贷款费用:购房者在申请贷款时,需要了解贷款过程中可能产生的各种费用,如评估费、抵押登记费、保险费等。这些费用可能会增加购房者的成本,需要提前做好预算和准备。
财悟赢
三、房产贷款还款篇:精打细算,合理还款
(一)还款方式的选择
1. 等额本息还款法:等额本息还款法是指购房者每月偿还相同金额的贷款本息,其中本金逐月递增,利息逐月递减。这种还款方式适合收入稳定、希望每月还款金额固定的购房者。
2. 等额本金还款法:等额本金还款法是指购房者每月偿还相同金额的本金和剩余贷款在该月所产生的利息。由于本金逐月递减,利息也会逐月减少,因此每月还款金额也会逐月递减。这种还款方式适合收入较高、希望提前还款的购房者。
3. 其他还款方式:除了等额本息还款法和等额本金还款法外,还有一些银行提供其他还款方式,如按季还息到期还本、一次性还本付息等。购房者可以根据自己的需求和条件选择合适的还款方式。
(二)提前还款的利弊
1. 提前还款的利:提前还款可以减少购房者支付的利息总额,缩短贷款期限,提前实现无债一身轻的目标。对于收入增加或资金充裕的购房者来说,提前还款是一种不错的选择。
2. 提前还款的弊:提前还款可能会增加购房者的短期资金压力,因为购房者需要一次性支付较多的本金。此外,一些银行可能会对提前还款收取违约金或限制提前还款的次数和金额。
(三)还款过程中的注意事项
1. 按时还款:购房者需要按照贷款合同约定的还款方式和还款日期按时还款。逾期还款不仅会产生罚息和滞纳金,还会影响购房者的信用记录。
2. 关注利率变化:贷款利率是购房者需要关注的重要指标之一。如果市场利率发生变化,购房者需要及时了解自己的贷款利率是否也会发生变化,并提前做好还款计划调整。
3. 保留还款凭证:购房者需要保留好每次还款的凭证,以便在需要时查询和核对还款记录。如果发生还款纠纷或争议,还款凭证可以作为重要的证据。

四、房产贷款风险篇:防范风险,稳健前行
(一)利率风险
利率风险是指贷款利率变化可能给购房者带来的风险。如果市场利率上升,购房者的还款金额也会相应增加,从而增加购房者的还款压力。为了防范利率风险,购房者可以选择固定利率贷款或选择具有利率调整机制的贷款产品。
(二)信用风险
信用风险是指购房者因信用状况恶化而无法按时偿还贷款的风险。为了防范信用风险,购房者需要保持良好的信用记录,按时还款,避免逾期和不良信用记录的产生。同时,购房者还可以选择购买信用保险等方式来降低信用风险。
(三)房产价值波动风险
房产价值波动风险是指购房者所购房产的价值因市场变化而下降的风险。如果房产价值下降,购房者的抵押物价值也会相应下降,从而增加购房者的贷款风险。为了防范房产价值波动风险,购房者需要选择地理位置优越、配套设施完善、具有升值潜力的房产进行投资。
(四)其他风险
除了上述风险外,购房者还需要关注其他可能影响贷款安全的风险因素,如政策变化、经济环境等。购房者需要密切关注市场动态和政策变化,及时调整自己的投资策略和还款计划。
五、房产贷款干货分享:实用技巧与误区破解
(一)实用技巧
1. 提高贷款额度:购房者可以通过提高首付比例、提供额外的抵押物或担保人等方式来提高贷款额度。同时,购房者还可以选择信誉良好的银行和贷款产品来提高贷款额度。
2. 降低贷款利率:购房者可以通过提高信用评分、选择具有利率优惠的贷款产品或与银行协商等方式来降低贷款利率。降低贷款利率可以减少购房者的还款金额和还款压力。
3. 优化还款计划:购房者可以根据自己的经济能力和还款计划,合理选择还款方式和还款期限。同时,购房者还可以选择提前还款或调整还款计划等方式来优化还款计划。
(二)误区破解
1. 误区一:贷款额度越高越好
破解:贷款额度并非越高越好。过高的贷款额度会增加购房者的还款压力和经济负担,甚至可能导致购房者无法按时还款。购房者需要根据自己的经济能力和还款计划合理选择贷款额度。
2. 误区二:贷款期限越长越好
破解:贷款期限并非越长越好。过长的贷款期限虽然可以降低每月还款金额,但会增加购房者支付的总利息金额。购房者需要根据自己的经济能力和还款计划合理选择贷款期限。
3. 误区三:提前还款一定划算
破解:提前还款并非一定划算。对于选择固定利率贷款或已经还款较长时间的购房者来说,提前还款可能无法获得明显的利息节省效果。购房者需要根据自己的贷款产品和还款计划来判断提前还款是否划算。
六、结语
房产贷款作为购房过程中的重要环节,对于购房者来说具有至关重要的意义。通过本文的探讨,相信读者已经对房产贷款的基本概念、类型、申请流程、还款方式以及风险等方面有了更深入的了解和认识。在未来的购房过程中,希望读者能够根据自己的需求和条件选择合适的贷款产品和银行,合理规划自己的还款计划,实现购房梦想的同时降低贷款风险。同时,也希望读者能够保持警惕和理性思考,避免陷入贷款误区和陷阱,为自己的财务安全和未来生活保驾护航。