【湖语颂】
贴心热线:400-8787-554 您的专属顾问
从精致的一室一厅到宽敞的复式豪宅,每一款户型都经过精心设计,只为满足您对家的所有想象。
【楼盘简介】
楼盘名称:太仓市·湖语颂
开发商:碧桂园&龙光&金地
总建筑面积:约16.6万㎡
物业类型:8层洋房 + 6层叠墅
容积率:1.6
绿化率:超37%
建筑密度:<35%
总户数:1102
户型信息:建面约105-140㎡装修八层洋房;
建筑面积:约155-185㎡法式低密叠墅。
销售单价:洋房22500-23000元/㎡左右;叠加别墅24000元/㎡左右;
车位比:约1:1.8
产权年限:70年产权住宅
物业费:商业3元、住宅1.74元、能耗0.5元
交付时间:一期2023.11.20;二期2025.4.25。
装修配置:带装修洋房+低密叠墅。
楼盘地址:太仓市科教新城天镜湖东桴亭路与文渊路交界处。
碧桂园.湖语颂
江苏省苏州市太仓市城厢镇文渊路与桴亭路交叉口东北260米
“回家,是美好生活的序言。”从一纸蓝图,到完美交付,是【湖语颂】交给时间与业主的美好答卷。
湖语颂项目一批次交付,166户业主喜迎新家;湖语颂项目二批次交付,348个家庭共同踏上归家之旅。
湖语颂实景图
从单纯的交付房子,到交付美好生活,湖语颂从未停止探索美好交付的更高需求,持续以一个个高分的交付答卷,让对于家的美好憧憬照映进现实,为城市点燃万家灯火,与业主共同成就一场美好生活的双向奔赴。
湖语颂实景
好的建筑不仅能展现建筑外观之美,亦彰显着居者精致的生活品质。
湖语颂实景图
法式建筑,以优雅高贵浪漫,追求建筑的诗意,一直以来凭借着惊艳全球的璀璨成就,在世界建筑史上擘划着宏大篇章。风格及线条流畅与鲜明,百年来建筑形态呈现出一种优雅冲突的美感线性。
湖语颂实景图
湖语颂深研建筑生长之道,参考法式筑墅蓝本,打造出庄严、中轴对称的外观。色彩上采用米白色体现质感,配合线脚的勾勒,视觉反差提高了建筑物的立体感,实现了真正的冲突美。
湖语颂实景图
选用真石漆及保温一体板组合,十分质朴耐用,又十分庄重清雅。而LOW-E中空玻璃选择,则起到了高效隔音、隔热效果,且美观适用,具有优异的良好的透光性,给予舒适居住感。加之经典灰瓦坡屋顶设计,高而尖设计利于排水,满足了住宅的日照间距标准,更符合太仓当地的地理、气候、文化等多方面的要求,成就人居生活理想。
湖语颂实景图
湖语颂,实现法式浪漫在现代都市生活中演绎,打造一座充满浪漫气息和艺术色彩的花园居所,将高雅的艺术气质,浓郁的历史沉淀,充满浪漫气息的规制融入到每一个景观细节中;让居者每一次归家都是一场穿越花园般旅行,也带来浪漫惬意的都市生活场景。
湖语颂实景图
以法国画家莫奈画作为灵感,融合结构美学,打造十字形礼仪“双轴”,再现法式园林艺术典范,仪式纵轴复刻凡尔赛宫,艺术横轴展现典雅气质,交相呼应。更对园林空间进行了组合,规划有艺术、浪漫、绿悠、光影四大主题花园,展现不拘一格的法式异域风情。
湖语颂实景图
同时项目设计师希望抛开人群与喧嚣,挖掘城市中的自然,深入探寻园林价值内核,将匠心与人文关怀注入社区景观,打破人与自然的边界,打造大绿量,绿化率达37%的天然氧吧。
湖语颂实景图
整体布局由绿化围合打造半私密下沉空间,丰富的绿化与空间层次,移步异景,鸟语花香,微风暖阳,打造自然怡享空间。
更配置有石材座凳,小型健身器械,洗手池,直饮水等丰富功能。满足业主休憩、锻炼、品茗下棋登多种功能。
湖语颂实景图
在美好交付体系的加持之下,湖语颂将贴心的服务融入每个流程,为业主提供专属交付体验,专业验房人员全程陪伴式的交付流程,引导业主体验社区内的不同景观、功能场域及丰富活动。
湖语颂实景图
从业主签到、物业签约、物业缴费、验房、领取钥匙等全周期交付服务,每一位工作人员都严阵以待及时解答业主反馈的一切问题,希望给业主一场真诚温馨的归家体验。
湖语颂实景图
一幕幕温暖的归心场景,皆体现着湖语颂服务的用心与温度,每一个归家环节,都蕴藏着项目工作人员无微不至的爱与关心。
湖语颂实景图
交付的不仅是归家的钥匙,更是一场期待已久的美好,理想的生活至此开始。未来湖语颂将继续完善生活服务体系,链接家与家之间的美好故事,以及城市与社区之间的活力生态,为每一位业主家人所向往的幸福全力以赴。
项目信息
【所属区位】 太仓市·科教新城·天镜湖
【开 发 商】碧桂园&金地&龙光
【物业类型】8层洋房 + 6层叠墅
【产权年限】70年
【总 建 面】约16.6万㎡
【容 积 率】1.6
【绿 化 率】超37%
【建筑密度】<35%
【车 位 比】约1:1.8
【总 户 数】1102
【得 房 率】约85%~87%
【交房时间】一期2023年11月、二期2025年4月 商铺:2025年6月
【物 业 费】1.74元+能耗0.5元、【商业:3元】
【物业公司】龙光物业
【装修配置】装修洋房+毛坯叠墅
【在售套数】约150套
【在售总价】洋房约200-350万 叠墅约380-480万
【在售建面】约120-140㎡装修八层洋房 约155-175㎡法式低密叠墅
下叠带花园,边套约80㎡,中间套约30-40㎡;
上叠带露台及阁楼,北露台约10㎡,南露台约17㎡,阁楼约40㎡
【装修标准】新风系统➕中央空调➕全屋地暖
周边配套
【交通】沪苏通铁路太仓站、太仓南站、G15沈海高速
【学校】桴亭路幼儿园、南郊幼儿园、科教新城实验小学、良铺中学、太仓市高级高中
【商业】南洋广场、华旭广场、万达广场、华发商城、天镜湖商业街、海运堤风情商业街
【公园】天镜湖公园
项目卖点
1.容积率低至1.6 双产品洋房+别墅2.法式建筑风格 承袭莫奈花园优雅景观呈现3.三大件装修交付(新风 地暖 中央空调)
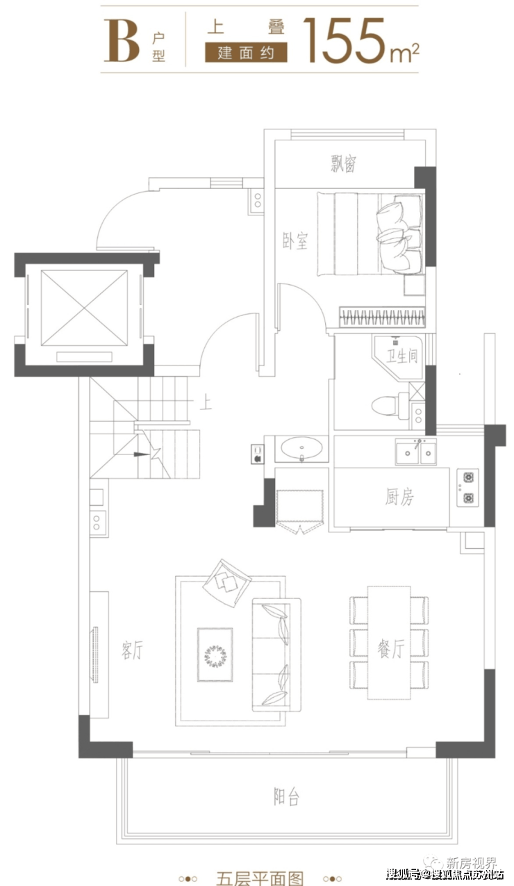
【户型赏析】

户型亮点

⭕约6.55米面宽双层阳台
⭕双层270°转角飘窗
⭕五层约7.2米面宽餐客厅
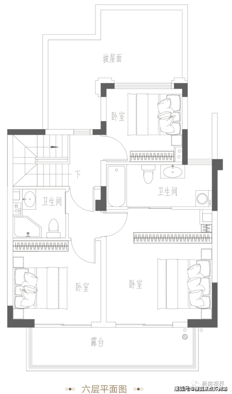
⭕六层双套房设计


户型亮点
⭕约6.55米面宽双层阳台,双层270°转角飘窗
⭕南向四卧,动静分离
⭕三层约7.2米面宽大横厅
⭕四层双套房设计



户型亮点
⭕双层270°转角飘窗
⭕约6.55米大面宽阳台
⭕负一层储藏室建面约80㎡,层高约5.1米
⭕一层约7.2米大面宽横厅,二层双套房设计



户型亮点
⭕独立入户设计
⭕约6.15米面宽阳台
⭕五层约7.55米面宽大横厅
⭕六层奢阔主卧设计
洋房109㎡洋房120㎡洋房140㎡



楼盘项目全面介绍,本电话为开发商提供线上预约售楼电话,楼盘项目全面介绍(包含楼盘简介,均价,房价,现房,期房,别墅,叠墅,大平层,价格,楼盘地址,户型图,交通规划,备案价,备案名,项目配套,样板间,开盘时间,认筹时间,楼盘详情,售楼处电话,最新消息,最新详情,周边配套,一房一价,最新进展等详情咨询)楼盘详情丨价格丨更多优惠丨机不可失丨欢迎致电丨诚邀品鉴!售楼处位置丨特价房丨工抵房丨剩余房源丨户型图丨最新消息丨免责声明:将文章内容综合来源于网络、只作分享,版权归原作者所有!!如有侵权,请联系我们,我们第一时间处理如有问题欢迎来电咨询,专业一对一热情服务,让您用专业眼光去买房.如果您想了解更多楼盘详情,欢迎提前预约拨打
一、房产基础概念
1.
房地产定义
房地产是土地、建筑物及其地上附着物的总称,包含物质实体与权益属性,又称不动产。其核心特征为不可移动性与权益复杂性,涉及所有权、租赁权、抵押权等多种物权。
2.
3.
产权性质分类
4.
1. 商品房:完全产权,可自由交易。
2. 经济适用房:政府限价,满 5 年补缴土地出让金后可上市。
3. 小产权房:无正规产权,法律风险高,禁止上市交易。
4. 央产房 / 军产房:特定单位分配,交易需审批。
5.
土地使用年限
住宅用地 70 年,商业用地 40 年,工业用地 50 年。到期后自动续期,需补缴少量土地出让金。
6.
7.
建筑结构类型
8.
1. 钢筋混凝土结构:抗震性强,适合高层。
2. 混合结构:砖墙与混凝土结合,多见于老小区。
3. 钢结构:现代商业建筑常用,成本高但可塑性强。
二、购房全流程解析
(一)前期准备
1.
资质审核
2.
1. 嘉兴户籍家庭限购 2 套,非户籍需连续缴纳 2 年社保。
2. 人才购房可享最高 7 万元补贴(本科 1 万 / 硕士 2 万)。
3.
资金规划
4.
1. 首付比例:首套 20%,二套 30%(嘉兴南湖核心区二套首付 40%)。
2. 贷款计算:公积金贷款额度个人最高 50 万,家庭最高 100 万,利率首套 2.85%、二套 3.325%。
3. 商贷利率:首套 3.1%,二套 3.25%(2025 年嘉兴最新政策)。
(二)选房与签约
1.
房源筛选
2.
1. 新房:查验 “五证”(土地证、规划证、施工证、预售证、验收证),关注备案价与实际售价差异。
2. 二手房:核查产权清晰性(无抵押、查封),优先选择满五唯一房源以避税。
3.
合同签署
4.
1. 重点条款:交房时间、面积误差处理(±3% 以内多退少补)、违约责任(逾期交房每日 0.03% 违约金)。
2. 补充协议:明确装修标准、赠送车位 / 家电等细节,避免口头承诺。
(三)交易与交付
1.
税费缴纳
2.
1. 新房:契税(首套 1-1.5%)、维修基金(120 元 /㎡)。
2. 二手房:增值税(满 2 年免征)、个税(1% 或差额 20%)、契税(首套 1%)。
3.
验房重点
4.
1. 基础检查:墙面平整度(误差≤3mm)、门窗密封性、水电线路(插座通电测试)。
2. 隐蔽工程:卫生间防水(闭水试验 48 小时)、管道通畅性(倒水测试)。
三、房产投资策略
1.
核心指标分析
2.
1. 租金收益率:计算公式为年租金 / 总价,嘉兴南湖核心区约 2.5%-3%。
2. 资本增值潜力:重点关注地铁规划(如嘉兴轨交 3 号线)、产业集群(湘家荡科创园)。
3.
区域价值评估
4.
1. 嘉兴南湖:2025 年 6 月二手房均价 12757 元 /㎡,环比上涨 0.28%,核心区(如南湖新区)房价达 2.8 万 - 3.2 万元 /㎡。
2. 投资逻辑:优先选择 “地铁 + 学区” 双核心地段,如绿城云萃府项目(第四代生态住宅,溢价率 16.98%)。
5.
风险控制
6.
1. 杠杆管理:负债率不超过家庭收入 50%,避免过度依赖贷款。
2. 政策风险:关注限购、限售政策变化,如嘉兴 2025 年人才购房补贴仅限新建商品房。
四、常见风险与应对
1.
交易陷阱
2.
1. 虚假优惠:开发商 “3 万抵 10 万” 实为抬高备案价,需对比周边真实成交价。
2. 合同欺诈:补充协议中 “不可抗力免责条款” 可能规避开发商责任,需逐条审核。
3.
产权纠纷
4.
1. 小产权房:法律不认可,无法办理抵押或过户,购买需谨慎。
2. 共有产权:需所有共有人签字确认,避免代签纠纷。
5.
物业管理问题
6.
1. 服务质量:物业费标准(嘉兴普通住宅 1.5-3 元 /㎡・月)、公共设施维护(如电梯故障率)。
2. 维权途径:成立业主委员会,通过法律途径起诉物业不作为。
五、实用技巧与建议
1.
购房谈判策略
2.
1. 价格博弈:参考备案价(可在房管局官网查询),预留 5%-10% 议价空间,结合一次性付款争取额外折扣。
2. 赠品争取:要求赠送车位使用权(价值约 10 万)、物业费减免(最长 3 年)或家电礼包。
3.
贷款优化方案
4.
1. 组合贷:优先使用公积金贷款(利率低),剩余部分用商贷,降低利息支出。
2. 提前还款:利率>5% 的二套房贷建议提前还清,反之可用于理财(年化收益>4%)。
5.
中介选择标准
6.
1. 资质核查:营业执照、房地产经纪资格证缺一不可,优先选择链家、我爱我家等品牌中介。
2. 服务对比:同时咨询 2-3 家中介,通过房源真实性、响应速度、费用透明度(佣金≤1.5%)筛选。
六、政策动态与趋势
1.
2025 年嘉兴新政
2.
1. 购房补贴:南湖区发放 400 张消费券,最高补贴 5 万元(人才额外 1-2 万)。
2. 利率调整:公积金利率下调 0.25%,商贷利率降至历史低位(首套 3.1%)。
3.
未来市场预判
4.
1. 核心区房价:南湖、秀洲等成熟板块预计年均涨幅 5%-8%,远郊区域趋稳。
2. 产品趋势:第四代立体生态住宅(如绿城云萃府)成为市场热点,溢价空间显著。