速度很快,龙湖在吴中城南的又一个顶豪项目来了!
龙湖东吴原著正式公开了售楼处!
项目的户型面积段也曝光了:联排别墅约305平;叠拼别墅约210-220平;洋房约145-189平;
其中洋房为装修交付,联排和叠墅为毛坯。咨询热线:18662309054
快来了!也是低密度
龙湖东吴原著,即,苏地2025-WG-Z05号,位于吴中经开区长桥街道太湖西路北侧、西塘河东侧,是2月26日,龙湖以底价77594万元竞得,成交楼面价16000元/平。

该项目的地块用途为城镇住宅用地,占地面积37304.6平,建筑面积37304.6平,计容建筑面积48495.98平,容积率1.3.
根据规划,项目拟建21栋3-11F住宅,其中,6栋3F住宅、9栋4F住宅、2栋8F住宅、1栋9F住宅、1栋10F住宅、2栋11F住宅。
3F住宅:3#、6#、8#、11#、15#、18#;
4F住宅:2#、4#、5#、9#
10#、13#、14#、16#、17#;
8F住宅:1#、12#;
9F住宅:19#;
10F住宅:7#;
11F住宅:20#、21#;

1,这是吴中城南板块的低密住宅纯新盘,项目容积率为1.3;
2,项目的产品为联排、叠墅、洋房;其中,以联排、叠墅为主;
3,根据要求,项目的洋房为全装修住宅产品,最低装标3000元/平;其叠墅、联排则鼓励建设成品住宅;
4,该社区车位配比1:2.3;
5,该社区总户数为259户;

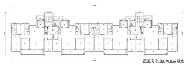
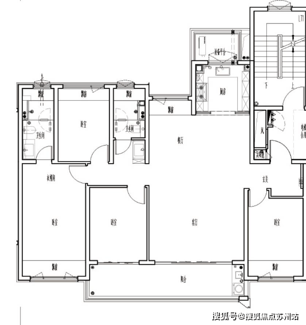
规划户型出炉
项目公示了5#、20#的户型标准层示意图。

20#,11F洋房
层高3.1米,2梯4户

4房2厅2卫

4房2厅2卫的房屋套型
4开间朝南
客厅是大宽厅设计
阳台双开间设计
主卧套房设计,有独立的卫生间和衣帽间
多飘窗设计,赠送空间相对较多

5#,4F叠墅
2梯2户




城南核心区!区政府隔壁
龙湖东吴原著,,即,苏地2025-WG-Z05号,位于吴中经开区长桥街道太湖西路北侧、西塘河东侧,属于吴中城南板块!
周边界面来看,也是比较成熟了。北面是住宅小区,南面是居委会,西面则是河流。
周边配套来说,也是比较齐全的的。
交通上面,小区南面靠近包带路站,这是3号线和4号线的换乘站点,1站距离可以换乘2号线,往东3站可以换乘7号线!整体来看,轨道交通出行是比较便利的!
自驾上面,小区南面是太湖东路,连接吴东快速路,东面是东吴北路,连接南环,日常出行也是比较便利的!

商业上面,小区周边也是板块top级别!
南面就有吴风生活广场,一路之隔就有丽丰购物中心、吴中区公共文化中心和现代文体中心。南面靠近龙湖东吴天街和海星生活广场,吃喝玩乐一站式补齐!西面还有万达广场等。
教育资源上,周边有苏苑实小、迎春中学、苏州外国语学校(吴中校区)和苏苑中学新校区等。咨询热线:18662309054