中环快速路园区段
中环快速路园区段(东方大道快速化)工程有新消息啦

根据现阶段计划
项目2018年年底开工建设

根据此前公示,中环快速路园区段工程西起苏申外港大桥西侧,东至吴淞江大桥西侧,全长5576.35米,包括星塘街跨线桥及立交。主线快速路拟设计成双向6车道,地面辅路双向4—6车道。


东方大道是城南一条繁忙的主干道,据介绍,进行快速化改造之后,将与规划中的南湖路快速路东延吴中区段相接,这样中环南线东段将与中环东线相接。
园区二中青剑湖项目


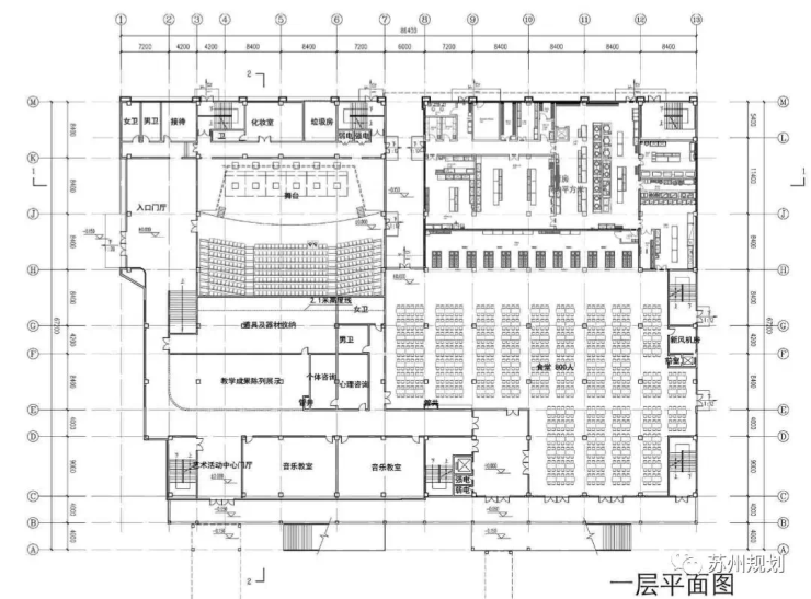
位置


项目位于
星湖街东、运澄路南

平面图


园区二中青剑湖项目计划建成
一所20轨的高级中学
共计60个班级
主要建筑单体包括
教学综合楼一、教学综合楼二
艺体综合楼及宿舍1、宿舍2等
总建筑面积90384.49平方米
其中计容建筑面积74664.12平方米
建筑较高39.95米


其中,艺术综合楼将设置
舞台、心理咨询室、音乐教室
社团排练室、体育馆、黑箱教室、舞蹈教室等

立面图

公示显示
实验综合楼5层
教学综合楼(高一)6层
教学综合楼(高二)、教学综合楼(高三)5层
体育馆5层

艺术综合楼
艺术综合楼3层
内有可容纳800人的报告厅
另外设置1层报告厅,可容纳300人

学生宿舍楼1

学生宿舍楼2
学生宿舍1有8层,学生宿舍2有12层
苏州工业园区社会福利中心


位置


项目位于
斜塘街道东方大道南,松涛街东

平面图


该项目分一、二期建设
本次申报一期儿童残疾人福利部、老人福利部
申报总建筑面积31726.63平方米
计容面积26321.27平方米
建筑较高45米
其中老人福利部为12层
儿童残疾人福利部为9层
二期将扩建
日托中心(2层)及老人福利部(12层)