刚刚!园区豪宅迎来新动作
绿城·沁百合放出
最快7月底开盘
示范区预计开盘当月开!节奏非常快!
作为苏州首个绿城「沁百合」
项目全铝板立面豪装+下沉式会所
有兴趣的亲们,该准备起来了
咨询热线:18662309054
作为苏州首个绿城「沁百合」,其实早在杭州、上海、宁波等城市,「沁百合」产品系早已名声大噪。
杭州绿城沁百合:三开三罄,中签率低至 7%,荣获2023年德国红点设计奖提名。宁波沁百合:以全石材立面与奢装会所,刷新当地高端住宅标准的同时,至今仍是二手房市场的硬通货。
苏州绿城沁百合
打造10幢8-11F纯洋房低密奢宅
主力155/167/183/187/235㎡5大户型
具体楼栋分布如下,总房源量不到300套

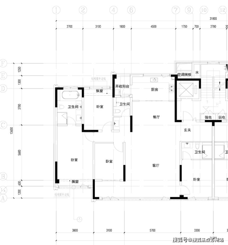
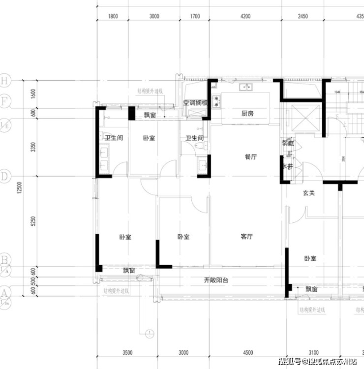
正式户型图还没出来,此前规划的约153/187㎡标准层户型可供参考——
187㎡户型2梯2户设计
4房2厅3卫
南向四开间+南北双阳台
南向 约15.9米面宽
客厅开间 约5.7米,外接8.8米宽开敞阳台
南向双套房,主卧开间3.8米
其余卧室开间3.3、3.1、3.1米

155㎡户型2梯4户设计

4房2厅2卫
南向四开间, 约14.1米面宽
客厅开间约4.5米,外接 7.5米宽开敞阳台
主卧套房开间3.5米
其余卧室开间3.1、3、3米

绿城·沁百合,即苏地2025-WG-Z02号地块,位于工业园区金堰路西、金鸡湖大道北,是2月份,由绿城 总价14.3亿竞得,成交 楼面价26754元/㎡,溢价率21.61%。

项目出入口位于规划道路及东宏路。

其中第一排靠金鸡湖大道全是8层洋房。除了1~4幢,其余楼栋一层均设置架空层,估计会做成公共空间,提升内部配套。地库局部做了2层,最大程度满足家庭停车需求。
首层3.6米,其他层高3.1米,外立面全铝板,采用深灰色、金色、银色铝板。

可以参考绿城云庐。

根据地块出让要求,该地块上住宅为全装修住宅, 住宅装修价格不低于3000元/㎡。

产品系为绿城的百合系,已知自带下沉式庭院、500㎡儿童活动场、运动场等。了解更多内容, 扫码登记掌握一手消息,置业顾问会第一时间联系你
咨询热线:18662309054
绿城「沁百合」紧靠轨交6号线金家堰站,项目临河和绿化带即斜塘河与奥体中心。从整体看,凭借着本身绝佳地理优势,享受园区优质资源,适宜居住。

项目与 地铁6号线金家堰站近 距离接驳,1站速抵奥体中心,3分钟直达湖东
CBD,5分钟贯通湖西商圈!更坐拥 斜塘河一线水景与奥体中心绿地环绕,堪称园区罕有的 轨交+生态双料顶配地块!
目前 人大附中极大可能落地星华学校,奥体南国际部+高中部双学区规划已过审3公里内覆盖 星洲小学、金鸡湖学校等6所顶尖学府,全龄段精英教育闭环!
地块自带TOD模式邻里中心,1.5公里直达奥体中心万人商圈, 3公里黄金半径覆盖永旺梦乐城+金鸡湖商业体。
政府最新控规显示:奥体南板块预留 12宗稀缺宅地,全部规划低密纯改善住区!绿城一直作为行业标杆,此次项目2月底拿地,3月底出规划, 展厅已经公开,7月底开盘,需要各位盯紧!