近期苏州楼市迎来多重政策利好,公积金贷款额度提升、利率下调、首付比例降至15%,一系列惠民措施为购房者提供了实实在在的支持。特别是多子女家庭和人才购房的优惠政策,更是让改善型住房需求迎来春天。在这个政策利好的背景下,我们不妨将目光投向园区斜塘板块,那里有一处值得关注的品质住宅——建屋·新棠玥,它正以独特的魅力,等待着懂生活的你。
基本信息
建屋·新棠玥,是新建元与苏州恒泰两大国企联袂打造的玥系开篇作品。项目位于苏州工业园区独墅湖大道与星塘街交汇处西北侧,占地面积约4万㎡,容积率仅1.7,建筑密度19.8%,规划了11栋13-17层的小高层住宅,户型面积段为165-225㎡的四房三卫设计。这样的低密度规划,意味着小区将有更多的空间用于绿化和景观打造,居住舒适度不言而喻。
18662309054
区域配套
斜塘板块汇聚了园区多年发展的精华,从产城融合到人城境业全面融合,已成为园区人居高地。这里的生活配套堪称丰富:
高浓自然圈:金鸡湖右岸客厅、独墅湖公园、弥陀泾等自然景观环绕,推窗见绿,出门即景。
高效出行圈:独墅湖城市主干道、星塘街便捷通达,约4公里可达苏州东站(在建),未来出行更加便利。
高教创新圈:工业园区图书馆、独墅湖文体中心湾国际中心等文化设施,满足精神文化需求。
缤纷生活圈:湖东CBD、奥体中心、邻瑞广场(山姆店)、斜塘老街等商业配套,吃喝玩乐购一站式满足。
品牌价值
建屋·新棠玥由新建元与苏州恒泰两大国企联手打造,品质有保障。新建元集团作为园区成立最早、规模最大的国资企业,以"创新改变城市"为核心理念;苏州恒泰则是中新合作苏州工业园区直属的大型国有企业,资产总规模365亿元,在商业地产、产业地产、租赁住房领域有着丰富经验。

斜塘板块在苏州园区"一主两副四片多点"的战略格局中,交汇于金鸡湖中央商务区、独墅湖科教创新区、高端制造与国际贸易区和苏州园区东站副中心之上,区位优势明显,发展潜力巨大。
建屋·新棠玥传承了建屋31载园区人居理念,以玥系高端产品线展开新时代人居所需,传承苏式人居文脉,塑造新时代符号大宅,以国际前瞻视野与在地文化开启全新作品。
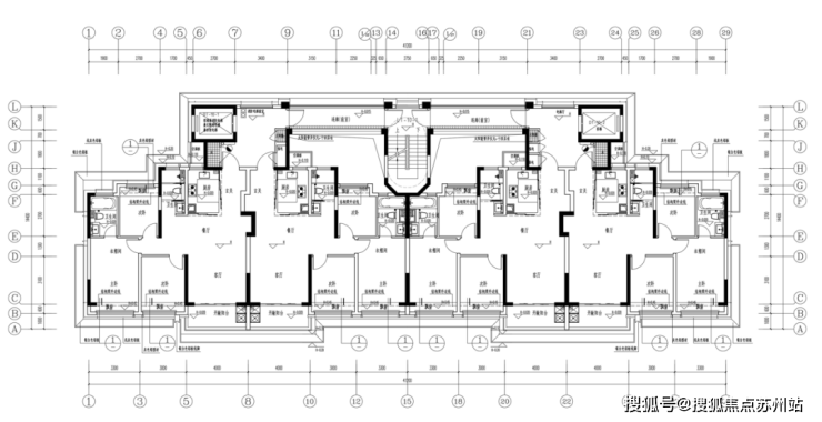
户型鉴赏
建屋·新棠玥的户型设计充分考虑了现代家庭的生活需求,165-225㎡的四房三卫设计,无论是三口之家还是多代同堂,都能找到合适的空间布局。

10#14F小高层标准层布局合理,空间利用率高,采光通风俱佳。

1#17F小高层标准层(建面约175平)设计精巧,动静分区明确,主卧套房设计,私密性强。
6#16F小高层标准层(建面约215㎡)更是豪宅级设计,空间阔绰,功能分区完善,满足高端居住需求。
优势分析
建屋·新棠玥的优势不仅体现在区位和配套上,更在于其大师级的团队打造:
建筑设计:由宋照青Lacime Architects日清设计创始人操刀,代表作品有上海新天地、上海中星美华村等。
景观设计:A&N尚源景观,打造宜居环境。
精装设计:Yan Design大研设计,细节处彰显品质。
泛光设计:bpi照明设计,夜晚小区灯光效果出众。
建屋·新棠玥以"枕河而居,时新境进"为理念,溯源苏式人居之源,承续沧浪之六境,从归家仪式、建筑立面、景观设计、奢美空间、服务营造等高阶人居需求出发,重构人居新境,演绎园区人居的新一页。
繁华静处,心有私屿。建屋·新棠玥,以新质人居为要求与前瞻,描绘人与城市共创的时代符号,赋新园区时代人居新意。
在当前政策利好的背景下,选择建屋·新棠玥不仅是选择一处居所,更是选择一种生活方式和未来价值。随着苏州工业园区不断发展,斜塘板块作为区域交汇点,将迎来更多发展机遇。公积金新政降低了购房门槛,多子女家庭和人才购房的优惠政策更是为改善型需求提供了有力支持。
建屋·新棠玥凭借其低密度规划、优越区位、丰富配套和大师级设计,将成为园区人居的新标杆。在这里,您不仅能享受当下的舒适生活,更能分享城市发展的红利,与园区共成长,见证苏州这座城市的美好未来。
联系方式
18662309054