青春筑梦,安家园区——星合晋墅,为奋斗者筑梦家园
近期园区发布的2025年青年人才政策可谓诚意满满,从"先落户后就业"到创业补贴,从面试交通补贴到就业见习支持,全方位为青年人才提供安居保障。这些政策不仅体现了园区对人才的重视,更为有志青年在园区安家置业提供了坚实后盾。在这样一片热土上,星合晋墅应运而生,为追求品质生活的你打造理想家园。
基本信息
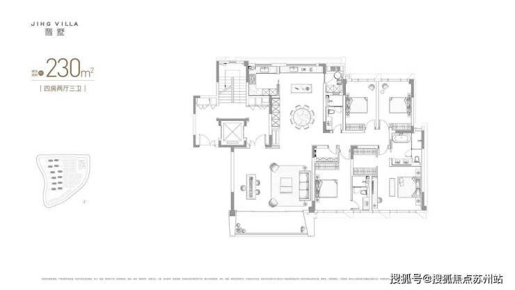
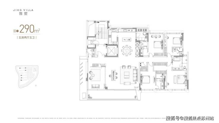
星合晋墅,由城市生活美学运营商倾力打造,秉承"只定制,不复制"的理念,为业主提供独一无二的居住体验。项目拥有约50%的绿化覆盖率,容积率仅约1.02,真正实现低密宜居。社区内融合了7层洋房与3层院墅两种业态,主推建面约230㎡-350㎡的低密洋房,以及约400㎡-700㎡的稀缺院墅,满足不同家庭对空间的需求。咨询热线:18662309054
区域配套
约11亩湖叙SPACE,是双湖之畔的艺术会所,一处能让时光放缓、心灵栖居的所在。这里设有泳池、羽毛球场、高端健身区、家族私宴厅、亲子阅读室等私享空间,演绎着高端圈层的生活范本。
在约3公里的黄金繁华圈内,你能享受到全维优质配套:
一站式全龄教育,书香涵养未来。社区周边汇聚了华林幼儿园(东华林街)、双湖湾教育幼儿园、翰林小学、尹山湖中学等知名学府,让孩子从幼儿园到中学都能享受优质教育资源。
优质医疗资源全时护航健康。园区区域内,星海医院、九龙医院、独墅湖医院等权威医疗机构环伺,为家人健康保驾护航。
双轨三轴枢纽,高效通达全城。项目近邻5号&8号地铁,金鸡湖大道、独墅湖大道、金鸡湖隧道三条黄金主轴,让出行变得轻松便捷。
文娱商圈荟萃,国际生活的烟火气。山姆会员店、星湖天地、星月坊商业街等商业配套,满足日常购物与休闲需求。
与公园为邻,收藏一座城的诗意。1.6公里可达金鸡湖高尔夫会员专属俱乐部,3公里范围内独墅湖公园等休闲绿境,随时享受自然之美。
品牌价值
星合控股,国际高端底蕴,为生活再设计。自2003年进入苏州,深耕园区20余载,倾力打造高端住宅、奢华酒店、潮流商业标杆作品,与时代共进,全维打造国际化高端生活方式。代表作品包括苏州晋园别墅、晋合水巷邻里、晋府水巷别墅、金湖湾、洲际酒店、凯悦酒店等,每一个作品都彰显着品牌的匠心与品质。

户型鉴赏
从"精神场域构建"到"大宅场景空间",星合晋墅的每一处设计都彰显着对生活美学的极致追求。建面约230㎡-350㎡的低密洋房,空间布局合理,采光通透,让家成为心灵的港湾。
联排产品更是将庭院生活与现代设计完美融合,约400㎡-700㎡的稀缺院墅,让你拥有私家花园,享受有天有地的诗意栖居。



优势分析
星合晋墅的优势显而易见:首先,低密社区带来的是更舒适的生活体验,50%的绿化覆盖率让你仿佛置身于公园之中;其次,多元化的产品选择满足不同家庭的需求,无论是年轻夫妇还是三代同堂,都能找到心仪的家;再者,双湖之畔的优越区位,3公里内覆盖教育、医疗、商业、交通等全方位配套,让生活更加便捷;最后,星合控股20余年的高端开发经验,确保了项目的品质与价值,稀缺的院墅产品更是不可多得的收藏品。
未来已来,与星合晋墅共赴美好人生
在园区青年人才政策的加持下,选择星合晋墅不仅是选择一处居所,更是选择一种生活方式。这里既有城市的繁华便利,又有自然的宁静舒适;既有国际化的生活配套,又有传统文化的底蕴传承。随着园区不断发展,星合晋墅的价值也将随之提升,成为你资产配置的理想选择。在这里,你可以与志同道合的邻居共同成长,在双湖之畔,在花园庭院,在艺术会所,创造属于你的美好生活故事。
联系方式:18662309054