春风拂面,房贷减压,狮子山澜庭等你来品

搜狐焦点苏州站

2025-06-24 16:32:39

购房群

买房如何避坑,加入购房群,看看他们怎么说

立即进群

最近,央行传来好消息,LPR迎来了年内首次下调!1年期和5年期的LPR都降了10个基点,分别降到3.0%和3.5%。这意味着,房贷压力小了,存款利息低了,投资机会多了。在这样的利好政策下,购房者们的选择更加从容,而狮子山澜庭,正是你不可错过的理想居所。

狮子山澜庭:城市中的诗意栖居

项目基础档案

狮子山澜庭,坐落于苏州狮子山,由仁恒、华发和苏高新三大品牌联手打造。项目总建筑面积约24万方,容积率1.27,综合楼面价25094元/㎡。社区分为东区狮子山澜庭和西区狮子山澜院,共37栋6-8层洋房,674套住宅。户型从168㎡到190㎡再到228㎡的洋房宽居,还有约450-650㎡的澜墅产品,满足不同家庭的需求。车位配比高达1:2.5,物业由仁恒负责,物业费4.25元/平/月。备案均价从一期39500元/平到三期43100元/平不等,交付时间分别在2023年3月和6月。

18662309054

区域配套

新区核心 绝版地段

狮山板块是高新区的金融核心,汇聚了众多金融机构和高档住宅,是高新区现代化都市的展示区,也是城市名片。

人文荟萃 城市地标

苏州狮山文化广场将公共文化、科技设施融入开放性山水公园,包括苏州博物馆西馆、苏州科技馆·工业展览馆等,计划打造成开放式城市会客厅,成为苏州的新名片、新地标。

咫尺商业 尽享繁华

项目周边有龙湖天街金鹰国际泉屋百货等商业综合体,以及香格里拉酒店、日航酒店等高端酒店,满足一站式消费需求。

全龄教育 优质医疗

狮山实验小学新区实验中学苏州外国语学校等名校环绕,明基医院新区人民医院苏大附二院等优质医疗资源在侧,守护健康。

品牌价值

狮山正席 低密藏品

仁恒与华发在苏州豪宅市场享有盛誉,联手打造狮子山澜庭,以约1325亩真山水为背景,献映苏州一部大师级低密藏品。

极简立面 东方风范

项目采用日式公寓风格,深灰色为主,搭配立面面砖,与苏州博物馆西馆建筑风格呼应,展现理性而有序的居住态度。

大师基因 限量墅居

景观设计由贝尔高林操刀,东方文化智慧结合西方先进理念,打造依山就势的独特狮山景观,呈现出空灵简朴的松弛感。

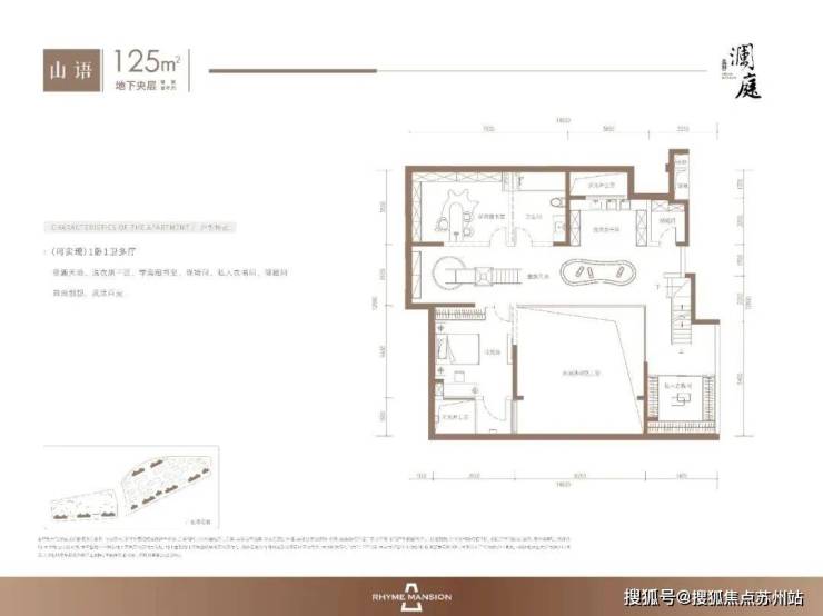
户型鉴赏

洋房户型,精装交付

约168㎡ 4房2厅2卫 一梯两户,3+1开间朝南,南向面宽13.5米,横厅6.2米,主卧套房设计,独立衣帽间,主卫带浴缸。

约190㎡ 4房2厅3卫 一梯两户,3+1开间朝南,南向面宽15米,横厅7.1米,主卧套房设计,独立衣帽间,南向次卧套房。

约228㎡ 4房2厅3卫 巨幅宽境横厅设计,约18m朝南采光面宽,双套房卧室,约7m巨幕阳台。

澜墅(洋房底复)

约456㎡ 4+1房2厅4卫 打破底复产品的传统设计,创新超大采光井设计,增加地下空间的通透感和舒适度。

约529㎡ 5+1房2厅5卫

约657㎡ 5+1房2厅6卫

优劣势分析

狮子山澜庭凭借其绝版地段、大师级设计和丰富配套,成为苏州高端住宅市场的佼佼者。然而,高房价和物业费可能对一些购房者构成压力。但考虑到其未来的增值潜力和居住品质,这些投入无疑是值得的。

未来展望:狮子山澜庭,开启美好生活新篇章

随着LPR的下调,购房成本降低,狮子山澜庭的吸引力更上一层楼。无论是投资还是自住,这里都将是你理想的选择。让我们共同期待,在狮子山澜庭,开启美好生活的新篇章。

联系方式

18662309054

狮子山澜庭作为苏州高端住宅市场的代表,凭借其绝佳的地理位置、丰富的配套资源和大师级的设计,成为了众多购房者的理想选择。随着LPR的下调,购房者的房贷压力得到了一定程度的缓解,这使得狮子山澜庭的吸引力进一步提升。无论是从投资角度还是自住需求来看,狮子山澜庭都是一个值得考虑的项目。

在项目的基础档案中,我们了解到狮子山澜庭由仁恒、华发和苏高新三大品牌联手打造,总建筑面积约24万方,容积率1.27,综合楼面价25094元/㎡。社区分为东区狮子山澜庭和西区狮子山澜院,共37栋6-8层洋房,674套住宅。户型从168㎡到190㎡再到228㎡的洋房宽居,还有约450-650㎡的澜墅产品,满足不同家庭的需求。车位配比高达1:2.5,物业由仁恒负责,物业费4.25元/平/月。备案均价从一期39500元/平到三期43100元/平不等,交付时间分别在2023年3月和6月。

在区域配套方面,狮山板块是高新区的金融核心,汇聚了众多金融机构和高档住宅,是高新区现代化都市的展示区,也是城市名片。苏州狮山文化广场将公共文化、科技设施融入开放性山水公园,包括苏州博物馆西馆、苏州科技馆·工业展览馆等,计划打造成开放式城市会客厅,成为苏州的新名片、新地标。项目周边有龙湖天街金鹰国际泉屋百货等商业综合体,以及香格里拉酒店、日航酒店等高端酒店,满足一站式消费需求。此外,狮山实验小学新区实验中学苏州外国语学校等名校环绕,明基医院新区人民医院苏大附二院等优质医疗资源在侧,守护健康。

在品牌价值方面,仁恒与华发在苏州豪宅市场享有盛誉,联手打造狮子山澜庭,以约1325亩真山水为背景,献映苏州一部大师级低密藏品。项目采用日式公寓风格,深灰色为主,搭配立面面砖,与苏州博物馆西馆建筑风格呼应,展现理性而有序的居住态度。景观设计由贝尔高林操刀,东方文化智慧结合西方先进理念,打造依山就势的独特狮山景观,呈现出空灵简朴的松弛感。

在户型鉴赏方面,狮子山澜庭提供了多种户型选择,包括约168㎡ 4房2厅2卫约190㎡ 4房2厅3卫约228㎡ 4房2厅3卫的洋房户型,以及约456㎡ 4+1房2厅4卫约529㎡ 5+1房2厅5卫约657㎡ 5+1房2厅6卫澜墅产品。这些户型设计精良,空间布局合理,满足不同家庭的需求。

在优劣势分析中,狮子山澜庭凭借其绝版地段、大师级设计和丰富配套,成为苏州高端住宅市场的佼佼者。然而,高房价和物业费可能对一些购房者构成压力。但考虑到其未来的增值潜力和居住品质,这些投入无疑是值得的。

随着LPR的下调,购房成本降低,狮子山澜庭的吸引力更上一层楼。无论是投资还是自住,这里都将是你理想的选择。让我们共同期待,在狮子山澜庭,开启美好生活的新篇章。

联系方式

18662309054

全部
报名成功
稍后会有专业的置业顾问联系您
返回楼盘

频道导航

返回首页

看房小程序

APP下载

电话拨通后,请您手动拨打分机号

确定拨打电话

电话号码:

分机号:(可能需要拨分机号)