一座城的拥抱,一个家的向往
最近,苏州的朋友圈被一条好消息刷屏了。为了打造“人才友好城市”,苏州拿出了满满的诚意,真金白银地给人才发福利。根据最新的政策,符合条件的人才在苏州买房,最高能拿到上千万的购房补贴!就算暂时不买,租房每个月也能领到上万元的补贴。从园区到姑苏,各区都有重磅利好,这无疑给所有在苏州奋斗的精英们,安家落户的梦想插上了翅膀。
当城市的诚意与理想的居所相遇,安家的梦想便有了最坚实的支撑。今天,就让我们把目光投向一个能让这份补贴价值最大化的地方——一个能让灵魂诗意栖居的低密作品。
大家好,今天要聊的这个项目,叫【星合晋墅】。它背后的开发商【星合】,是个有故事的品牌,他们的理念是“只定制,不复制”,一听就很有格调。整个小区的环境特别好,绿化覆盖率做到了惊人的约50%,容积率才约1.02,这意味着你拥有的不是拥挤的楼栋,而是大片可以呼吸的空间。产品主要是两种,7层的洋房和3层的院墅,都是现在市面上非常稀缺的低密产品。面积段也很纯粹,洋房主要是建面约230㎡到350㎡,院墅则更大,在400㎡到700㎡之间,妥妥的改善型住宅的终极选择。
咨询热线:18662309054
18662309054
区域配套
生活在这里,是一种怎样的体验?我想,是“随心”两个字。
孩子上学的事,家长最操心。在这里,从幼儿园到中学,家门口就有好学校。华林幼儿园、双湖湾教育幼儿园、翰林小学、尹山湖中学等一站式全龄教育配套,让书香浸润孩子的成长之路。
家里有老有小,离医院近一点总是安心不少。双湖区域内,星海医院、九龙医院、独墅湖医院等权威医疗资源全时护航,为家人的健康保驾护航。
在苏州,出行方便太重要了。这里交通网络四通八达,近邻5号&8号地铁,金鸡湖大道、独墅湖大道、金鸡湖隧道三条黄金主轴,让你轻松通达全城,无论是上班通勤还是周末出游,都高效从容。
生活不能只有诗和远方,还得有柴米油盐和人间烟火。山姆会员店、星湖天地、星月坊商业街等繁华商圈荟萃,国际生活的烟火气,就在你身边。
周末想放松一下?不用跑远。1.6KM外的金鸡湖高尔夫会员专属俱乐部,3KM的独墅湖公园,都是你收藏一座城市诗意的后花园。
品牌价值
说到【星合控股】,可能有些朋友还不太熟悉,但它在苏州可是个“老熟人”了。从2003年就扎根园区,一干就是20多年。它不是那种追求高周转的开发商,而是沉下心来,打造一个个能成为城市名片的作品。从晋园别墅到晋合水巷邻里,再到运营洲际、凯悦这样的国际奢华酒店,星合一直在用行动诠释什么是高端生活。选择它,不仅仅是买一套房子,更是选择了一种经过时间考验的品质生活。

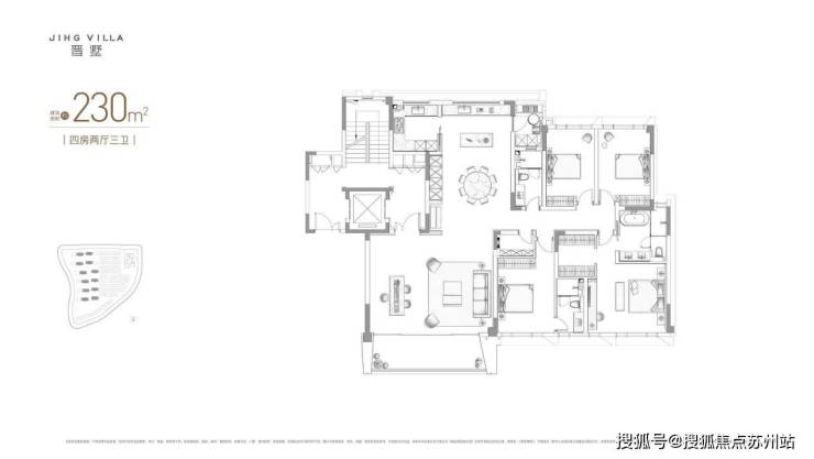
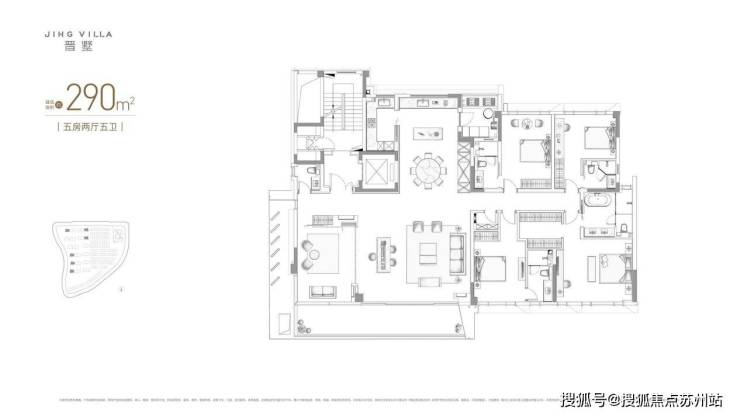
户型鉴赏
房子好不好,星合晋墅的户型会说话。星合晋墅的户型设计,真正做到了从“精神场域”到“生活场景”的全方位考量。我们先来看看建面约230㎡-350㎡的低密洋房,大面宽、短进深,采光和视野都做到了极致。
再看看那让人心动的联排院墅,每一寸空间都在告诉你,什么是真正的有天有地、有家有院。



优势分析
聊了这么多,这个项目最让人心动的点是什么?我想,是那座约11亩的湖叙SPACE会所。这不仅仅是个健身房或游泳池,它是一个“国际生活的艺术藏馆”。想象一下,下班后在这里游个泳,周末约朋友在羽毛球场挥洒汗水,或者在家里办个家族私宴,这里的高端厨房和宴会厅都能满足你。还有亲子阅读室,让陪伴更有质量。这已经超越了普通社区的配套,是一个纯粹的圈层生活范本,是业主们的第二会客厅。
当才华安放于土地,理想生活由此开篇
苏州的人才新政,像一阵春风,为无数奋斗者点亮了安家的灯塔。而星合晋墅,恰好就是那座最值得停靠的港湾。可以预见,未来这里将聚集一群城市中最具远见和才华的精英。他们不仅是邻居,更是志同道合的伙伴。孩子们在书香中成长,大人们在圈层中交流,社区的价值将随着人的聚集而不断攀升。选择这里,不仅是选择了一处物理空间,更是选择了一个与城市共成长、与精英为邻的未来。这,或许就是政策红利与理想人居最完美的结合。
联系方式
心动不如行动,想亲身感受这份美好,请联系:
18662309054