2026.中铁·咏月台(售楼处)网站 -中铁·咏月台销售中心 - 环境 - 户型 - 价格 - 地址 - 楼盘详情 - 配套 - 电话 - 交房时间 - 配套 - 电话 - 交房时间

搜狐焦点苏州站

2026-01-21 10:20:53

购房群

买房如何避坑,加入购房群,看看他们怎么说

立即进群

「中铁·咏月台」售楼处咨询电话:400-8673-567本项目暂不接受临时到访,过来参观样板房请记得提前来电预约!

【中铁·咏月台】售楼部热线:400-8673-567(已认证)✅✅

【中铁·咏月台】客户经理电话:400-8673-567(微信同号)✅✅

温馨提示:为了给您提供更高更好的接待服务质量,看房请提前致电售楼处预约!✅✅

【有免费看房车接送服务,如需预约,请致电售楼处】✅✅

中铁·咏月台,即,苏地2024-WG-Z30号地块项目,位于吴中经开区城南街道枫津路东侧、天灵路南侧,是2024年11月28日,中铁&天鸿伟业以底价42638万元竞得,成交楼面价14500元/平。

中铁·咏月台售楼处电话☎:400-8673567✅【售楼热线】中铁·咏月台营销中心热☎400-867-3567✅中铁·咏月台售楼处地址☎400-8673-567✅

项目的地块用途为城镇住宅用地,占地面积19603.7平。

根据公示,项目总建筑面积44926平,计容建筑面积29405.55平,容积率1.5.

根据规划,项目拟建8栋4-11F住宅,其中,3栋4F叠墅、1栋10F洋房、4栋11F洋房

中铁·咏月台售楼处电话☎:400-8673567✅【售楼热线】中铁·咏月台营销中心热☎400-867-3567✅中铁·咏月台售楼处地址☎400-8673-567✅

四代洋房+叠墅

中铁·咏月台项目主推约162/164平四代洋房及约176-192平叠墅产品。

项目规划3种户型:

四代洋房:约162/164平;

四层叠墅:约176-192平;

基础改善洋房:约132平;

项目目前发布了三种官方户型图

中铁·咏月台售楼处电话☎:400-8673567✅【售楼热线】中铁·咏月台营销中心热☎400-867-3567✅中铁·咏月台售楼处地址☎400-8673-567✅

洋房户型:建筑面积约132平

四代宅洋房:建筑面积约162平

中铁·咏月台售楼处电话☎:400-8673567✅【售楼热线】中铁·咏月台营销中心热☎400-867-3567✅中铁·咏月台售楼处地址☎400-8673-567✅

四代宅洋房:建筑面积约164平

中铁·咏月台售楼处电话☎:400-8673567✅【售楼热线】中铁·咏月台营销中心热☎400-867-3567✅中铁·咏月台售楼处地址☎400-8673-567✅

项目此前也发布了几种规划户型:

4#,4F叠墅

3梯6户 层高3.2米

建面约176-192平

纯4层真叠墅设计,分上下两叠,均有超高赠送空间

中铁·咏月台售楼处电话☎:400-8673567✅【售楼热线】中铁·咏月台营销中心热☎400-867-3567✅中铁·咏月台售楼处地址☎400-8673-567✅

下叠(建面约187/192平):

1楼带私家庭院,因首层为车库,下叠赠送的“地下室”实则为地上一层,告别传统地下室潮湿压抑,可做多元功能空间;

中铁·咏月台售楼处电话☎:400-8673567✅【售楼热线】中铁·咏月台营销中心热☎400-867-3567✅中铁·咏月台售楼处地址☎400-8673-567✅

上叠(建面约176平):

客厅挑高,南北双露台+星空屋顶露台,解锁空中花园、星空派对等多元生活场景。

中铁·咏月台售楼处电话☎:400-8673567✅【售楼热线】中铁·咏月台营销中心热☎400-867-3567✅中铁·咏月台售楼处地址☎400-8673-567✅

5#,10F洋房

2梯4户 层高3.05米

约162/164平

中铁·咏月台售楼处电话☎:400-8673567✅【售楼热线】中铁·咏月台营销中心热☎400-867-3567✅中铁·咏月台售楼处地址☎400-8673-567✅

偶数层户型

奇数层户型

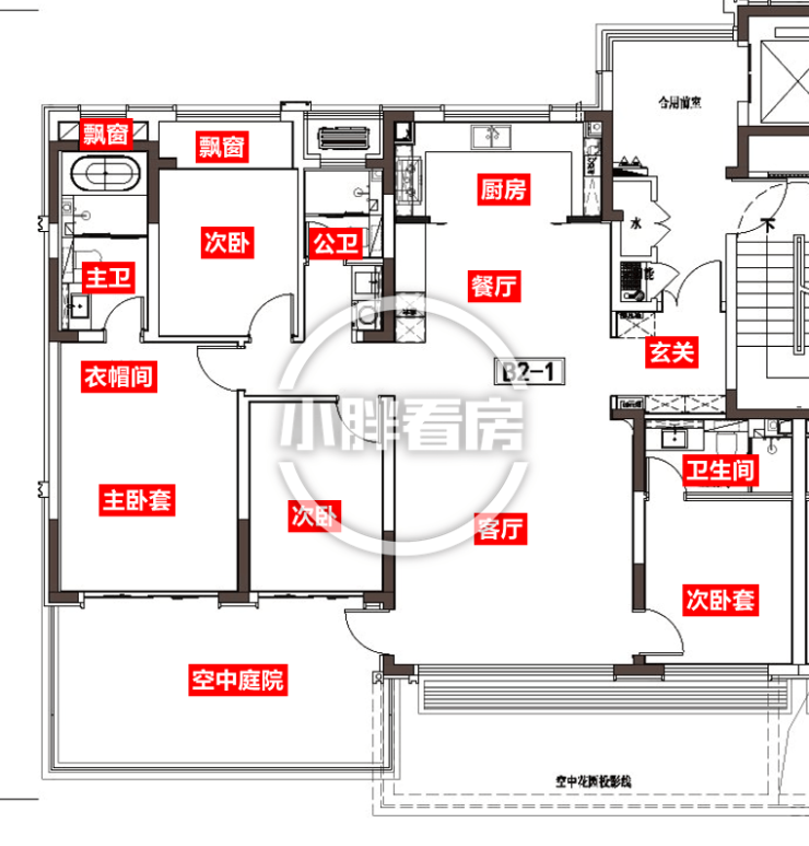
项目洋房户型做的是四代宅设计,都是带空中花园的!一梯两户的设计,带独立电梯前室,可以用作外玄关或者北花园!

南向四开间,三卧室朝南,采光条件不错。主卧设计了独立内卫和衣帽间,270度采光设计(仅东西边户,中间两户为墙壁)。次卧也设计为套房,不过为暗卫

中铁·咏月台售楼处电话☎:400-8673567✅【售楼热线】中铁·咏月台营销中心热☎400-867-3567✅中铁·咏月台售楼处地址☎400-8673-567✅

周边界面成熟

中铁·咏月台,即,苏地2024-WG-Z30号地块项目,位于吴中经开区城南街道枫津路东侧、天灵路南侧,属于吴中城南板块!

周边界面来看,也是比较成熟了。北面是天灵路,东面是河流,南面是7号线,西面是枫津路。

周边配套来说,也是比较齐全的的。

交通上面,小区南面靠近地铁7号线枫津路站,往南1站是红庄,可以换乘4号线,往东3站可以换乘2号线!整体来看,轨道交通出行是比较便利的!

自驾上面,小区附近有石湖东路、吴东快速路和东吴南路等主干道,日常出行也是比较便利的!

中铁·咏月台售楼处电话☎:400-8673567✅【售楼热线】中铁·咏月台营销中心热☎400-867-3567✅中铁·咏月台售楼处地址☎400-8673-567✅

商业上面,小区周边也是板块top级别!

中铁·咏月台售楼处电话☎:400-8673567✅【售楼热线】中铁·咏月台营销中心热☎400-867-3567✅中铁·咏月台售楼处地址☎400-8673-567✅

全部

相关资讯

报名成功
稍后会有专业的置业顾问联系您
返回楼盘

频道导航

返回首页

看房小程序

APP下载

电话拨通后,请您手动拨打分机号

确定拨打电话

电话号码:

分机号:(可能需要拨分机号)