在狮子山下,遇见理想生活的模样:公积金新政助力,打造梦想家园

搜狐焦点苏州站

2025-06-23 16:59:01

购房群

买房如何避坑,加入购房群,看看他们怎么说

立即进群

最近,公积金新政给不少家庭带来了好消息。养育未成年二孩的缴存人家庭,使用住房公积金贷款购买家庭首套或第二套自住住房的,贷款额度在可贷额度基础上可上浮30%。而养育未成年三孩及以上的缴存人家庭,贷款额度更是可以上浮40%。这一政策无疑为许多家庭减轻了购房压力,也让更多人有了实现理想生活的机会。

在这样的政策利好下,位于苏州狮子山狮子山澜庭/院(俗称狮山村地块)无疑成为了一个值得关注的项目。这里不仅有着优越的地理位置,更有着大师级的设计和品质,让人不禁想象,在这里生活会是怎样的一种体验。

狮子山澜庭/院:理想生活的起点

狮子山澜庭/院,位于中国·苏州·狮子山,由仁恒、华发和苏高新三大品牌联合开发。项目总建筑面积约24万方,容积率仅为1.27,综合楼面价25094元/㎡。社区规划分为东区狮子山澜庭和西区狮子山澜院,共有37栋6-8F洋房,总计674套住宅。户型配置从建面168-190-228㎡的洋房宽居,到约450-650㎡的澜墅产品,满足了不同家庭的需求。车位配比高达1:2.5,物业服务由仁恒物业负责,物业费为4.25元/平/月。备案均价一期39500元/平、二期41500元/平、三期43100元/平,交付时间为2023年3月和6月。

新区正核,狮子山前

新区核心,绝版地段

狮山板块是高新区的金融核心板块,聚集了大量的金融机构写字楼及高档住宅,是高新区现代化都市形象的展示区,也是高新区的城市名片。在这里,你不仅能感受到都市的繁华,还能享受到山水之间的宁静。

人文荟萃,城市地标

苏州狮山文化广场是一个将公共文化、科技设施融入开放性山水公园的文化广场。广场包括苏州博物馆西馆、苏州科技馆·工业展览馆、艺术剧院、地下空间和狮山公园5个子项目。未来,狮山全域将被打造成开放式城市会客厅,成为苏州城市的新名片、新地标。

咫尺商业,尽享繁华

项目紧邻龙湖天街金鹰国际泉屋百货美罗淮海街香格里拉酒店日航酒店等商业综合体及高端酒店。百万方的综合体可尽享一站式消费,吃、喝、玩、乐、休闲、购物、度假的需求在这里都可以满足。

全龄教育,优质医疗

狮山实验小学新区实验中学新区一中苏州外国语学校等8大名校环绕,沐浴知识的滋养。明基医院新区人民医院苏大附二院在侧,守护人生至美时光。

大师合著,驭领狮山

狮山正席,低密藏品

仁恒与华发,各自享誉苏州豪宅市场。在苏深耕数年,精雕细琢的一丝一缕都是品质的代名词。两大巨匠,于时代高处握手。以约1325亩真山水作衬,合力铸造稀世之珍的狮山正席,献映苏州一部大师级低密藏品。

△项目效果图

△项目实景图

极简立面,东方风范

狮子山澜庭采用日式公寓的风格,整体颜色以简单朴素的深灰色为主,搭配立面面砖,与苏州博物馆西馆的建筑风格遥相呼应。同样延续了江南文化的缂丝立面,城市地标和人居地标和谐共鸣,没有繁杂的工序,只为呈现理性而有序的居住态度。

△项目实景图

大师基因,限量墅居

景观设计团队是由贝尔高林操刀,东方文化智慧结合西方先进理念,国际化的造景水准,呈现出依山就势的独特狮山景观表达。移步其中,一种空灵简朴的松弛感迎面而来,自然环境与园林的静谧平衡的恰到好处,呈现出一种自然而然的状态。

△项目实景图

洋房宽居 & 澜墅产品

洋房户型,精装交付(168/190/228平)

约168㎡ 4房2厅2卫

丨一梯两户,3+1开间朝南,南向面宽13.5米,横厅6.2米丨主卧套房设计,独立衣帽间,主卫带浴缸,南次卧开间3.4米丨外卫干湿分离,厨房L型,带家政间,连接一个北向小阳台

约190㎡ 4房2厅3卫

丨一梯两户,3+1开间朝南,南向面宽15米,横厅7.1米丨主卧套房设计,独立衣帽间,主卫带浴缸,南向次卧套房丨南北双阳台,带家政间,洄游式动线

约228㎡ 4房2厅3卫

丨巨幅宽境横厅设计,约18m朝南采光面宽,生活空间敞亮通透;

丨双套房卧室,起居间从容自洽;

丨约7m 巨幕阳台,超广角级的瞰景视野,风景在此自由往来。

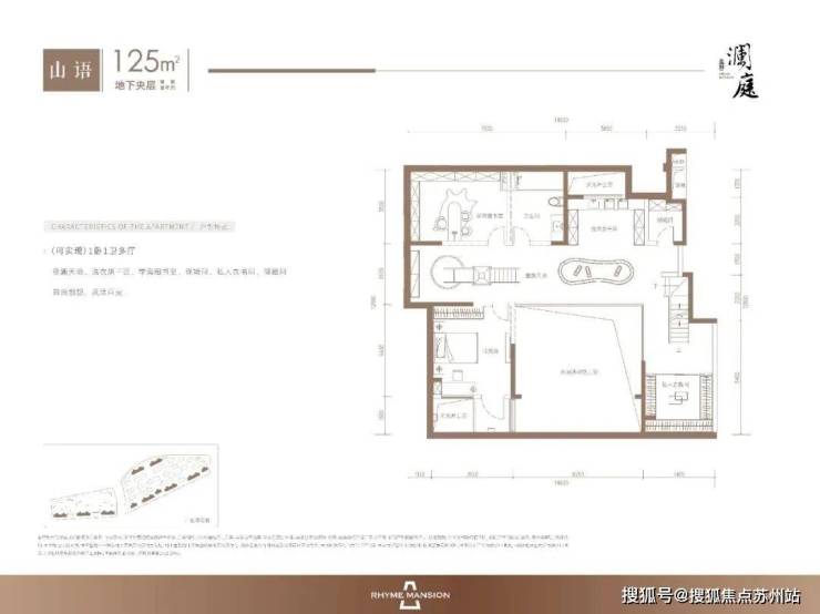
澜墅(洋房底复)地上1层(精装交付)+地下2层(毛坯)

➤打破底复产品的传统设计,创新超大采光井设计;

➤尽可能扩大采光面,将光引入到地下,增加地下空间的通透感和舒适度。

约456㎡ 4+1房2厅4卫

约529㎡ 5+1房2厅5卫

\

约657㎡ 5+1房2厅6卫

未来展望:在这里,遇见更好的自己

狮子山澜庭/院,你不仅能享受到都市的繁华,还能感受到山水之间的宁静。这里有着大师级的设计和品质,更有着优越的地理位置和丰富的配套设施。无论是二孩家庭还是三孩家庭,都能在这里找到属于自己的理想生活

联系方式

18662309054

在这里,遇见更好的自己,遇见理想生活的模样。

全部

相关资讯

报名成功
稍后会有专业的置业顾问联系您
返回楼盘

频道导航

返回首页

看房小程序

APP下载

电话拨通后,请您手动拨打分机号

确定拨打电话

电话号码:

分机号:(可能需要拨分机号)