
招商云澜湾
售楼处电话:400-818-9938(已认证)
招商云澜湾营销中心热线:400-818-9938(欢迎致电)
招商云澜湾售楼处预约电话:400-818-9938☎☎☎如有问题可来电咨询,
一对一为您服务!


△招商云澜湾135㎡上叠户型图

叠墅的舒适品质
低容积率的社区(包含独栋、双拼、联排、合院、叠墅等)本质上是一种对于土地价值的【奢侈性】消费。而随着城市中别墅新房产品的几乎断档,叠墅,特别是四层叠墅,可以满足更多人的需求,让更多的人能够享受高品质的居住环境。
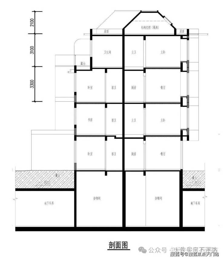
从叠墅的分类来看,四层叠墅就是楼栋层数为四层,同一单元内仅有四户:两户下叠(一层跃二层),两户上叠(三层跃四层)。相比与排名在后的六层叠墅(一单元六户)、八层叠墅(一单元八户),四层叠墅的楼层更低,户数更少,居住舒适感更高,产品的珍贵性更强。
四层叠墅中的上叠产品从入户空间,居住空间来说,私密性更强,3F和4F的采光空间优秀,享受主要功能用房朝南的优渥格局。同时空间不仅仅是横向的伸展,更是纵向的延伸,上下两层互不打扰、各个居室保持私密,成为了现代生活二代居的不二选择。
招商云澜湾135㎡上叠户型正是四层叠墅中的佼佼者。

叠墅的本质是较高的实用率
招商云澜湾135㎡上叠户型的每个空间都比较方正。在各个空间的组合上,依据功能布局和生活流线,兼顾高效和舒适。底层布置有一个卧室,可以为不便走楼梯的家人使用;或者作为客房,和二层主人卧室分离。客餐厅和厨房属于公共活动空间,与二层卧室空间“动静分区”,最大化避免干扰。
房地产专业有一个名词叫做“实用率”,是指住宅户型中会有一些没有计入使用面积,但却可以让住户独立使用的一部分面积,比如赠送的地下室、阁楼、独立使用的电梯厅等。将这些面积算到你的使用面积中,就成为你的实得面积。叠墅中的实得率高主要来源在于赠送。

再看看上叠的层高,三层3.3M,四层3.1M,这个高度居住起来比较舒适,无论是客厅,还是卧室,空间感都会非常不错。


一流的【主卧尺寸】
住宅中,【主卧三件套】以及其细分的标准,是其基础内涵和核心硬件。于是我们先看主卧套件。
01卧室空间合理
主卧室的第一要务就是需要宽敞。同时将卧室、卫浴、衣橱多空间串联结合,形成自成小世界的大套房。
招商云澜湾上叠户型的主卧套房面积达到约23㎡,面宽约3.9M,进深约3.5M。这个居住尺度还是比较舒适的。(备注:文中所提到的面积、面宽和进深是墙到墙的距离。)

△招商云澜湾135㎡上叠4F主卧示意图
有了足够的尺度,软装和陈设方面就具备了足够丰富元素的堆砌空间。无论你是喜欢比较简洁的现代风格,还是更加温馨的中式风格,都可以感受不一样的居住体验,同时自带南向大视野飘窗带来极致的观景体验。

大尺度的横厅
项目采用客餐厅合二为一,互相借景。客餐厅的面宽约6.7M,进深约3.5M。(备注:文中所提到的面积、面宽和进深是墙到墙的距离。)

大横厅是最近几年最流行的,将客厅和餐厅二合一,横向展开。优点是空间互相借景,互相延伸,显得更大。此外,由于南面更宽,可以有更多的采光面,会让客厅更加明亮,充满阳光。
招商云澜湾135㎡上叠户型做到了面宽约6.7米,完整的两个开间,可以说把宽厅的尺度做到了非常舒适。(备注:文中所提到的面积、面宽和进深是墙到墙的距离。)

△招商云澜湾135㎡上叠3F大横厅示意图
此外,这个餐厅的空间,继续向北渗透延伸,餐厅与厨房的也形成相互延伸,让空间再次延展开阔。

厨房则是预留了做U型厨房的空间。一条中轴线与餐桌形成对位,当移门都打开的时候,餐厨形成了一个整体,将餐厨空间也变成了一个蛮有仪式感的生活体验。

△招商云澜湾135㎡上叠3FU型厨房示意图

入户玄关
特别值得一提的是:3层门厅入户的玄关设计预留了入户收纳的实用功能。

△招商云澜湾135㎡上叠3F玄关示意图

【通风】【采光】技术评测

△招商云澜湾135㎡上叠户型采光图(4幢3F西边套)

△招商云澜湾135㎡上叠户型通风图(4幢3F西边套)
【采光性能】——得益于较高的窗地比,户型室内采光程度较好;虽然户型整体进深较大,但室内照度在1000lx以上的面积依然超过了50%,采光条件优异。餐厅客厅两开间相结合,整合了飘窗和阳台,强化了采光,加宽的厨房门设计让厨房可以借用餐客厅的采光,很好地补足了自身采光。4F的北侧空间通过开窗,向露台借光,有效改善了楼梯间采光弱的痛点。
【通风性能】——二开间双层叠墅设计,在3F把餐厅客厅两开间相结合,餐客厅一体化形成较为开阔的生活空间利于通风。几乎做满面宽的飘窗和阳台为通风创造了良好的条件。整个户型四个基本生活空间均有良好的通风带,户型南北通透,建筑南北两侧的风压差结合户型自身优势,使得通风效果十分优异。

△招商云澜湾135㎡上叠户型采光图(4幢4F西边套)

△招商云澜湾135㎡上叠户型通风图(4幢3F西边套)
小结:以上是对招商云澜湾135㎡上叠户型的评测,总结来说,叠墅产品能够享受更多的土地价值,而项目自身打造的众多居住品质提升更凸显产品的居住价值。
项目基本信息

总建筑面积:超11万方
可售住宅套数:617套(高层477套,叠加140套)
车位:约860个
容积率:约1.6
绿地率:约35%
产品类型:高层、叠加
产权:70年
项目地址:上海 · 松江 · 荣乐西路与三新路交汇处产
品面积段:
(1)建面约96㎡三室两厅两卫
(2)建面约100㎡三室两厅两卫
(3)建面约126㎡四室两厅两卫
(4)建面约135㎡叠拼别墅
(5)建面约141㎡叠拼别墅
房地联动价:49000元/㎡
招商云澜湾
售楼处电话:400-818-9938(已认证)
招商云澜湾营销中心热线:400-818-9938(欢迎致电)
招商云澜湾售楼处预约电话:400-818-9938☎☎☎如有问题可来电咨询,
一对一为您服务!