��无锡国控朗诗熙惠府
��无锡国控朗诗熙惠府售楼处电话☎️400-116-7720转777(专人接听)
��无锡国控朗诗熙惠府营销中心电话:☎️400-116-7720转777【营销中心】
��温馨提示:拨打400电话,听到嘀声后,输入分机号777即可!
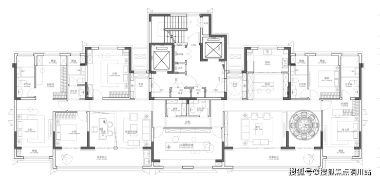
近期,据小道消息,国控朗诗·熙惠府迎来了一位实力客户,该客户一举买下了同一楼层的2套建面约168㎡无界科技大平层,并计划将其打通,改造成建面约336㎡(同一楼层2套建面约168㎡户型改造,以下简称:建面约336㎡)的超大尺度空间。
建面约336㎡的面积尺度、千万级的总价,直接刷新了惠山区大平层面积与总价的天花板。

计划改造图纸
近10年来,惠山新城区并未有面积突破200㎡的大平层,国控朗诗·熙惠府建面约168㎡无界科技大平层,是近10年来惠山新城区唯二面积突破150㎡的小高层新盘。

熙惠府5#立面效果图
项目一经面市便受到了地产业内人士以及购房者的高度认可与赞许,凭借着醇熟的资源占有、朗阔的空间享受、科技系统的舒适体验,成为了无锡高净值客群改善的“首选项”。
熙惠府建面约336㎡无界科技大平层,大开大合的格局,给了业主充分的改造空间,直接将居住的享受提升到了Next level!
两梯一户的电梯配比,营造更为私密尊崇的归家体验。约32.2m惊人面宽,再加上社区中央的C位加持,采光观景视野卓越,敞亮通透,营造更具生长性和舒适度的空间格局。
将原本属于不同户的次卧连通,可打造成容纳十人以上大圆桌的宴会厅,定制茶室或酒窖,开辟出朗阔的待客空间。约9.2m双连阳台,分列于宴会厅的两侧,极具视觉冲击力,不仅能对望中央园林,还能将惠山之眼摩天轮尽收眼底。
示意图 图源网络
原本东边户的客餐厅可改造成中西双厨,全明中厨,与开放式西厨中岛吧台,让中式美食和西式风味随意切换,南侧客厅外接宽境阳台,在引入城市风光的同时,更营造多种聚会场景。
此外,全明厨房,净水器、油烟机、蒸烤一体机、燃气灶、洗碗机等五大件齐备,烹饪游刃有余,满足高净值客群的品质需求。

示意图 图源网络
原本西边户客厅可改造成书房和家庭活动室,不管是男主人办公、会议,还是孩子影音游戏,家人的兴趣爱好都能妥善安放。
主卧套房,自带独立卫浴&独立衣帽间,精致有序的收纳空间,集功能使用和生活体验于一体,最大化满足业主的寝居享受。
示意图 图源网络
次卧套房设计,南向飘窗、独立卫浴、衣帽间齐备,可打造成阳光儿童房或者老人房,可以照顾到不同年龄段家人的生活习惯,生活互不干扰。
朗阔四房设计,让每个家庭成员都拥有一片属于自己的天地。生活在这里,既有无时无刻的陪伴,又有彼此独立的空间。
示意图 图源网络
熙惠府建面约336㎡无界科技大平层,不仅是空间的扩大,更是科技与居住的完美融合,是追求健康品质生活的购房者的理想之选。
作为惠山唯一在售的科技住宅,熙惠府采用朗诗三恒科技系统,营造“恒温、恒湿、恒氧、低噪、适光”的绿色健康舒适体验。

如今无锡正值冬季,天气寒冷,空调、取暖器和厚衣服是普通家庭的常用御寒设备。而朗诗的家里,以地源热泵系统、天棚辐射系统,室内全年保持约18-26℃,家中每一个角落都有舒适的温度,没有空调的吹风感和运行的噪音,无需厚重的被褥和衣物,也能让家人享受更加舒适的体感。
传统空调、地暖的取暖方式,会加剧室内空气干燥,而熙惠府室内湿度一直保持在30%-70%人体适宜区间,化解冬季干燥,给身体、肌肤全方位呵护。
此外,采用全置换式新风系统,PM2.5过滤效率可达95%左右,以下送上排的方式,源源不断地将清新空气引入室内,约1-2小时实现室内空气置换,确保家中空气始终保持清新自然。
室内空气的洁净不仅能为健康加分,也能减少打扫卫生的频率,节省业主做家务的时间。

| 全置换新风系统示意图
除了在温湿度和健康方面的关怀,项目还综合运用严密外窗、同层排水、声学迷宫等多重降噪系统,有效隔绝室外噪音,避免上下楼冲水的噪音影响。
无论是外界的声音还是楼上楼下嘈杂声,都不会对日常生活和睡眠造成干扰。外窗外遮阳系统可以调节室内光线,即使在阳光刺眼的午后,也能屏蔽强光,营造夜晚般睡眠环境。
城市大平层的底层价值逻辑,一定是基于城市核芯的卓越地段。
熙惠府坐落于惠山新城区惠山大道旁,鼎立惠山国际复合生活圈内,这里不仅是无锡北城市副中心,更是无锡城区与江阴协同发展的“桥头堡”。
惠山大道作为惠山新城区复合功能轴线,沿线聚集着无锡悦尚奥特莱斯、明都大厦、惠山行政审批中心、体育馆等公共配套,已成为惠山区门户展示窗口。

熙惠府区位图
近年来,惠山新城区在交通、教育、商业等配套持续升级,板块段位也在持续提升。
交通方面,锡澄S1线和凤翔快速路作为锡澄一体化的黄金走廊,S1线已通车,凤翔快速路北延已完工,中环北线建设也如火如荼,立体路网更完善,前往梁溪主城、经开区等城市热门板块更加高效便利。
| 图源网络
教育方面,除了现有的天一第三实验小学、省锡中西漳中学之外,惠山未来学校在建设当中,将提供更国际化的教育。
商业方面,山姆会员商店惠山店已在建设当中,12月19日土拍,“无锡龙湖天街”正式落户惠山,规划打造集购物、休闲、娱乐、潮流、亲子、文化为一体的TOD商业项目,商业MALL总建筑面积超14万㎡,将进一步提升区域内城市功能和商业品质,为区域高质量发展注入新的“源头活水”。

无锡龙湖天街效果图
熙惠府不仅在产品尺度和舒适上全面升级,更在社区配套上追求完美,以度假式园林、会所、全龄架空层,全方位满足高净值客群对于品质生活的需求。
熙惠府打造集自然、艺术、酒店特色的度假式社区,约6400 ㎡中轴假日景观带,是目前惠山区最大且功能最全的中央景观带,不仅增添了社区的美感,更营造出与自然亲密无间的生活体验。


熙惠府效果图
项目北入口设计了约4540㎡口袋花园,是社区和城市相融合的绿化景观,漫步赏景放松身心;约280㎡度假浅水池,享受都市里难得的休闲时光。
此外,项目还打造了全龄架空层,观影区、咖啡吧、阅读区等主题空间,为不同年龄段的业主提供了丰富的活动场所,营造生活的质感与温度。


熙惠府实景图
除了园林的打造,熙惠府在配套设施上也下足了功夫。项目配备熙荟Club会所,健身房、瑜伽室、台球室等多功能运动场地,专业健身器材一应俱全,更与知名健身教练合作,为业主提供专业私教服务,运动休闲下楼即达;贴心打造私宴厅、棋牌室,可预约使用,未来业主家庭聚会或者待客宴请更为体面。


| 熙荟Club会所实景图
在改善同质化严重的当下,熙惠府建面约336㎡无界科技大平层,不局限于功能的叠加,而是真正从居住舒适的本真层面升维,兑现高质改善所享。