联仲·都悦汇
售楼处电话☎:400-880-0703✔✔
如有问题欢迎来电咨询,来电即可享受买房优惠!
预约来电尊享购房优惠,可预约案场内部销售人员,专业一对一热情服务,让您用专业眼光去买房。
联仲·都悦汇售楼处电话☎:400-880-0703✔✔
4008800703
联仲·都悦汇售楼处电话☎:400-880-0703✔✔
闵行·旗忠别墅富人区
【联仲·都悦汇】
建面310~411㎡商业联排别墅
法式干挂 地上三层 地下一层
带南北双花园90-300㎡
总价约:1420-1800万
实景现房 不限购 通燃气
联仲·都悦汇售楼处电话☎:400-880-0703✔✔联仲·都悦汇营销中心电话:400-8800-703【24小时热线】联仲·都悦汇预约热线:4008800703【售楼处电话】

联仲·都悦汇售楼处电话☎:400-880-0703✔✔联仲·都悦汇营销中心电话:400-8800-703【24小时热线】联仲·都悦汇预约热线:4008800703【售楼处电话】
【开发商】:上海联仲置业有限公司
【物业】:上海仲量联行物业管理公司
【容积率】:1.0
【绿化率】:35%
【车位比】:1:2.1
【物业费】:8元/㎡/月
【本次开盘】:14套
【物业类型】:商业联排别墅
【交付标准】:毛坯
【拿地时间】:2014年8月
【交房时间】:2023年6月
联仲·都悦汇售楼处电话☎:400-880-0703✔✔联仲·都悦汇营销中心电话:400-8800-703【24小时热线】联仲·都悦汇预约热线:4008800703【售楼处电话】
在售户型:建面约310-410平米,地上三层地下一层
(地上:一层层高3.6米/二层层高3.4米/三层层高3.4米/地下层高5.4米)
总价:约1400-1800万️
单价:约5万/平米
小区整体商业:10万方(在建)南北双花园90-300平
水电:商水&商电,电1.3元/度,水6元/吨
产权车位:约30万左右
联仲·都悦汇售楼处电话☎:400-880-0703✔✔联仲·都悦汇营销中心电话:400-8800-703【24小时热线】联仲·都悦汇预约热线:4008800703【售楼处电话】

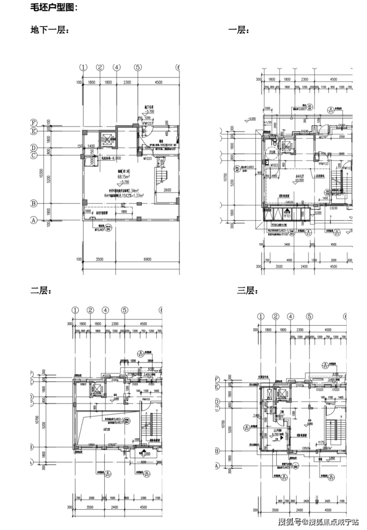
02.户型图及样板间照户
(特殊说明:户型朝向-上南下北)
约10.4米大面宽,面积达到55平
送电梯,北进门,南花园,超大地下室
客厅7米落地窗,采光明亮,尽显大气
联仲·都悦汇售楼处电话☎:400-880-0703✔✔联仲·都悦汇营销中心电话:400-8800-703【24小时热线】联仲·都悦汇预约热线:4008800703【售楼处电话】
约310平户型图▼

联仲·都悦汇售楼处电话☎:400-880-0703✔✔联仲·都悦汇营销中心电话:400-8800-703【24小时热线】联仲·都悦汇预约热线:4008800703【售楼处电话】
约378~420平户型图▼

联仲·都悦汇售楼处电话☎:400-880-0703✔✔联仲·都悦汇营销中心电话:400-8800-703【24小时热线】联仲·都悦汇预约热线:4008800703【售楼处电话】
约407~441平户型图▼

联仲·都悦汇售楼处电话☎:400-880-0703✔✔联仲·都悦汇营销中心电话:400-8800-703【24小时热线】联仲·都悦汇预约热线:4008800703【售楼处电话】
样板间效果图如下:
联仲·都悦汇售楼处电话☎:400-880-0703✔✔联仲·都悦汇营销中心电话:400-8800-703【24小时热线】联仲·都悦汇预约热线:4008800703【售楼处电话】
联仲·都悦汇售楼处电话☎:400-880-0703✔✔联仲·都悦汇营销中心电话:400-8800-703【24小时热线】联仲·都悦汇预约热线:4008800703【售楼处电话】
联仲·都悦汇售楼处电话☎:400-880-0703✔✔联仲·都悦汇营销中心电话:400-8800-703【24小时热线】联仲·都悦汇预约热线:4008800703【售楼处电话】
03.项目区位配套
联仲·都悦汇售楼处电话☎:400-880-0703✔✔联仲·都悦汇营销中心电话:400-8800-703【24小时热线】联仲·都悦汇预约热线:4008800703【售楼处电话】【联仲·都悦汇】位于闵行马桥旗忠别墅区,旗忠别墅区是上海老牌的富人区,与松江佘山、浦东东郊齐称为沪上三大国际别墅区。上海仅存少量的容积率0.18以下超低密度居住用地中,大多数在马桥旗忠别墅区。
板块以低容积率、生态自然环境和高端国际品牌配置,2010年被列为上海第二批大型居住社区之一。总建面约33万方城市综合体联仲都悦汇位于旗忠板块正核心,紧临网球中心,超10万方市政绿化所环绕。
联仲·都悦汇售楼处电话☎:400-880-0703✔✔联仲·都悦汇营销中心电话:400-8800-703【24小时热线】联仲·都悦汇预约热线:4008800703【售楼处电话】【联仲都悦汇】同样是低密度别墅区里的一员,背靠绿城玫瑰园,容积率低至1.0。项目贯穿了3条自然水系,分为ABCD四个地块,其中ABC为商住办综合地块,自带商业办公。
交通配套方面:项目距离嘉闵高架元江路出口3公里,毗邻G15、S32等快速主动脉,大虹桥,抵达浦东机场,快捷畅达全城。
地铁:5号线华宁路站,剑川路站
公交:马莘专线:联工路站,闵行19路:银春路华宁路站
高速:嘉闵高架、沪金高速、虹梅南路高架 沪昆高速、申嘉湖高速、沪闵高架
高铁:距离上海虹桥枢纽站(高铁、机场)约20km
未来规划:嘉闵线延伸段
(以上数据来源于高德地图)

联仲·都悦汇售楼处电话☎:400-880-0703✔✔联仲·都悦汇营销中心电话:400-8800-703【24小时热线】联仲·都悦汇预约热线:4008800703【售楼处电话】
商业配套方面:项目自带10万方商业,为旗忠唯一的综合性商业配套,其多元化的业态结构,结合旗忠独有的资源,必将带来旗忠全新生活方式。
生态资源方面:项目周边有马桥森林公园、旗忠高尔夫球场、旗忠网球中心、韩湘水博园、养云安缦酒店等。
联仲·都悦汇售楼处电话☎:400-880-0703✔✔联仲·都悦汇营销中心电话:400-8800-703【24小时热线】联仲·都悦汇预约热线:4008800703【售楼处电话】
教育资源方面:周边有复旦万科实验学校,德威英国国际学校、斯代文森国际高中、上海美高学校。幼儿园:元祥幼儿园、富杰幼儿园启英幼儿园,大学:上海交通大学、华东师范大学




联仲·都悦汇售楼处电话☎:400-880-0703✔✔联仲·都悦汇营销中心电话:400-8800-703【24小时热线】联仲·都悦汇预约热线:4008800703【售楼处电话】
1、什么是房产:房屋产权的简称。
2、什么是地产:是指土地财产。
3、什么是房地产:是房产和地产的总称。
4、什么是房地产业:从事房地产开发、建设、经营、管理以及维修、装饰和服务的综合性产业。
5、什么是房地产开发:是指在依法取得土地使用权的土地上按照使用性质的要求进行基础设施、房屋建筑的活动。
6、什么是土地开发:是将“生地”开发成可供使用的土地。
7、集体土地是指:农村集体所有的土地。
8、征用土地是指:国家为了公共利益的需要,可依照法律规定对集体所有的土地实行征用。
9、什么是土地所有权:是指国家或集体经济组织对国家土地和集体土地依法享有的占有、使用、收益和处分的权能。
10、什么是土地使用权的出让:指国家以协议、招标、拍卖的方式将土地所有权在一定年限内出让给土地使用者,由使用者向国家支付土地使用权出让金的行为。
11、什么是土地使用权转让:是指土地使用者通过出售、交换、赠与和继承的方式将土地使用权再转移的行为。
12、什么是地籍、产籍:是对在房地产调查登记过程产生的各种图表、证件等登记资料,经过整理、加工、分类而形成的图、档、卡、册等资料的总称。
13、生地是指:不具备开发条件的土地。
14、熟地是指:已完成三通一平(水、电、道路,土地平整)或七通一平,具备开发条件的土地。
15、什么是宗地:是地籍的最小单元,是指以权属界线组成的封闭地块。
16、什么是宗地图:是土地使用合同书附图及房地产登记卡附图。它反映一宗地的基本情况。包括:宗地权属界线、界址点位置、宗地内建筑位置与性质、与相邻宗地的关系等。
17、证书附图是指:房地产后面的附图,主要反映房地产情况及房地产所在宗地情况。
18、什么是物业管理:泛指一切有关房地产开发、经营、商品房销售、租赁及售后服务。
19、什么是业主委员会:是在物业管理区域内代表全体业主实施自治管理的组织。是代表
物业全体业主合法权益的社会团体,其合法权益受国家法律保护。
20、业主委员会是如何产生的:由业主大会从全体业主中选举产生。
21、住房补贴是指:国家为职工解决住房问题而给予的补贴资助。
22、房屋的所有权是指:对房屋全面支配的权利。
23、房地产交易的两种主要形式是:地产交易形式与房产交易形式。
24、建筑物是指:人工建造而成的房屋和构筑物。
25、构筑物是指:建筑物中除房屋以外的东西。
26、什么是期房:是指消费者在购买时不具备即买即可入住的商品房。
27、期房是如何介定的:房地产开发商拿到商品房预售许可证开始至取得房地产权证大产证或竣工验收合格可以直接入住使用)为止。
28、什么是预售合同:消费者在购买期房时签定的销售合同。
29、什么是现房:是指消费者在购买时具备即买即可入住的商品房,即开发商已办妥所售的商品房的大产证(或已经竣工验收合格并交付使用)的商品房。
30、什么是毛坯房:房地产商交付屋内只有门框没有门,墙面地面仅做基础处理而未做表面处理的房叫毛坯房。
31、什么是成品房:是指对墙面、天花、门套、地板实行装修。
32、什么是商品房:是指以完全的市场价格向购房者出售的房子。
33、商品房预售是指:在房地产尚未建成以前,房地产的经销商在取得受买人一定数量的定金后,将期房出售给受买人。
34、商品房现售是指:指房地产开发企业将竣工验收合格的商品房出售给买受人。
35、二手房通常指的是:再次进行买卖交易的住房。
36、经济适用房指的是:面向中低收入家庭的普通住宅。
37、例出3种以上的安居房的种类:准成本房、全成本房、全成本微利房和社会微利房。
38、低层住宅的介定:1-3层的住宅。
39、多层住宅的介定:4-6层的住宅。
40、小高层住宅的介定:7-11层的住宅。
41、中高层住宅的介定:12-16层的住宅。
42、高层住宅的介定:16层以上为高层住宅。
43、超高层建筑的介定:总高度超过100米的建筑。
44、商品房的结构是指:房屋主体所使用的施工工艺和用材。
45、钢结构的意思是:承重的主要结构是用钢材料建造的,包括悬索结构。
46、钢混结构的意思是:承重的主要结构是用钢和混凝上建造的。
47、砖木结构的意思是:承重的主要结构是用砖、木材建造的。
48、砖混结构的意思是:主要是砖墙承重,部分是钢盘混凝土承重的结构。
49、框架结构的意思是:以钢筋混凝土浇捣成承重梁柱,再用预制的隔墙分户的结构。
50、开间指的是:一间房屋内一面墙的定位轴线到另一面墙的定位轴线之间的实际距离。
联仲·都悦汇
售楼处电话☎:400-880-0703✔✔
如有问题欢迎来电咨询,来电即可享受买房优惠!
预约来电尊享购房优惠,可预约案场内部销售人员,专业一对一热情服务,让您用专业眼光去买房。
联仲·都悦汇售楼处电话☎:400-880-0703✔✔
楼盘项目全面介绍,本电话为开发商提供线上预约售楼电话,楼盘项目全面介绍(包含楼盘简介,均价,房价,现房,期房,别墅,叠墅,大平层,价格,楼盘地址,户型图,交通规划,备案价,备案名,项目配套,样板间,开盘时间,认筹时间,楼盘详情,售楼处电话,最新消息,最新详情,周边配套,一房一价,最新进展等详情咨询)楼盘详情丨价格丨更多优惠丨机不可失丨欢迎致电丨诚邀品鉴!售楼处位置丨特价房丨工抵房丨剩余房源丨户型图丨最新消息丨免责声明:将文章内容综合来源于网络、只作分享,版权归原作者所有!!如有侵权,请联系我们,我们第一时间处理如有问题欢迎来电咨询,专业一对一热情服务,让您用专业眼光去买房。如果您想了解更多楼盘详情,欢迎提前预约拨打