一、板块发展:松江新城的“黄金十字”
广富林板块作为松江新城核心,依托G60科创走廊政策红利,正加速成为产城融合示范区。国贸海上原墅占据板块腹地,毗邻松江大学城产学研基地,未来将吸引高知人才与科创企业入驻,带动区域价值持续攀升。
二、匠心设计:户型解析与空间哲学
项目以“功能复合”为核心理念,打造适配多代家庭的居住空间:
110㎡洋房:三室两厅两卫,U型厨房+双卫设计,满足三代同堂需求;
160㎡叠墅:上下双主卧套房,独立家政间与储藏室,提升生活效率;
195㎡联排:地下室可变身家庭影院或私人健身房,顶层露台可定制星空花园。
户型得房率超80%,远超市场平均水平,实现“面积零浪费”。
面积及价格预测:(因项目未定价,仅参考周边新房预测,仅供参考具体以项目一房一价为准)
洋房:(精装交付)
建筑面积约109㎡ 三房2厅2卫
建筑面积约120㎡ 四房2厅2卫
建筑面积约143㎡ 四房2厅2卫
旁边在售新房小高层总高14-16层,售价约54000-62000元,按照以往经验,应该是面积越大单价越高,国贸为洋房产品总高6-8层,从产品品质和居住舒适度上预测国贸价格应该更高。但此地块有叠加和联排产品做价格差,应该洋房在价格上会有惊喜,值得期待!
叠加:(精装交付)
建筑面积约140㎡ 上叠
建筑面积约150㎡ 下叠
周边叠加毛坯上叠售价900-1100万;下叠1000-1200万,国贸为装修交付,应该价格会比周边毛坯有所上浮。且从户型图上看,横厅以及内庭院挑空等设计,户型设计更优秀且实际利用率更高。
联排:(毛坯交付)
建筑面积约155㎡
建筑面积约175㎡
建筑面积约196㎡
广富林街道联排产品断供已久,二手房合生广富汇售价8-9万,且一房难求,佘山玺越95平产品挂牌价都要在950-1100万,核算下来单价约10-11万左右。因受政府限价,国贸此地块新房联排对比二手房价格应该比较有优势,只考虑联排的客户要提早准备摇号了。
户型图如下:(过程稿仅供参考, 以开发商官宣为准)
洋房约109㎡:
洋房总高度6层-8层,得房率高,居住舒适度高,从面积段可以看出此小区以改善型为主,最小面积109㎡为舒适三房,飞机户型,由图纸可以看出大阳台的设计也比较符合当下大家对于户型的需求。

洋房122㎡:4房2厅2卫
由图纸比例来看,客厅是一大亮点

洋房143㎡:

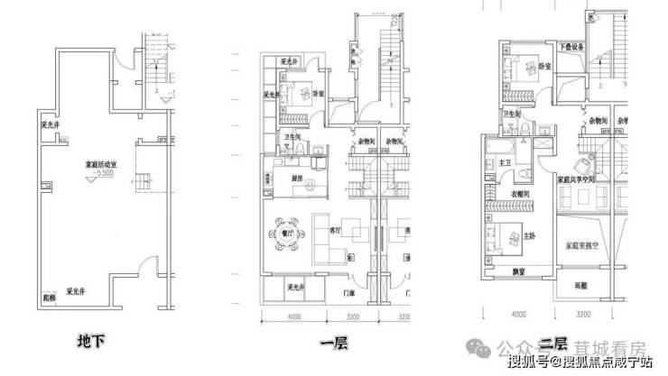
下叠154㎡:
上叠143㎡:
联排建筑面积约196㎡

联排建筑面积约175㎡

联排建筑面积约155㎡
三、生活场景:从日常到非凡
清晨:在广富林郊野公园慢跑,呼吸负氧离子;
午后:步行至松江大学城咖啡馆,享受书香与咖啡香交织的时光;
夜晚:归家即入私家庭院,仰望星空或与家人围炉夜话。
四、价格策略:理性中的价值跃升
项目总价区间700万-1200万,对比同面积段市区豪宅(均价10万+),性价比优势显著。首付比例低至30%,结合公积金组合贷,减轻置业压力。
五、客群画像:谁适合选择这里?
高校教师与科创精英:松江大学城与G60产业带的高收入群体;
多代家庭:需兼顾老人养老与子女教育的改善型客户;
资产保值型买家:看重低密稀缺性与板块发展红利。
预约咨询热线:400-960-1656☎, 加微咨询:139 1616 5691(加微,不要来电,备注楼盘名字)