虹口北外滩【☮🔥越秀外滩樾售楼处电话:400-8787-740👈🔥】样板间已开放,建面约238~338㎡海派院墅震撼入市!欢迎品鉴


【☮🔥越秀外滩樾售楼处电话:400-8787-740👈🔥】项目地块四至范围
东至:梧州路,隔壁是中皇广场
西至:hk270B-02,隔壁就是1933老场坊
南至:周家嘴路
北至:柘皋路☮🔥越秀外滩樾售楼处电话:400-8787-740👈🔥
日前,上海市规划和自然资源局对上海漕越经济发展有限公司虹口区嘉兴街道hk270b-04地块历史风貌保护项目进行了设计方案公示,项目未来将呈现48套低密风貌里弄住宅,面积约238-338㎡。

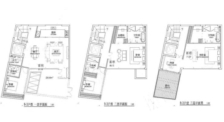
户型图介绍☮🔥越秀外滩樾售楼处电话:400-8787-740👈🔥
(过程稿仅供参考,最终以实际为准)
236.25㎡ A户型
239.13㎡ B户型☮🔥越秀外滩樾售楼处电话:400-8787-740👈🔥
250.89㎡ B-3户型☮🔥越秀外滩樾售楼处电话:400-8787-740👈🔥
C户型☮🔥越秀外滩樾售楼处电话:400-8787-740👈🔥
291.42㎡ D户型☮🔥越秀外滩樾售楼处电话:400-8787-740👈🔥☮🔥越秀外滩樾售楼处电话:400-8787-740👈🔥
基础信息
【项目名称】☮🔥越秀外滩樾售楼处电话:400-8787-740👈🔥
【开发商】上海漕越经济发展有限公司
【项目位置】上海市·虹口区·梧州路235弄
【项目类别】70年产权住宅
【项目类型】风貌别墅
【可售户数】48套(风貌)
【容积率】约1.3
☮🔥越秀外滩樾售楼处电话:400-8787-740👈🔥
【一座码头 启航外滩百年世界史】
项目所在地北外滩,是百年前上海的“下海”地。作为上海开埠后第一座码头的诞生地,北外滩率先“开眼看世界”,海纳万国文化风潮,众多此后影响中国的创举在此诞生,是上海最早的“十里洋场”
▲ 示意图,图片来源于网络☮🔥越秀外滩樾售楼处电话:400-8787-740👈🔥
☮🔥越秀外滩樾售楼处电话:400-8787-740👈🔥
【一江一河 再立世界上海新传】
傲立“一江一河”交汇处(直线距离约1.1KM),未来将打造成为彰显上海城市核心竞争力的黄金水岸和具有国际影响力的世界级城市会客厅,出入之间,相逢城市高阶未来
☮🔥越秀外滩樾售楼处电话:400-8787-740👈🔥
▲ 示意图,图片来源于网络
【北外滩 面向世界的上海新封面】
北外滩,与外滩、陆家嘴并称为上海的“黄金三角”。将以2座陆家嘴的商务体量规划,新天地2.0生活圈打造,成为上海跃升世界舞台的“中心发力”新引擎☮🔥越秀外滩樾售楼处电话:400-8787-740👈🔥
☮🔥越秀外滩樾售楼处电话:400-8787-740👈🔥
▲ 示意图,图片来源于网络
【中央商务区 未来上海腾飞引擎】
☮🔥越秀外滩樾售楼处电话:400-8787-740👈🔥
区域能级:总开发面积约840万方,40栋甲级写字楼城市地标:480米浦西第一高楼,19栋摩天大楼集群金融产业:2100+家金融企业赋能,资产管理规模超8万亿元,位居全市第一航运格局:4500+家航运企业集聚(上港集团、中远海运等),打造国际航运中心全球贸易:2500+家贸易企业入驻(摩亚方舟、银联商务等)新兴产业:129家新增高新技术企业,113家市区科技小巨人企业(数据来源:上海市规划局《北外滩地区控制性详细规划》)
▲ 示意图,图片来源于网络
☮🔥越秀外滩樾售楼处电话:400-8787-740👈🔥
☮🔥越秀外滩樾售楼处电话:400-8787-740👈🔥
【立体交通 | 无界畅达世界 擎动城市脉搏】
全城畅达:☮🔥越秀外滩樾售楼处电话:400-8787-740👈🔥
约360米新建路隧道(直线距离),快速直达陆家嘴CBD;
约670米外滩隧道(直线距离),直达外滩金融商业街以及老码头;
约150米北横通道(直线距离)贯通全城,快速通达虹桥机场/虹桥火车站;
约2.4公里大连路隧道(直线距离),直达浦东东方路、世纪大道、八百伴商业圈
四轨交汇:☮🔥越秀外滩樾售楼处电话:400-8787-740👈🔥
轨交4/10号线海伦路站约850m(直线距离),3站南京东路,6站新天地。
▲ *交通路网示意图,仅供参考。本区位图仅用于本小区地理方位示意,非实际地图,相关信息并非按比例缩放。
☮🔥越秀外滩樾售楼处电话:400-8787-740👈🔥
【核心商圈 | 高阶商业配套 国际摩登领潮】
商业配套方面项目约2公里内,多元繁华构筑封面商业圈
北外滩商圈直线距离约500米;
外滩商圈直线距离约1000米;
陆家嘴商圈直线距离约1500米;
瑞虹商圈直线距离约900米;
▲ 商圈距离示意图,仅供参考。本区位图仅用于本小区地理方位示意,非实际地图,相关信息并非按比例缩放。
☮🔥越秀外滩樾售楼处电话:400-8787-740👈🔥
【高端医疗 | 优质三甲医院 护航健康生活】
三公里内四所三甲医院,全生命周期护航
新华医院(儿科专长);
复旦大学附属妇产医院;☮🔥越秀外滩樾售楼处电话:400-8787-740👈🔥
上海市第一人民医院;
上海东方医院(血管外科专长);
【学府荟萃 | 全龄教育培优 一脉书香传承】
幼儿园:约1公里内6所幼儿园(直线距离),涵盖东余杭路幼儿园等3所示范级学校;
小学:约1.5公里内5所小学(直线距离),涵盖区重点四川北路第一小学;
中学:约1.6公里内6所中学(直线距离),1所市重点、2所区重点。一路之隔上海虹口二中心小学(在建中),约2.3公里市重点上海外国语大学附属外国语学校(直线距离)*施教区及就学政策以教育部门规划为准
▲ 示意图,图片来源于网络☮🔥越秀外滩樾售楼处电话:400-8787-740👈🔥
☮🔥越秀外滩樾售楼处电话:400-8787-740👈🔥
【滨江低密 | 丰盈自然绿地 城市诗意回归】
2.5公里北外滩滨江绿地(约800m直达),四川北路公园、和平公园、鲁迅公园3大公园环伺,于滨江和城市低密绿芯之间,肇启当代诗意生活传序。
☮🔥越秀外滩樾售楼处电话:400-8787-740👈🔥
▲ 示意图,图片来源于网络
☮🔥越秀外滩樾售楼处电话:400-8787-740👈🔥
☮🔥越秀外滩樾售楼处电话:400-8787-740👈🔥
程绍正韬,建筑室内设计之东方主义集大成者,致力于东方文化的坚守与创新。他打破惯常的职业思维,将生活方式化作一种哲学态度,融入空间设计,让设计不止于作品。
☮🔥越秀外滩樾售楼处电话:400-8787-740👈🔥
李玮珉,撑起中国豪宅设计半壁江山,擅长为城市塑造文化符号建筑作品。他的作品更多用极简的方式来表明态度,崇尚简而高效的现代生活方式。庄重的建筑语汇,适时注入艺术、自然与美学,让空间充满想象力。
☮🔥越秀外滩樾售楼处电话:400-8787-740👈🔥
复刻百年前的高端工艺元素,让海派造诣世纪传承。清砖立柱、古典门头、封闭门窗、岩石山墙等经典海派建筑风貌转译,于历史和未来之间收藏百年上海。☮🔥越秀外滩樾售楼处电话:400-8787-740👈🔥
▲ 本图片仅为方案过程讨论稿,并非交付标准
☮🔥越秀外滩樾售楼处电话:400-8787-740👈🔥
巷弄新生:内环内难得双拼别墅 ,超越风貌建筑的尺度感;
建筑新生:创新风貌规制,致微而筑的建筑腔调赏新;
美学新生:转译远东第一豪宅立面美学,收藏名门望族生活;
材质新生:豪宅同款奢砖、大面积奢石运用,定制家族排场;