
海上清和玺(备案名:清和名庭)是上海徐汇区长桥板块的高端改善住宅,由招商蛇口、南昌市政、徐汇城投三大国企联合开发,主打低密精装与文教资源。
一、基础信息
位置:徐汇区 上中路与龙川路交汇处(上海中学对面)
板块:长桥板块(徐汇滨江辐射区,直线距滨江约 1.6 公里)
规模:占地约 3.97 万㎡,总建面约 17.2 万㎡
产品:10 栋(6-7 层洋房 + 12-33 层高层),共 834 户
容积率:3.12,绿化率:44%
车位:配比约 1:1.2
物业:招商局物业,物业费:10 元 /㎡/ 月
交房:预计 2027 年 12 月 31 日(精装交付)
均价:约11.07 万元 /㎡
总价:约1100 万 - 2300 万元
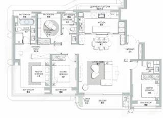
二、主力户型(建面)
112㎡ 三房两厅两卫
三开间朝南,南北通透,动静分区
120㎡ 三房两厅两卫
宽景阳台,主卧套房设计
134㎡ 三房两厅两卫
横厅布局,空间开阔
177㎡ 四房两厅三卫
四开间朝南,双套房,适合多代同堂
三、装修标准(高端精装)
地面 / 墙面:奢石(巴西银河白)、奢玉(土耳其黑曜石)、艺术拼花
系统:中央空调、地暖、新风系统
厨房:博世厨电、洗碗机
卫浴:唯宝台盆、科勒龙头、高仪智能马桶
四、交通配套
地铁:近 15 号线罗秀路站;临近在建 23 号线
自驾:中环路、龙耀路隧道,10 分钟到徐家汇、15 分钟到前滩
五、生活 & 教育
教育:对口上海小学、徐教院附中,紧邻上海中学
商业:近徐汇滨江商圈、徐家汇商圈
生态:近徐汇滨江 8.4 公里景观带、上海植物园
社区:配约 2000㎡会所(恒温泳池、健身房)
六、核心亮点
区位:徐汇中环内,滨江 + 成熟配套双重利好
品牌:三大国企开发,招商 “玺” 系高端产品线
文教:优质学区 + 上海中学,教育资源突出
产品:低密社区、精装标准高、户型改善型强