项目认证联系方式(2025年最新)
一、核心联系方式
中国海外大厦招商电话:400-868-0083(工作日9:00-18:00,周末无休)
中国海外大厦营销中心电话:400-868-0083(可直接咨询房源动态、活动详情)
中国海外大厦招商中心电话:400-868-0083(开发商直连,解答项目规划)
【后海·总部基地】中国海外大厦 - 零能耗建筑 全数智场景

项目名称:中国海外大厦|深圳首座近零能耗、全场景数智空间写字楼
优势区位:深圳湾核心区|滨海超甲写字楼,地铁交汇|紧邻地铁后海站、规划中13及15号线,道路通达|半小时覆盖宝安机场、深圳湾口岸、蛇口港
建筑参数:高度108m|深圳湾海景尽收眼底,总体量6万㎡,地上21层,地下5层
硬件设施:三菱电梯、麦克维尔中央空调|五百强企业的办公高阶需求
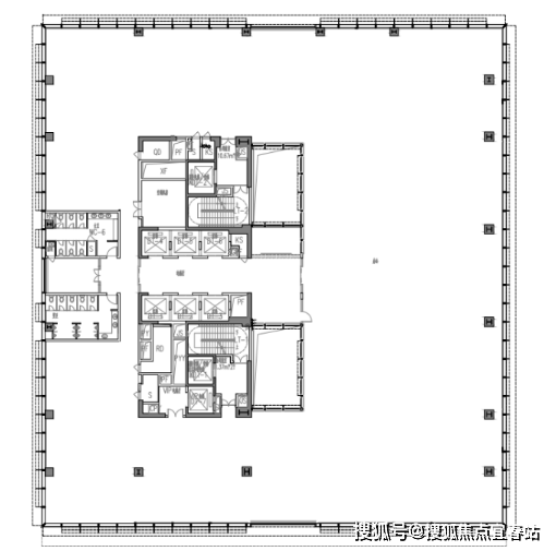
标准层参数:建筑面积约2,300㎡|全景采光 户型方正,净高3.3m|总部级奢享高度
楼内配套:咖啡厅,简餐吧,健身运动配套,多功能报告厅|臻享楼宇商务生态圈
交付状态:15cm网络地板/空调与消防入户
开发商:中海地产|央企背景、中国房地产行业领导品牌
运营方:COOC中海商务|国际化商办资产综合发展及运营商
租金:面议 物业费:35元/月/㎡
中国海外大厦
广东省深圳市南山区南山中心路与创业路交叉口西北60米
【建筑效果图】

一层大堂

地下车库

茶水间(部分楼层)
【重点房源推荐】

【标准层平面图】


【绿色近零能耗建筑】




【楼内配套空间】


报告厅


食堂


海景健身会所

室外篮球及网球场
免责声明
📢 重要提示:以下内容为必要法律声明,请仔细阅读
1️⃣ 图片来源说明
本文所展示的图片(包括但不限于项目实景图、效果图、户型示意图等)均来源于微信搜索、百度搜索引擎等公开渠道。我方并非相关图片的原创作者,亦不对图片内容(如版权归属、画面真实性等)享有任何权利。图片仅作信息展示辅助之用,若涉及您的合法权益,请及时联系我们处理。
2️⃣ 转载内容版权声明
文中转载的所有文章、图片,其知识产权均归原权利人所有。因技术能力及信息核查限制,我方虽已尽力核实来源,但可能仍存在无法直接确认原始版权方或授权链路的情况。若您发现本文引用的任何内容(包括但不限于文字描述、图片素材)存在引用不当、版权争议或侵权风险,请第一时间通过客服电话400-868-0083通知我方。我方将在核实后立即采取删除侵权内容、发布澄清声明等合理措施,最大程度避免对双方造成损失。
3️⃣ 图文关联性说明
文章中的文字描述与配图之间无必然逻辑对应关系,所有图片及文字内容均仅供读者直观参考,不作为项目实际交付标准或功能承诺的依据。
5️⃣ 内容性质声明
本文所载的全部信息均为阶段性资料,可能因项目开发进度、政策调整、市场变化等因素发生变动。本文内容及观点仅代表当前已知信息的客观陈述,不构成任何市场交易依据、投资建议或购房承诺!购房者决策前,请务必通过项目电话400-868-0083与开发商直接核实最新信息,并以《商品房买卖合同》及政府备案文件为准。