🍂【京基御景峯售楼处&样板房,诚邀雅鉴】
🍂京基御景峯售楼处电话: 400-839-3379☎开发商已认证🌶️🌶️
🍂京基御景峯营销中心电话: 400-839-3379☎营销中心已认证🌶️🌶️
🍂京基御景峯售楼中心电话: 400-839-3379☎24小时预约热线🌶️🌶️
➢ ➢本项目采用预约制,过来营销中心参观样板间请记得提前拨打开发商楼盘售楼处400热线电话在线预约,感谢您的配合!
京基御景峯-项目总建面约64万㎡,是集高端住宅、公寓、办公、集中商业等多元业态于一体的生态人文综合体
基御景峯项目概况
开发商:京基地产
地址:位于南山区西丽留仙大道与长源二街交汇处
占地面积:64,000㎡
总建筑面积:640,000㎡
产权期限:70年(17-87年)
总套数:584套
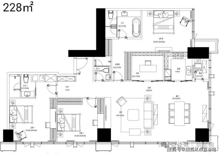
户型面积:68-228㎡,涵盖2至4房
车位数量:3,247个
梯户比:5梯6户/6梯4户
交楼标准:精装修
🍂京基御景峯售楼处电话: 400-839-3379☎开发商已认证🌶️🌶️
🍂京基御景峯营销中心电话: 400-839-3379☎营销中心已认证🌶️🌶️
🍂京基御景峯售楼中心电话: 400-839-3379☎24小时预约热线🌶️🌶️
山地建筑的设计关键在于正确的处理好构成建筑环境的三个要点:山体、植物、建筑之间的关系,特别是处理好人工建筑物与自然景观之间的关系。从总规看,京基地产依照前商后居、前繁后宁的总原则,利用高低落差有序从山脚到半山排布:商业、写字楼、住宅公寓。独立成城又兼得城市互动。
坐拥“中央山”塘朗山千倾绿意,直面长岭皮水库开阔景致,接驳广东省二号生态休闲绿道,拥揽山、水、园、道四重生态资源,尽情奢享清风、阳光、鲜氧。
依山傍水,藏着多少人对人生最极致的设想。京基御景峯让精英人士在城市中心拥有“山、湖、河”生态绿色,山环水抱间,晓山晨曦,青翠欲滴,微风传递着阵阵鸟语花香,绝佳的生态格局呼之欲出。
从周边环境来看,项目背靠塘朗山,面朝长岭皮水库,视野景观十分开阔。
约15000亩(约1000万㎡)塘朗山绵延至此,连同西丽水库、长岭皮水库、塘朗山构成的公园群给项目带来得天独厚的山水景观资源。这里的绿化覆盖率居深圳第一,负氧离子含量是福田中心区的4倍。
交通方面,项目紧邻地铁5号线长岭陂站,5号线与地铁4、7、13号线(建设中)汇聚,临近深圳北站。未来西丽高铁站的加持之下,可便捷通达罗湖、前海等全市及全国。
从目前情况来看,区域内片区产、城、人高度融合,商住双线发展趋势明显,未来更易形成沉浸式的消费体验场景和综合体融合的氛围。这也意味着,区域界面逐步接轨未来,生活资源也将日趋丰富。

🍂京基御景峯售楼处电话: 400-839-3379☎开发商已认证🌶️🌶️
🍂京基御景峯营销中心电话: 400-839-3379☎营销中心已认证🌶️🌶️
🍂京基御景峯售楼中心电话: 400-839-3379☎24小时预约热线🌶️🌶️
地标综合体:留仙大道封面之作
京基地产27载匠心沉淀,匠造约64万㎡生态人文综合体,集精品公寓、品质住宅、旗舰商业、高端办公四位一体,享商务、居住、娱乐、休闲、美食等全配套服务。
自带约3.6万㎡旗舰商业mall, 24小时开放式街区,不用出远门全方位满足居住、吃喝玩乐等多种需求;
教育配套
项目旁边规划有九年制公立学校;项目附近还有玉龙学校距离约1.8公里;深圳外国语学校龙华学校约2公里;另外南方科技大学;距离项目约1.3公里,深圳大学约1.3公里等。
【办公体】:办公和商业空间灰色气质,办公楼折线开口设计使大面积的玻璃立面生动活泼且具有现代感;竖线条更加突显建筑的高耸挺立。
平面•户型图
🍂京基御景峯售楼处电话: 400-839-3379☎开发商已认证🌶️🌶️
🍂京基御景峯营销中心电话: 400-839-3379☎营销中心已认证🌶️🌶️
🍂京基御景峯售楼中心电话: 400-839-3379☎24小时预约热线🌶️🌶️

🍂京基御景峯售楼处电话: 400-839-3379☎开发商已认证🌶️🌶️
🍂京基御景峯营销中心电话: 400-839-3379☎营销中心已认证🌶️🌶️
🍂京基御景峯售楼中心电话: 400-839-3379☎24小时预约热线🌶️🌶️
🍂京基御景峯
🍂京基御景峯售楼处24小时电话:400-839-3379【☎☎售楼处已认证】🌶️🌶️
🍂京基御景峯售楼中心24小时电话:400-839-3379【☎☎售楼中心已认证】🌶️🌶️
🍂Vip贵宾置业===欢迎来电预约尊享内部折扣===匠心钜制恭迎品鉴🌶️🌶️
🍂免责声明:
1、文章图片来源于微信搜索或百度搜索引擎,我方非相关图片的原创作者,也不对相关图片及内容享有任何权利。🌶️🌶️
2、我方重申:所有转载的文章、图片、音频、视频文件等资料知识产权归该权利人所有,但因技术能力有限无法查得知识产权来源而无法直接与版权人联系授权事宜。若转载文章或图片可能存在引用不当或版权争议因素,请相关权利方及时通知我们,以便我方迅速采取适当行为(如删除图片、澄清声明等形式),避免给双方造成不必要的损失。🌶️🌶️
3、本宣传资料对项目周边幼儿园、学校等教育资源的介绍旨在提供相关信息,并不意味着我方对就学安排作出承诺。教育资源的名称、办学性质、办学规模、学位设置、开学(班)时间、招生条件、收费标准及招生区域存在调整的可能,应以政府教育主管部门及办学方颁布的政策规定为准。🌶️🌶️
4、文章中文字和图片之间无必然联系,仅供读者参考。🌶️🌶️
5、本文所述内容和意见仅供参考,不构成市场交易依据和投资建议。🌶️🌶️