深圳宝安【中化·凤鸣水岸花园】推出住宅约372套,面积75-120㎡3-4房,总价510万起!户型使用率高达81%,过来现场实地看房需提前预约!
凤鸣水岸花园开发商售楼处电话:400-992-0669(中介勿扰)
来电可了解楼盘最新动态、房价、在售房源、交楼时间等信息!让你买的放心,住的舒心!
项目基础数据
◎项目名称:凤鸣水岸花园
◎开发商:深圳市金桂商务信息有限公司
◎物业公司:佳兆业
◎项目地址:深圳·前海·尖岗山
导航地址:尖岗山大道与卧龙四路交汇处
◎占地面积:约2.1万㎡
◎建筑面积:约6.7万㎡
◎推售房源:372套住宅
◎推售产品:75-120㎡3-4房
◎开发商售楼处电话 4009920669
◎价格:510万起
◎车位比:1:1 共750个,其中充电桩车位225个
◎容积率:3.2
◎梯户比:1.2栋2梯6户,3.4栋2梯7户(人才房)
◎总层高:1,2 栋 32 层,3,4 栋 30 层
◎产权年限:70 年(2021 年-2091 年)
凤鸣水岸,位于尖岗山的豪宅片区,这里建筑密度小,有很好的自然风光!
实景航拍



1、豪宅居所,世界定位
五区叠加之地,前海、宝安双区核心,凤鸣水岸位于宝安、南山、福田、北站商务区、机场&空港商务集群“五中心”交叉片区的核心位置,享受五区发展利好。项目约7KM即达前海中芯,精英汇聚,潜力无限。
【世界第八大半山豪宅区,塔尖身份标签】作为“世界十大顶级豪宅区”之一(数据来源:美国顶级奢侈品权威杂志《ROBBREPORT》,尖岗山依托不可复制的山水资源,荟集中国曼哈顿——前海企业领袖,成为名副其实的世界富豪聚集地,已然成为塔尖圈层的身份象征。
2、交通配套
毗邻地铁 5 号线【兴东站】,4 站直达宝安中心,6 站直达深圳北站,7 站直达前海湾,可便捷换乘 1/11/13 号线,近享 9 号线(西延线二期规划中),可快速通达深圳各中心。
主干道京港澳高速、107 国道、南光高速,直线距离约 10KM 内可达宝安国际机场、蛇口港码头、深圳湾口岸,便捷全球
3、商业配套
商业:曦城 VIVITOWN 山地风情商业街、中洲πMall、海雅缤纷城、壹方城、万象天地
文娱:宝安滨海文化公园、宝安体育场、青少年宫、演艺中心
4、教育配套
深圳“大学区”政策出台,片区生源多为引进人才及高净值人群后代,更加优质、纯粹,营造更好教育环境的同时,也为孩子组建一个高端、优质的社交圈层。
项目楼下就是公交南方科技大学附属宝安学校,去到学校的距离可以准确的用步来测量,
家门口的学校和幼儿园未来无需为接送小孩上下学所烦恼
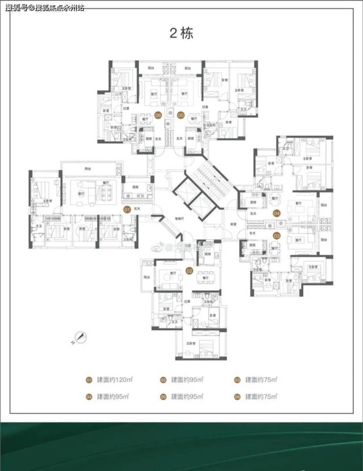
5、项目户型鉴赏
户型分布图
(1、2栋是商品房,3、4栋为人才房)





如果看完以上关于我们宝安凤鸣水岸项目的介绍后,您还对如下问题想要深入了解的话:
问题如:最新推出的房源备案价格,小区在售的有多少栋楼,各个楼栋户型具体是什么朝向,每一层楼规划的是几梯几户,这一期卖的房小区里面有多少户,容积率多少,楼栋总共多少层,现在卖的户型具体交楼时间,这几种户型剩下的还有那些,小区门口离地铁近吗,该社区是怎么划分学校的,可以申请哪些小学和初中,交房后物业费怎么收?物业管理费每平米每月多少元,交房是精装修还是毛坯,停车位够吗?停车位有多少个?,小区周边未来有什么规划,楼盘展厅、营销中心在哪里?具体什么时候开盘?开盘多少钱一平米,周边配套,楼盘详情,值得买吗,潜力升值如何,升值空间大不大,营销中心地址怎么导航,坐地铁到哪个站下车过来楼盘比较近,周边近期有什么规划,周边商业配套怎么样,拿地批地时间,这几天楼盘现场最新优惠活动情况等。
建议您可以拨打我们楼盘内场400免费咨询电话与售楼处现场销售直接了解。
➢ ➢深圳宝安【 凤鸣水岸花园】开发商售楼处电话:400-992-0669 中介勿扰
➢ ➢深圳宝安【 凤鸣水岸花园】—「开发商售楼处」—「欢迎您!」
➢ ➢来电可了解楼盘最新动态、房价、在售房源、交楼时间等信息!
温馨提示:项目没有所谓的“分机号”注意保护个人隐私!谨防上当!看房请务必提前预约,避免临时无人接待,感谢您的配合!
【免责声明】
· 本文中所提到的深圳尖岗山凤鸣水岸花园项目名称均为本项目的推广名,具体备案名可能存在不同。
· 本宣传资料仅作为要约邀请,相关图文内容不排除因政府相关规划、规定及开发商未能控制的原因而发生变化,本公司保留对宣传资料修改的权利,敬请留意最新资料。
·本资料对项目或户型产品的介绍,旨在提供相关信息,不意味着本公司对此作出了承诺,买卖双方的权利义务以双方签订的《商品房买卖合同》及附件等协议为准。
· 本文部分图片来源于国际互联网,版权归原作者所有,如涉及版权等问题,请立即联系我们,我们会给予更改或相关处理。对使用本网站信息和服务所引起的后果,本网站不作任何承诺。