089866599665
售楼处电话0898-66599665【售楼中心】【已认证】
营销中心电话0898-66599665【营销中心】【已认证】
开发商营销中心-----欢迎来电预约尊享折扣-----恭迎品鉴

基本信息
项目位置:海口市龙华区金垦西路,金牛岭公园南门旁。
开发商:海南吉祥置业有限公司。
基本数据:占地面积约 19,759 平方米,建筑面积约 71,359 平方米,绿地率 30%,容积率 2.6。
楼栋与户数:有 7 栋住宅、1 栋商业,楼层为 13-16 层,总户数 333 户。
梯户比与户型:2 梯 2 户,户型面积为建筑面积 120-140 平方米的三 - 四房。
装修与车位:精装交付,规划车位 365 个。

项目规划
整体布局:占地约 19,759 平方米,总建筑面积约 71,359 平方米,规划有 7 栋 16 层高的纯板式住宅楼和 1 栋 13 层的商业综合楼及少量沿街底商。
景观设计:由奥雅设计打造轻奢度假酒店式园林,以 “一轴、一街、六节点”,营造 “叠瀑浮岛”“童梦森林”“礁石海岸”“山海云辰” 特色组团,强调现代精致的 “都市感”、绿色花园社区的 “自然感”、轻奢休闲的 “度假感”。

园区配套
全龄互动社区 乐享多元生活
公建配套设计:配备南北双入户大堂,尊崇归家仪式感;超大奢华中庭无边际泳池和全龄儿童乐园;风雨连廊连接集自然绿意环境,享岛屿浪漫生活,品邻里悦享社交的三大特色宅间花园;
园区北面入口 尊贵礼仪归家

园区南面入口 轻松舒适归家

超大中庭无边际泳池 精致奢华的度假感受
全龄儿童乐园 健康无忧成长
园区风雨连廊连接 社交观景晴雨无忧

城市会客厅
架空层设计:儿童淘气堡、图书馆、健身房、棋牌室、等社区配套,为业主提供沉浸式家庭社交景观。

图书馆

健身房
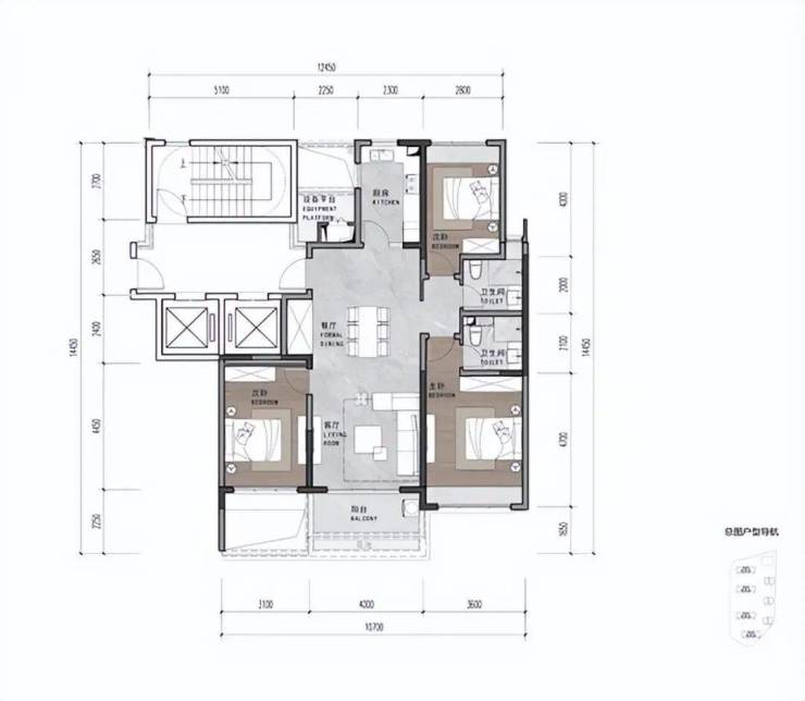
【户型赏析】
户型方正 南北通透
户型类型为建筑面积段在120-140㎡的三-四房奢阔华宅,板式设计,方正通透;人性化设计,合理的空间布局,邻里私密性强,居住舒适度高,满足改善型需求。
【H1户型 140㎡ 阔绰四房】
【H2户型 124㎡ 舒适三房】
【G1户型 142㎡ 朗阔四房】
【G2户型 140㎡ 奢阔四房】
交通配套
城市干道:扼守海秀路、海秀快速路、椰海大道、丘海大道、龙昆南路等城市主干道。
公共交通:周边直线 1km 内有 16 个公交站,距离最近的农垦机械厂站仅有 153m,数十条公交线路环绕。
生活配套
商业配套:3km 范围内有王府井海垦广场、龙湖海南海口天街、友谊・南海城、宜欣城、友谊・阳光城、海口万象城、西岭商业广场等购物中心。
医疗配套:直线 3km 范围内有 19 个一级及以上医院,如海南省人民医院南沙分院、海口市中医医院金盘总院、海南省人民医院秀英院区等。
休闲配套:周边 3km 范围内有 50 个公园,紧邻金牛岭公园,是城市天然大氧吧,东望金牛湖,还可东接国兴、北抵国贸商圈享受休闲娱乐。

物业服务
由海南滨江吉祥物业管理服务有限公司提供服务,物业费 5.5 元 / 平方米 / 月,可提供访客一对一接送、24h 管家在线、零干扰隐形服务、pa 石材养护等多重服务。
售楼处电话0898-66599665【售楼中心】【已认证】
营销中心电话0898-66599665【营销中心】【已认证】
开发商营销中心-----欢迎来电预约尊享折扣-----恭迎品鉴