富通九曜公馆(售楼处)2025首页网站-富通九曜公馆-富通九曜公馆欢迎您-楼盘详情 @售楼处发布:恭迎品鉴

搜狐焦点贺州站

2025-06-19 15:07:08

购房群

买房如何避坑,加入购房群,看看他们怎么说

立即进群

富通九曜公馆售楼处Vip Tel:400-045-8086售楼处电话·售楼部·热线【已认证☎☎】⭐⭐⭐

富通九曜公馆售楼处售楼中心电话:400-045-8086【VIP贵宾专线】⭐⭐⭐

富通九曜公馆售楼处售楼中心电话:400-045-8086【VIP贵宾专线】⭐⭐⭐

中介勿扰温馨提示:看房请提前来电预约享受折扣,谢谢配合楼盘项目全面介绍:含开盘消息、交房时间、楼盘详情、房价、户型、详情、得房率、售楼处地址、首页网站、销售中心、楼盘地址、户型图、交通、备案价、项目配套、营销中心、开发商、周边配套等详情咨询

开发商营销中心诚挚邀请,为您安全和隐私保驾护航,一键预约,尊享内部折扣!匠心独运的精品项目,您更贴心的看房体验!

项目基本信息

项目名称:富通九曜公馆

开发商:富通新光房地产开发有限公司

项目地址:福田区新沙路18号

占地面积:约1.7万㎡

总建筑面积:11.8万㎡

建筑类型:住宅、公寓,幼儿园 商业裙楼

物业公司:世邦魏理仕

物业费:住宅8.3/平/月公寓:9.9元

楼栋数:4栋

总户数:1387户

产品面积段:住宅:96-116-121㎡-360㎡ 公寓:245-337㎡ 3-4房665㎡顶复

梯户比:1栋2单元4梯6户,46-56层2梯2户,3单元公寓2梯3户

容积率:7.05

绿化率:30%

使用率:75%

车位比:1360 1:1

楼层:上舍21层,2单元41层-3单元59层

层高:3.15m 公寓:3.6米 住宅大户型3.4米

交楼时间:现楼

交付标准:毛坯

产权年限:70年(2018-88年)

房屋用途:住宅 公寓

单价:245平公寓:6.8-9万 337平9-10万住宅:360平12万-13万

学位:明德实验五洲校区,贝赛思双语学校

区域价值

【福田CBDx香蜜湖双中心价值高地,】

项目占位深圳最高水平金融总部聚集区、国家级南方金融中心的香蜜湖金融中心南区。⾹梅路南延线&福华⼀路延⻓线贯通双⾦融中⼼,项⽬位于⾹蜜湖⾦融街1公⾥半径⽣活圈内。

【坐拥世界级商圈,八大城市配套举步即达,CBD资源尽在方寸间】

项目地处福田CBD核心,集萃行政、会展、金融、文化、酒店、购物、公园、交通等八大功能;

周边商圈有中心城广场、皇庭广场、星河cocopark、购物公园、卓越INTOWN、卓越中心等。

交通配套

【效率都会生活圈,深港速通】

深港无界出行:临近福田高铁站、畅达福田口岸、(广深港高铁+广深港磁悬浮)速通香港;

畅通深港滨河大道、新洲路城市主干道、贯纵地铁1/3/7号线畅通全城。

教育配套

【300米享受美国排名前三国际学校——贝赛思】

在美国各大特许公立学校的排行榜中,贝赛思学校都是遥遥领先。2019、2020均为U.S. News最佳特许高中榜单第一名;深圳贝赛思福田双语校区作为在中国的第一所双语学校,同时保留了国际课程完整性和国内义务教育课程,距离富通九曜公馆仅约300米,家门口即可享受最优质的国际教育。

产品配套

【对标全球的高尔夫中央公园景观】

近十年内第一个同时占有福田CBD地段与无遮挡高尔夫景观的顶级豪宅项目。北侧直面深圳高尔夫俱乐部,南眺红树湾公园与深圳湾海景,东望福田CBD,四重稀缺景观集萃。

【品质立面,200米地标城市综合体】

外立面为玻璃+铝材幕墙体系,豪宅才配备的旭格进口系统门窗,完美实现隔热、隔音、降噪。

【深圳首个网红地标配套“全悬空空中连廊+空中透明无边泳池”】

100M高空打造全悬挑空中连廊,空中透明无边际泳池,整个连廊敞开面对公园方向,将高尔夫公园景观和城市景观尽收眼底;百米高空私享星级主题泛会所,属于精英人物的奢想圈层盛宴。

【奢适园林,东方美学大师程绍正韬操刀】

将自然艺术与东方文化植入景观空间,既注重礼序人文,更不失自然趣味,以现代手法对传统美学进行再设计,打造步移景异之趣。

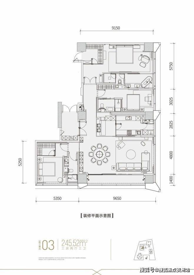
户型鉴赏

【建面约337平4房全套房+1工人房3厅6卫】

【建面约247平3房全套房2厅3卫】

【建面约246平3房全套房2厅3卫】

【建面约360平4房全套房2厅5卫】

富通九曜公馆售楼处电话☎:400-045-8086✔✔欢迎来电咨询!(预约看房热线)

可预约销售人员,专业一对一热情服务,让您用专业眼光去买房。

中介勿扰温馨提示:过来营销中心参观样板间请记得提前拨打售楼处400热线预约,感谢您的配合!

✅免责声明:部分信息来源于网络,如果侵权,请联系及时删除

全部

相关资讯

报名成功
稍后会有专业的置业顾问联系您
返回楼盘

频道导航

返回首页

看房小程序

APP下载

电话拨通后,请您手动拨打分机号

确定拨打电话

电话号码:

分机号:(可能需要拨分机号)