✨✨(武汉城建江南岸)✨✨
✨✨武汉城建江南岸售楼处电话:400-681-7288接通后输入1111转接销售
✨✨武汉城建江南岸开发商电话:400-681-7288接通后输入1111转接销售
✨✨武汉城建江南岸营销中心电话:400-681-7288接通后输入1111转接销售
✅请务必致电与销售确认时间,仅预约客户可进入销售现场,避免空跑,感谢您的支持✅
➤➤➤➤VIP贵宾置业〢欢迎来电咨询〢品鉴!
01楼盘详情
武汉城建江南岸在武昌区二环内,属于武昌滨江商务区范围,是一线临江的项目,所有楼栋均设计为正面看江。
项目共规划了4栋30-31层的高层住宅、2栋44层的超高层住宅和部分社区底商。总用地面积2.58万方,总建筑面积约8.97万方,容积率2.49,户数402户,车位配比1∶1.07。
平面图显示,该项目地块与临江大道、长江走向平行,6栋住宅均为东南-西北朝向,且偏转角度较大,主要看江的方向为西北向。楼栋大体可看作一字排开,错位布局,每栋楼都有无遮挡看江的视野角度,1、3、4、6号楼为完全的第一排看江,2、5号楼稍微离江远一些,正面可无遮挡看江,但侧前方有楼栋遮挡,可算作1.5排观江。
项目是全风雨连廊归家,整体设计约4000㎡的风雨连廊和架空层空间,从社区主入口至单元门厅。该项目包含大量不计容建面,公区配套空间很丰富,包含绿化架空、风雨连廊、地下配套服务设施等。

在产品设计上,每户沿江面均配置全景落地Low-E玻璃幕墙,约7.4-9米的瞰江横厅、“双全景舱”等创新设计,实现270°无界江域视野。

武汉城建江南岸项目所在地块原本属于商业地块,也是一个商改住项目,该地块由武汉地产集团有限公司拍得,成交价78140万元,成交楼面价约11236.8元/平。

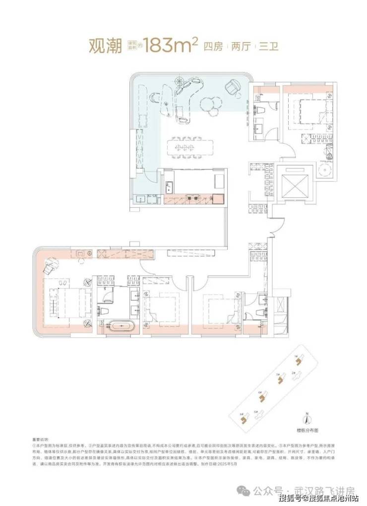
02户型介绍
项目只有建面约143㎡和183㎡两个户型,是纯改善楼盘中的豪宅定位。
建面约143㎡是经典3+1居室户型,户型面宽可达市面少见的约16.3米,创新设计可变弹性空间,约9米宽的大横厅设计,实现更多生活场景可能。
建面约184㎡户型,采用创新“双全景舱”概念设计,实现约45㎡超大IMAX环幕厅,一线江景尽收眼底,搭配约2.5米高落地玻璃,模糊室内外界限; 主卧采用270度U型玻璃幕设计,实现观江视野最大化。可改三套间的设计满足高端客群的私密生活享受,入口处设计创新X空间,实现高端品质生活场景演绎。
03区位交通
武汉城建江南岸位于武昌区铁机路与临江大道交汇处江南实业片A地块,在二环内,与二环直线距离不到1公里,靠近1.5环铁机路隧道,与武汉大道直线距离约2公里,属于武昌滨江杨园板块一线临江用地,紧邻武昌江滩,与长江直线距离仅约200米。
项目紧邻临江大道,不远处就是和平大道,自驾能比较方便的上二七长江大桥和二桥,加上在建的二七路-铁机路过江通道,未来自驾出行会更方便;项目南向直线距离约600米就是地铁5号线余家头站,未来新港线西延线(10号线一期)也在这里,未来公共交通出行也比较便捷。

✨✨(武汉城建江南岸)✨✨
✨✨武汉城建江南岸售楼处电话:400-681-7288接通后输入1111转接销售
✨✨武汉城建江南岸开发商电话:400-681-7288接通后输入1111转接销售
✨✨武汉城建江南岸营销中心电话:400-681-7288接通后输入1111转接销售
✅请务必致电与销售确认时间,仅预约客户可进入销售现场,避免空跑,感谢您的支持✅
➤➤➤➤VIP贵宾置业〢欢迎来电咨询〢品鉴!