可乐公馆(售楼处)主页详情|售楼处首页网站|线上售楼处接待中心-楼盘图文解析

安庆楼市发布

2025-06-28 09:25:05

购房群

买房如何避坑,加入购房群,看看他们怎么说

立即进群

✪✪可乐公馆售楼处电话:400-186-1314转5555【售楼中心】

✪✪售楼处24小时电话-地址-位置-价格-开发商-户型图等楼盘详情介绍

✪✪给您有效答复—4 0 0 - 1 8 6 - 1 3 1 4 转 5555—节省您的宝贵时间

^^售楼处1v1销售顾问给您解答!请预约参观!给您最新价格优惠^^

大 虹 桥 区 域

长宁区 西郊板块

虹桥机场旁 2号线地铁淞虹路站

面积约:33㎡~142㎡

均价5.1万/㎡ 4.5米挑高

总价约:270万~738万

不限购 不限贷 精装LOFT公寓

正虹桥 中环旁 醇熟地段

宜商 宜住 宜投资

基础信息物业类型商办产权年限40年(二手交易流程)得房率70%总层数5层(有电梯)建面约33-142㎡总价约270-738W首付比例70%-80%电费白天0.82元/晚上0.39元水费7.3元/吨物业费10元/㎡·月交付标准带装修交房时间款清交房车位只租不售,地上600元/月,地下800元/月挑高4.5米竣工时间2003年拿地

2014年竣工

开发商上海悦茂房地产开发有限公司物业公司上海观裕物业管理有限公司

项目位于上海别墅区,上海城市豪宅板块,宋子文公馆,白崇禧旧居,孔家花园,等历史建筑延绵至今;后有檀宫,复地御西郊等知名楼盘,成为各大名流的后花园,在长三角一体化国家战略规划下,吸引了超过3000余家国内外企业入驻,知名企业包括壳牌石油、携程、爱奇艺、阿里巴巴、京东、唯品会等。

项目往北2.5公里到达临空商务区,自1993年成立以来,历经25年的发展,形成了航空经济、互联网经济、总部经济,等优质产业,吸引了爱奇艺,携程,联邦等知名企业,成为长宁的一张新名片

项目可分隔两层,我们对于部分房源精心打造好您的办公空间;除此之外,我们还拥有最高达9米的入户大堂,公共走道别致的装饰精致、典雅;

位于项目中央位置我们还为各位业主准备了一个绿意盎然的中庭花园,在闲暇时间可以让您有一个聊天、休息的安静空间。

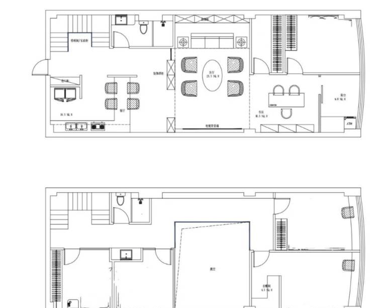
户型图及样板间照

建面约80平 总价约439-442万左右现房(3、4楼,朝北)

建面约106平此套已售,仅供参考,116平与之类似总价627-632万左右(3、4楼 东2,西北2)

建面约136平(5楼北)-142平(3、4楼北)此为效果图,总价约715-738万

✪✪可乐公馆售楼处电话:400-186-1314转5555【售楼中心】

✪✪售楼处24小时电话-地址-位置-价格-开发商-户型图等楼盘详情介绍

✪✪给您有效答复—4 0 0 - 1 8 6 - 1 3 1 4 转 5555—节省您的宝贵时间

^^售楼处1v1销售顾问给您解答!请预约参观!给您最新价格优惠^^

免责声明:本文来源于网络!如无意中侵犯了某方的知识产权,告之即删。

全部

相关资讯

报名成功
稍后会有专业的置业顾问联系您
返回楼盘

频道导航

返回首页

看房小程序

APP下载

电话拨通后,请您手动拨打分机号

确定拨打电话

电话号码:

分机号:(可能需要拨分机号)