💠特发学府朗园售楼处电话:400-172-0755【售楼处已认证】
💠特发学府朗园开发商电话:400-172-0755【售楼处已认证】
✅ 为您安排楼盘现场销售全程接待并讲解,给您更贴心的看房体验!
💠特发学府朗园营销中心电话:400-172-0755【售楼处已认证】
💠特发学府朗园展示中心电话:400-172-0755【售楼处已认证】
☞☞Vip贵宾置业==欢迎来电预约尊享内部折扣===匠心钜制恭迎品鉴☜☜
✅ 过来参观样板房烦请记得提前来电预约!
特发学府朗园,位于光明区公明街道李松萌炮台路与志康路交汇处,处于李松蓢利益统筹项目地块中,项目将结合“产城融合、以人为本、低碳生态”的规划理念,重点关注产业升级发展、居住品质的提升、生产生活配套服务优化等方面,预计总投资额约100亿元,成为茅洲河畔百万平方米产城融合的超大型宜居宜业社区。

💠特发学府朗园售楼处电话:400-172-0755【售楼处已认证】
💠特发学府朗园开发商电话:400-172-0755【售楼处已认证】
✅ 为您安排楼盘现场销售全程接待并讲解,给您更贴心的看房体验!
💠特发学府朗园营销中心电话:400-172-0755【售楼处已认证】
💠特发学府朗园展示中心电话:400-172-0755【售楼处已认证】
☞☞Vip贵宾置业==欢迎来电预约尊享内部折扣===匠心钜制恭迎品鉴☜☜
特发学府朗园,由特发集团开发,总占地面积约2.1万㎡,总建筑面积约15.2万㎡,计容建筑面积约11.4万㎡,容积率5.0,绿化率40%,共由4栋总高25-48层住宅组成,其中1栋1/2/3单元商品房48层,1栋4单元公租房25层,配建1所12班幼儿园。
总规划924户,其中商品房792套,3梯6户设计,公租房132套,停车位1085个,车位占比1:1.17。
【特发·学府朗园】
湾区水岸 百万超新城
建面约88-143㎡揽河臻品3-5房
💠特发学府朗园售楼处电话:400-172-0755【售楼处已认证】
💠特发学府朗园开发商电话:400-172-0755【售楼处已认证】
✅ 为您安排楼盘现场销售全程接待并讲解,给您更贴心的看房体验!
💠特发学府朗园营销中心电话:400-172-0755【售楼处已认证】
💠特发学府朗园展示中心电话:400-172-0755【售楼处已认证】
☞☞Vip贵宾置业==欢迎来电预约尊享内部折扣===匠心钜制恭迎品鉴☜☜
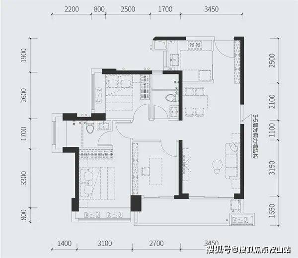
2、项目平面图
3、项目户型及价格介绍
💠特发学府朗园售楼处电话:400-172-0755【售楼处已认证】
💠特发学府朗园开发商电话:400-172-0755【售楼处已认证】
✅ 为您安排楼盘现场销售全程接待并讲解,给您更贴心的看房体验!
💠特发学府朗园营销中心电话:400-172-0755【售楼处已认证】
💠特发学府朗园展示中心电话:400-172-0755【售楼处已认证】
☞☞Vip贵宾置业==欢迎来电预约尊享内部折扣===匠心钜制恭迎品鉴☜☜
88㎡的3房2厅2卫,设计的竖厅格局,客厅3.3米开间,3个卧室分别是3.5米/2.6米/2.5米的宽度,主卧L型飘窗,L型厨房,得房率:77.73%(不含赠送),有西北或东北朝向。
💠特发学府朗园售楼处电话:400-172-0755【售楼处已认证】
💠特发学府朗园开发商电话:400-172-0755【售楼处已认证】
✅ 为您安排楼盘现场销售全程接待并讲解,给您更贴心的看房体验!
💠特发学府朗园营销中心电话:400-172-0755【售楼处已认证】
💠特发学府朗园展示中心电话:400-172-0755【售楼处已认证】
☞☞Vip贵宾置业==欢迎来电预约尊享内部折扣===匠心钜制恭迎品鉴☜☜
97㎡的3房2厅2卫,设计的竖厅格局,客厅3.45米开间,三开间朝南,3个卧室做到了3.1米/2.7米/2.5米的宽度,客厅连接卧室带6.15米长大阳台,U型厨房,得房率:77.73%(不含赠送),有东南向或西南朝向。
💠特发学府朗园售楼处电话:400-172-0755【售楼处已认证】
💠特发学府朗园开发商电话:400-172-0755【售楼处已认证】
✅ 为您安排楼盘现场销售全程接待并讲解,给您更贴心的看房体验!
💠特发学府朗园营销中心电话:400-172-0755【售楼处已认证】
💠特发学府朗园展示中心电话:400-172-0755【售楼处已认证】
☞☞Vip贵宾置业==欢迎来电预约尊享内部折扣===匠心钜制恭迎品鉴☜☜
114㎡的4房2厅2卫,设计的竖厅格局,客厅3.7米开间,四开间朝南,4个卧室分别是3.1米/2.7米/2.6米/2.45米的宽度,客厅连接卧室带6.3米长大阳台,U型厨房,房,得房率:77.74%(不含赠送),有西南或东南朝向。
143㎡的5房2厅2卫,设计的竖厅格局,客厅4.2米开间,四开间朝南,5个房间分别是3.35米/2.8米/2.7米/2.5米/2.4米的宽度,客厅连接卧室带6.9米长大阳台,U型厨房,得房率:77.74%(不含赠送),有东南或西南朝向。
💠特发学府朗园售楼处电话:400-172-0755【售楼处已认证】
💠特发学府朗园开发商电话:400-172-0755【售楼处已认证】
✅ 为您安排楼盘现场销售全程接待并讲解,给您更贴心的看房体验!
💠特发学府朗园营销中心电话:400-172-0755【售楼处已认证】
💠特发学府朗园展示中心电话:400-172-0755【售楼处已认证】
☞☞Vip贵宾置业==欢迎来电预约尊享内部折扣===匠心钜制恭迎品鉴☜☜
4、项目周边配套
学校配套:小区自带1所12班制的幼儿园,根据2023年光明教育局学区划分,小学学区划分在李松萌学校,宝滨小学,东宝纪念小学,公明第二小学,李松萌第二学校;初中学区划分在李松萌学校,公明中学,李松萌第二学校。
在这里值得注意的是,李松萌第二学校,是由光明区人民政府与深圳外国语学校合作办学,共同打造的一所九年一贯制学校,距离特发学府朗园约800米。
总办学规模为54班,其中小学部36个班,可以提供1620个学位,初中部18个班,可以提供900个学位。
💠特发学府朗园售楼处电话:400-172-0755【售楼处已认证】
💠特发学府朗园开发商电话:400-172-0755【售楼处已认证】
✅ 为您安排楼盘现场销售全程接待并讲解,给您更贴心的看房体验!
💠特发学府朗园营销中心电话:400-172-0755【售楼处已认证】
💠特发学府朗园展示中心电话:400-172-0755【售楼处已认证】
☞☞Vip贵宾置业==欢迎来电预约尊享内部折扣===匠心钜制恭迎品鉴☜☜
地铁配套:项目距13号线二期(北延)公明北站距离约150米,4站达公明广场,可换乘6号线通达宝安/光明/龙华/罗湖/福田
①13号线及其南、北延长线(建设中,预计2025年开通)起于东角头站,终于公明北站,纵贯光明、宝安、南山,线路开通后约30分钟可抵达南山核心区,约45分钟可达深圳湾口岸,以高新技术人才为主要客流,被称为高新技术人才专线
②26号线(规划中)起于机场东站,终于公明北站,是连接光明、深圳西部中心及航城等外围组团中心的轨道线路,可快速通达粤港澳大湾区城市群及全球国际都市群,被称为国际机场专线。

💠特发学府朗园售楼处电话:400-172-0755【售楼处已认证】
💠特发学府朗园开发商电话:400-172-0755【售楼处已认证】
✅ 为您安排楼盘现场销售全程接待并讲解,给您更贴心的看房体验!
💠特发学府朗园营销中心电话:400-172-0755【售楼处已认证】
💠特发学府朗园展示中心电话:400-172-0755【售楼处已认证】
☞☞Vip贵宾置业==欢迎来电预约尊享内部折扣===匠心钜制恭迎品鉴☜☜
商业配套:特发学府朗园,周边短距离内的商业配套比较薄弱,在3公里范围内有天虹商场,百佳华商场,嘉誉荟,还有公明最大的大仟里购物中心,可以坐地铁去3站就能到达。
💠特发学府朗园售楼处电话:400-172-0755【售楼处已认证】

💠特发学府朗园开发商电话:400-172-0755【售楼处已认证】
✅ 为您安排楼盘现场销售全程接待并讲解,给您更贴心的看房体验!
💠特发学府朗园营销中心电话:400-172-0755【售楼处已认证】
💠特发学府朗园展示中心电话:400-172-0755【售楼处已认证】
☞☞Vip贵宾置业==欢迎来电预约尊享内部折扣===匠心钜制恭迎品鉴☜☜
✅ 过来参观样板房烦请记得提前来电预约!
免责声明:本文如无意中侵犯了某方的知识产权告知即删,部分内容图片可能来源于网络,无法核实其真实出处,如涉及侵权请联系本网站删除!!
近期,房地产市场成为各界关注焦点,一系列政策调整与市场变化正深刻影响着行业走向。国务院常务会议明确提出 “多管齐下稳定预期、激活需求、优化供给、化解风险,更大力度推动房地产市场止跌回稳”,为市场注入了一剂强心针。
从市场数据来看,当前形势仍不容乐观。国家统计局数据显示,2025 年 5 月份,70 个大中城市中,各线城市商品住宅销售价格环比下降,同比也均继续走低。新房价格环比上涨的城市仅有 13 个,较上月减少 9 个;二手住宅价格环比上涨的城市更是仅剩下 3 个。房价的下行压力,反映出市场信心尚未完全恢复,供求关系亟待进一步改善。与此同时,1-5 月份全国房地产开发投资同比下降 10.7%,显示出行业投资端的收缩态势。
为扭转这一局面,各地政策正在加速落地。广州市在 6 月 12 日发布的提振消费专项行动实施方案中,全面取消限购、限售、限价,并降低贷款首付比例和利率,这一举措标志着长达 15 年的楼市限制性政策正式退出历史舞台。广州的行动并非孤例,西安也于近期允许公积金直接支付新房首付款,降低购房者资金门槛,释放潜在需求。信贷政策方面,尽管目前 LPR 维持稳定,但市场预期后续仍有下降空间,这将进一步减轻购房者的利息负担。
在土地市场,也出现了新的变化。6 月 19 日,上海 2025 年第五批次土拍首日,5 宗地块共收金 191.57 亿元,4 宗溢价成交,显示出上海市场的较高热度,也激发了房企的拿地积极性。而成都主城区出让的两宗宅地,同样引发激烈竞拍,楼面价不断攀升,反映出房企对核心城市市场的信心。
面对市场挑战,房地产企业也在积极调整策略。建发房产通过协议收购,豪掷 123.5 亿元拿下上海核心区 4 幅地块,积累旧改项目经验,为未来发展谋篇布局。融创中国则通过与金融机构合作,完成债务重组,对北京融创壹号院项目进行品质提升,满足市场对高品质住宅的需求。
总体而言,房地产市场正处于关键的调整期,政策的持续发力为市场止跌回稳提供了有力支撑。随着各地政策效果的逐步显现,市场信心有望得到修复,需求将进一步释放。但市场的完全回暖仍需时间,企业也需不断提升产品力与服务力,以适应市场的新变化。未来,房地产市场将在政策引导与市场调节的双重作用下,逐步迈向健康、可持续的发展轨道。