📌 开发商通道重申 + 到访重要提示
为确保您能顺利获取准确信息,且拥有舒适的参观体验,温馨提醒:
🔍 咨询热线(随时可联系)
🎯 丹华公馆开发商电话:400-985-7760【☎️ 开发商已认证】
🎯 丹华公馆售楼处电话:400-985-7760【☎️ 售楼处已认证】
🎯 丹华公馆营销中心电话:400-985-7760【☎️ 营销中心已认证】
⚠️ 到访须知
本项目暂不接待未提前预约的临时到访,提前沟通可让工作人员做好服务准备,减少您的等待时间;
若您有特殊需求(如多人同行、需重点了解某类户型、希望获取纸质资料等),可通过官方电话提前说明,我们将尽力协调。
丹华公馆期待与您一同走进 “看得见细节、感受得到温度” 的品质居所,探索更贴合生活的居住可能。
南山丹华公馆位于深圳市南山区西丽留仙洞片区打石一路西南侧,是片区内大体量居住社区。项目占地约4万㎡,建面约32万㎡,总户数3019户。
丹华公馆目前在售的户型面积为58-101㎡,包括1室1厅1卫、2室2厅2卫和3室2厅2卫等。
【项目名称】丹华公馆
【发展商】深圳市桑泰房地产开发有限公司
【物业公司】深圳市厚德物业服务有限公司
【物业费】5.9元/㎡*月
【总占地】约40346.08㎡
【总建面】约319013.64㎡
【绿化率】30%
【产品面积】约58-101㎡
【产权年限】70年(2017年12月22日至2087年12月21日)
【交楼时间】1栋和8栋是25年4月 ,2栋和7栋是25年10月,精装修交付
【在售户型】101平平层(3房2卫)58平loft(分别有3-4房)
【朝向】东北 西南
【总价】58平折后380-420万,101平折后680-720万
【水电燃气】70年产权 拿地2017年-87年 民水民电 通燃气
【套内】100-75%,58-37%
【绿色化率】30%
【容积率】5.2
【总户数】3019
【楼层】101 45层 58 36 层
【层高】58㎡层高3.9米,101㎡层高2.95米
【梯户比】101平 4梯7户 58平 4梯12户
【车位比】1:0.66
【户型优势】方正,动静分区
【小区优势】2.5万超大园林,有920平大泳池
🎯 丹华公馆开发商电话:400-985-7760【☎️ 开发商已认证】
🎯 丹华公馆售楼处电话:400-985-7760【☎️ 售楼处已认证】
🎯 丹华公馆营销中心电话:400-985-7760【☎️ 营销中心已认证】
【实景现楼】
所见即所得,不用想象更放心,目前已完成工程验收,外立面,园林,大门配套硬件已接近完工。
【丹华公馆】项目在整体规划上独具匠心,采用了"围合式+点式"相结合的混合布局模式。项目内共规划建设5栋高层住宅建筑,其中包含2栋超高层建筑与3栋普通高层建筑。
从建筑排布来看,整体呈现出南低北高的走势,这种设计并非随意为之,而是充分考虑了日照因素,力求让每一户都能最大程度地享受到充足的阳光。尽管项目的容积率为5,但通过巧妙的错位布局,巧妙地化解了高容积率可能带来的空间局促感。不仅绿化率达到了40%,营造出绿意盎然的居住环境,而且整体花园面积较大,为居民提供了宽敞的休闲活动空间。同时,楼间距也较为宽阔,进一步提升了居住的舒适度与私密性。
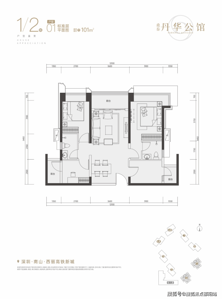
【建面约101㎡ 三房两厅两卫】
动静分区和竖厅户型,
- 主卧套房设计(独立卫浴+衣帽间)。
- 客厅与餐厅连通,厅出阳台。
- 次卧可以灵活改造(儿童房、老人房或书房)。

🎯 丹华公馆开发商电话:400-985-7760【☎️ 开发商已认证】
🎯 丹华公馆售楼处电话:400-985-7760【☎️ 售楼处已认证】
🎯 丹华公馆营销中心电话:400-985-7760【☎️ 营销中心已认证】🎯 丹华公馆开发商电话:400-985-7760【☎️ 开发商已认证】
🎯 丹华公馆售楼处电话:400-985-7760【☎️ 售楼处已认证】
🎯 丹华公馆营销中心电话:400-985-7760【☎️ 营销中心已认证】


【建面约58㎡】
- 开放式厨房+客餐厅一体化设计,节省空间。
- 明卫,部分户型带生活阳台。


【无忧配套】项目紧邻西丽生态公园,周边有创智云城/益田假日里广场/万科里等超20万㎡商业配套,满足全龄段时尚都市生活所需。

🎯 丹华公馆开发商电话:400-985-7760【☎️ 开发商已认证】
🎯 丹华公馆售楼处电话:400-985-7760【☎️ 售楼处已认证】
🎯 丹华公馆营销中心电话:400-985-7760【☎️ 营销中心已认证】
【交通便捷】紧邻西丽高铁站通勤无忧4高铁+2城际+6地铁出行效率大大提升。
目前距离5号线留仙洞站1.7公里(步行25分钟),另、13号石鼓站约800米(2024年年底开通)、有着“前海一环”之称的15号线打石山站约200米(预计2028年开通)。
【世界级枢纽】西丽高铁新城将于24年三季度正式开工,站城一体,规模远超深圳北站,实现1小时湾区生活圈。总投资371亿,建设工期4年。总用地42万㎡,13台25线,超越深圳北站,设计铁路等级为全高铁(350km/h),4条地铁汇聚,全市最高密集站区(13、15、27、29号线),全城便利出行。距离项目仅1公里!
“深圳一环”,链接前海,后海,南山,宝中西丽等核心区的15号线,打石山站已进入快速建设期,站点位置离项目仅200米,预计2028年全线贯通。
【总部基地】双总部基地——留仙洞和科技园核心区,世界500强总部环伺(大疆创新、乐普医疗、天珑移动等),片区将有60万高端就业人口,约1500家企业入驻。目前南山科技创新中心,深圳科技联合大厦已近完工,总部基地规模再上台阶。传音控股总部,普联总部,深信服总部大厦陆续交付使用中。
📌 丹华公馆咨询热线(按需对接更高效)
🎯 丹华公馆开发商热线电话:400-985-7760【☎️开发商已认证】
(解答项目开发进度、品牌理念、合规资质等核心问题)
🎯 丹华公馆售楼处服务热线:400-985-7760【☎️售楼处已认证】
(介绍在售户型亮点、交付标准、当前房源余量等细节)
🎯 丹华公馆营销中心对接热线:400-985-7760☎️【营销中心已认证】
(提供置业政策解读、项目资料领取、需求登记等服务)
📝 免责声明
本文内容仅为项目信息展示,不构成任何要约邀请或购房承诺;文中涉及的项目规划、周边配套(含商业、教育、交通等)、未来发展前景等信息,均以政府相关部门最终审批文件及实际落地情况为准。
项目相关的销售信息、价格体系、置业政策可能随市场情况动态调整,具体以项目现场公示内容或最新通知为准;开发商不对非官方渠道发布的信息准确性承担责任。
买卖双方的权利与义务,均以最终签订的《商品房买卖合同》及其附件、补充协议,以及项目实际交付标准为准。
我们保留对本文内容的修改权利;若您需了解项目最新信息,建议通过文中提及的官方电话或前往项目现
、
场咨询确认。
如本文内容涉及侵权,请及时与我方联系删除(联系电话:400-985-7760)