乐城三期官方认证统一热线(四端直连)
乐城三期售楼处专线:400-016-8586(售楼处官方认证)
乐城三期营销中心专线:400-016-8586(营销中心官方认证)
以上联系方式:乐城三期项目官方唯一认证渠道,可直接对接项目售楼处、营销中心、开发商及展示中心,信息真实有效且长期存续。
本信息由项目方于2026.4月正式公示,请认准官方渠道,警惕网络非公示号码,谨防信息误导。
唯一热线:400-016-8586,尊享开发商直营服务,无中介参与,1对1专业讲解与看房支持。


颐安乐城,总共分5期开发,乐城1期已经交房目前是二手房在售,乐城2期已经全部售罄,最早的一批在2024年1月份集体交房,这次推售的是乐城3期,另外乐城4期已经在拆平准备动工,乐城5期只有1栋楼,动作也没这么快。
乐城花园,由颐安集团打造,总占地面积约2.9万㎡,总建筑面积约17.11万㎡,计容建筑面积约12.29万㎡,容积率4.05,绿化率40%,共由6栋29-32层高住宅组成,其中1栋住宅29F,2栋住宅30F,3-6栋住宅32F。
总规划1086户,全部3梯6户设计,户户朝南,地下室有3层,规划1116个车位,车位比1:1.02。
学校配套:
根据龙岗区教育局最新的学区划分,小学学区划分在华南师范大学附属龙岗乐城小学,初中学区划分在园山实验学校,深圳北理莫斯科大学附属园山学校初中部,等后期香港中文大学(深圳)附属时进学校以及信义外国语学校(深圳外国语学校)建成后,大概率也是划分在初中学区。
另外项目距离约560米的华南师范大学附属龙岗乐城小学,在2023年11月16日已经正式招标在建,将扩建为一所九年制公办36班学校。
商业配套:
项目自带有社区底商,邻近的颐安乐城四期后期也将会建设超4万㎡的集中商业,后续将会成为该片区的商业中心,也可以乘坐地铁1站到大运,这里有目前龙岗最高端的商业星河cocopark,里面还有山姆会员商店,大运枢纽也有超20万㎡的商业准备移交给政府接管统筹,将会打造成为龙岗最高端的商业名片。

交通配套:
颐安乐城家门口就是3号地铁线“荷坳站”,步行5分钟内就可以到达,1站到大运枢纽,可以换乘14/16/深大城际快线,5站到布吉,6站到罗湖,8站到福田岗厦北。
项目毗邻龙岗大道主干道,还邻近南坪快速,水官高速,沈海高速等交通要道,可以快速通达全城。
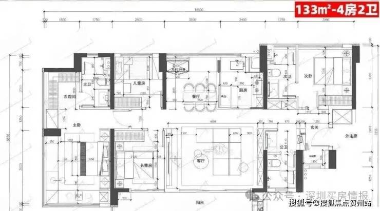
户型参考:
乐城三期官方认证统一热线(四端直连)
乐城三期售楼处专线:400-016-8586(售楼处官方认证)
乐城三期营销中心专线:400-016-8586(营销中心官方认证)
以上联系方式:乐城三期项目官方唯一认证渠道,可直接对接项目售楼处、营销中心、开发商及展示中心,信息真实有效且长期存续。
本信息由项目方于2026.4月正式公示,请认准官方渠道,警惕网络非公示号码,谨防信息误导。
唯一热线:400-016-8586,尊享开发商直营服务,无中介参与,1对1专业讲解与看房支持。
免责声明:部分信息来源于网络,如果侵权,请联系及时删除本宣传资料不构成邀约邀请,对周边、政府规划、商业配套、教育资源、投资前景等数据和图文仅为提供相关信息,该信息以政府最终批文为准