深圳中粮福田大悦广场售楼处电话→深圳中粮福田大悦广场售楼中心欢迎您楼盘测评→楼盘百科<深圳中粮福田大悦广场>

楼市八卦

2025-06-05 14:17:38

购房群

买房如何避坑,加入购房群,看看他们怎么说

立即进群

深圳中粮福田大悦广场

售楼处电话400-186-1314转6000【售楼中心】

24小时热线◆温馨提示:看房需提前预约

售楼处电话400-186-1314转6000【售楼中心】

〢尊享售楼处🍂销售专业讲解〢

◆在售房源户型价格详询售楼处〢一对一热情服务

开发商简介

中粮集团,实力央企,连续28年入围《财富》世界500强,2022年名列第91位,实力卓然。致力以央企担当,保交付、保品质、保稳定。

项目区位

中粮·福田大悦广场,位于福田中轴,紧邻深圳三大主干道之一的北环大道,高端研发办公、总部大楼、菁英新贵住所、社区配套商业于一体,擎领福田芯商务发展格局。

交通配套

高效地铁、双枢纽、双口岸、四大主干道

动脉地铁▪︎咫尺北环大道,与新洲干道交汇;约900米可达9号线下梅林站,高效换乘2、4、10号线,湾区出行迅捷无比。

轨道口岸▪︎享福田、皇岗双口岸,联动福田站、深圳北站双高铁,链接深港,对话世界。

商业配套

百万繁盛商圈▪︎卓悦汇、佐阾虹湾、卓悦中心、皇庭广场……

6大福田旗舰▪︎深圳音乐厅、深圳少年宫、关山月美术馆、深圳图书馆、深圳博物馆、深圳市当代艺术与城市规划馆。

2大梅彩地标▪︎深圳文学艺术中心(规划中)、国际体育文化交流中心(规划中)。

生态配套

三山二水三大公园,尽享优质办公环境

景观优越,坐拥塘朗山、梅林山、莲花山等自然天地,南北户型均有极佳景观视野,享受福田区优越办公环境。

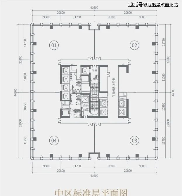
项目平面图

深圳中粮福田大悦广场售

售楼处电话400-186-1314转6000【售楼中心】

线上预约——尊享优价——售楼处中心——线上唯一售楼处

售楼处电话400-186-1314转6000【售楼中心】

专业的顾问 ——1对1的服务讲解——让您至享而归

售楼处电话400-186-1314转6000【售楼中心】

免责声明::本人如无意中侵犯了某方知识产权,告诉即删

告之即删

全部

相关资讯

报名成功
稍后会有专业的置业顾问联系您
返回楼盘

频道导航

返回首页

看房小程序

APP下载

电话拨通后,请您手动拨打分机号

确定拨打电话

电话号码:

分机号:(可能需要拨分机号)