深圳岗宏融湖盛景
售楼处电话:400-186-1314转1111
深圳岗宏融湖盛景售楼处电话:400-186-1314接通后输入1111楼盘详情介绍,位置、小区环境、房价、周边商业配套、户型等楼盘详情!

融湖盛景花园项目位于龙岗区平湖街道辅岐路与辅城坳阳光路交叉口东北侧,东侧为信德学校,项目已开展厅,预计将在四季度入市。宗地号G04215-0159,建设用地面积约5万平方米,用地性质为二类居住用地,总建筑面积约27万平,计容建筑面积约20.5万平方米。
项目位于龙岗区平吉大道与平龙路交汇处,融湖中心城分五期开发,一期的融湖世纪花园和二期的融湖时代花园前几年已入市,本次入市的是项目三期,房源位于3栋ABC座,推售112套房源,备案名为融湖盛世花园,四期还处于地基建设阶段,五期有待于开发。

其中住宅184787平方米,商业11707平方米,物业服务用房400平方米,幼儿园2700平方米(用地面积3000平方米,班数9个)。项目共规划5栋建筑,其中1-4栋为住宅+底商,5栋为幼儿园,绿化率40%,停车位总计1600个,合计1801套房源,套内建筑面积小于90平的1430套,占比79.40%。

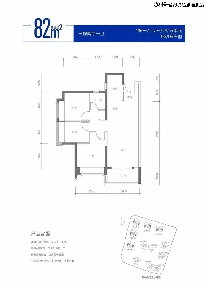
户型分布:本期共有三个户型,82㎡3房、94㎡3房2卫、111㎡4房2卫。延续融湖中心城一贯的风格,户型主要以刚改户型为主,本期还有82㎡上车户型。82㎡ 户型客厅开间达3.45米,动静分区明显,小次卧略显紧凑;94㎡户型格局与82㎡相似,相比之下多了1个主卫,公共空间和厨房都差不多;111㎡户型横厅设计,户型南北通透,公共空间显得阔绰,不过功能分区不明显。



▲ 深惠城际规划图
深大城际连接宝安机场与惠州大亚湾的的城际轨道之间,在平湖白泥坑设有一站。据规划,从白坭坑至宝安机场T4枢纽只有6站,仅需20多分钟。而东至坪山仅2站,10多分钟即可抵达。

▲ 深大城际规划图
平湖有物流通路,有一条铁路是“湾区号”中欧班列,已于2020年8月18日从深圳平湖南国家物流枢纽站首次启航,为粤港澳大湾区国际物流再开新通路。除“湾区号”中欧班列外,“湾区号”中老国际班列(深圳-老挝)已于去年底开通。
目前,选择“湾区号”中欧班列的企业累计已超过2600家,其中深圳本地企业约占三成,包括了华为、比亚迪、稳健医疗等知名企业。据深圳海关统计,2022年一季度,深圳“湾区号”国际班列累计开行30列,其中“湾区号”中欧班列开行26列,货重13443吨、货值7.3亿元,分别同比增长13.7%、31.5%,搭载货物以家电、防疫物资、日用品为主,主要发往中东欧国家。未来平湖将有超10条轨道连接全城和大湾区。
从合正新悦出发,导航驾车约25分钟到达罗湖区政府、约40分钟到达福田区政府、约50分钟到达南山区政府(数据来源:百度地图)。

开发商: 项目开发商为深圳市鼎宏投资发展有限公司,实为深圳岗宏集团的全资控股。岗宏集团成立于1996年,主营地产开发、股权投资、医疗健康、物业管理等4大核心业务,目前开发过的楼盘有,住宅类: 龙城国际、宏兴苑、壹克拉;城市更新类:融湖中心城、泽润华庭、园岭项目;写字楼类:大运写字楼、园岭写字楼;集中商业类:融湖广场集中商业、园岭集中商业;产业园区:岗宏仓储物流园、岗宏李朗工业园。

2025深圳岗宏融湖盛景 售楼处电话:400-186-1314转1111最新房价/详情
◆◆售楼处电话:400-186-1314 接通后输入1111◆◆
◆◆来电预约登记——〢尊享Vip一对一专业置业顾问讲解◆◆
◆◆基本信息介绍,地址,户型,价格,位置,医疗教育,商业交通配套!◆◆
◆◆免责声明:本文图片皆来源于网络如无意中侵犯了某方的知识产权,告之即删◆◆