三亚太平金融产业港
售楼处电话400-186-1314转6000【售楼中心】
24小时热线◆温馨提示:看房需提前预约
售楼处电话400-186-1314转6000【售楼中心】
〢尊享售楼处销售专业讲解〢
◆在售房源户型价格详询售楼处〢一对一热情服务
东岸单元总部经济区,
目前已有超10家世界500强落子于此。

IMC云+总高度约170米,
是碧桂园海南区域开发建设的
第一个超高地标建筑,
是涵盖奢享酒店、精英俱乐部、
阔景平层、城景SOHO、
精品沿街商业等多元业态的垂直综合体。
项目毗邻三亚海旅免税城、千古情景区以及大悦城购物中心,约3公里到环岛东线高速,约5公里到三亚湾,约6公里到达动车站,多维立体交通,商业资源环伺。地段决定价值,独特彰显优势。
项目区位图

项目区位鸟瞰图

选择IMC云+的
六大财富价值
1、三亚CBD新地标
位于汇集碧桂园、中粮、中交、中航、保利等超10家世界500强企业的迎宾路,东岸单元黄金地段,环伺宇内、配套醇熟、CBD壹号资产。北京东三环、上海陆家嘴、深圳前海,下一个“中国的华尔街”将是三亚迎宾路。
2、世界500强首位房企匠心巨筑
由《财富》世界500强房企碧桂园集团匠心筑就。同时已与抖音、今日头条等知名品牌达成初步合作意愿,联手打造互联网文娱企业总部。
3、无需社保,可贷款
地标优质资产,小户型投资产品,低总价、可购多套、灵活变现,为初创企业提供优质平台;大户型阔景平层,可做企业办公总部,尽显尊贵地位。
4、顶层精英会所 垂直城市客厅
约170米垂直综合体,树立城市商办新地标。顶层拟打造奢享酒店和精英俱乐部,并配有享城市天际景观的空中泳池,同时约6米/秒的高速电梯,约30秒可达顶层,尽享都市繁华。
5、32项专属业主服务 定制铂金礼遇
碧桂园物业是2020年中国物业服务百强企业第一名,2020年中国上市物业服务企业综合实力第一名,打造无忧专属pt管家,提供32项高端增值服务。
6、紧邻10万方国际免税城
中国自贸港,免税天堂,项目与三亚市内规模最大的免税店——海旅免税店不足约500米距离。地段影响价值,独特彰显优势。
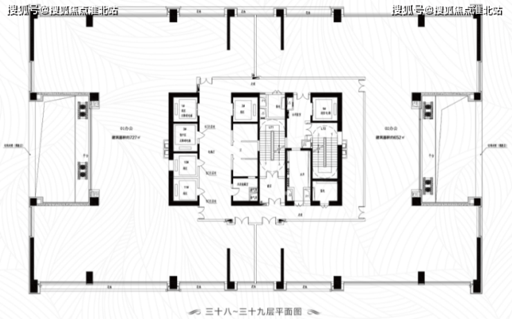
产品规划
正在推售的1#楼IMC云+定位为国际商务中心,建面约6.5万㎡,共46层517户,为40年商务金融用地,总高约170米垂直综合体。集底层商业、企业办公、SOHO创投、酒店会所于一体,树立城市商办新地标。

注:12、24、35层为避难层
①45-46F为云顶系列:总建面超2000㎡奢享酒店和精英俱乐部。
拟规划空中泳池等配套,打造三亚顶层人士的聚集地。

示意图

②35-44F为云端系列:建面约350-1500㎡/户的企业总部办公空间。
适合企业区域总部使用,客户可依企业需求自行打造为办公处所或接待中心。



③6-34F为云舍系列:建面约69-120㎡/户的城景SOHO。
小户型既适合创业期的企业作为办公SOHO使用,也适合作为小资产投资办公产品使用,可依企业需求作为直播工作室、艺术工作室等使用。
太平金融产业港
三亚太平金融产业港售楼处电话400-186-1314转6000【售楼中心】
线上预约——尊享优价——售楼处中心——线上唯一售楼处
售楼处电话400-186-1314转6000【售楼中心】
专业的顾问 ——1对1的服务讲解——让您至享而归
售楼处电话400-186-1314转6000【售楼中心】
1. 房地产定义:房地产是一个综合且复杂的概念,从实物现象看,它是由建筑物与土地共同构成。土地可以分为未开发的土地和已开发的土地,建筑物则依附于土地而存在,与土地结合在一起。建筑物是指人工建筑而成的产物,包括房屋和构筑物两大类。房地产既是一种客观存在的物质形态,同时也是一项权利。作为一种客观存在的物质形态,房地产是指房产和地产的总称,包括土地和土地上永久建筑物及其所衍生的权利。
2. 房产与地产:房产是指建筑在土地上的各种房屋,包括住宅商铺、厂房、仓库以及办公用房等。地产则是指土地及其上下一定的空间,包括地下的各种基础设施、地面道路等。
3. 房地产特点:由于其位置的固定性和不可移动性,房地产又被称为不动产。
4. 房地产拍卖:其拍卖标的也可以有三种存在形态,即土地(或土地使用权)、建筑物和房地合一状态下的物质实体及其权益。
二、产权类型
1. 商品房:是指房屋由开发商建设出售的,买受人取得房屋产权证后,可以自由对该房屋进行买卖、出租。
2. 成本价住房:成本价房屋是房改售房的一种规定,职工以成本价购买房屋后职工拥有房屋的全部产权,职工再次上市出售,必须征得售房单位的同意。
3. 标准价住房:标准价房屋是房改售房的一种规定,出售公有住房时,职工占有一部分产权,单位占有一部分产权,一般是职工占有94%的产权,单位占有6%的产权,职工以标准价购买的住房拥有部分产权,被称之为标准价房屋。
4. 经济适用房:为照顾中低收入居民购房而实施优惠措施,建造经济适用房所用的土地是以划拨方式无偿给开发商使用的,这就是经济适用房价格低的主要原因。
5. 房改房:房改房是指城镇职工根据规定,按照成本价或标准价购买的已建公有住房。
三、房屋面积计算
1. 建筑面积:指建筑物外墙外围所围成空间的水平面积,包含了房屋居住可用的实用面积、墙体柱体占地面积、楼梯走道面积、其他公摊面积等。
2. 套内建筑面积:指成套商品房(单元房)的套内使用面积、套内墙体面积和阳台建筑面积之和。套内建筑面积=套内使用面积+套内墙体面积+阳台建筑面积。
3. 使用面积:是建筑面积扣除公摊面积及墙体柱体所占用的面积后的直接供住户生活的净使用面积,俗称地砖面积。
4. 公摊面积:指建筑物的楼梯、电梯井、外墙、公共门厅、走道、设备间、首层大堂及小区内其他一些配套设施的面积总和。
5. 占地面积:建筑物基底及其功能需要占用的面积,也叫红线面积。
6. 预售面积:指在商品房预售时按建筑设计图上尺寸计算的房屋面积。
7. 销售面积:套内建筑面积+公摊的公用建筑面积;商品房按“套”或“单元”出售。
8. 竣工面积:房屋竣工后实测的房屋面积。
9. 共有建筑面积分摊系数:整栋建筑物的共有建筑面积与整栋建筑物的各套内建筑面积之和的比值。
10. 预测面积:购房者在购买期房时,无法获知准确的房屋面积,开发商会根据设计图计算出房屋的预测面积,供购房者参考。
11. 实测面积:房屋建成后,房产测绘单位会对房屋进行实际测量,得出的房屋面积即为实测面积,也是购房者实际使用的面积。
12. 合同约定面积:购房者在签订合同时,开发商会在合同中注明预测面积,并按照这个面积计算房屋价格。合同中一般也会说明预测面积和实测面积存在误差的处理办法。
13. 产权登记面积:购房者在买房后办理产权证时,产权证上会有一个面积说明,即产权登记面积,一般按照实测面积来登记。
四、购房流程与注意事项
1. 流程:
o 准备阶段:购房者需明确购房需求和预算,选择合适的房源和开发商。
o 看房选房:实地查看房源,了解房屋位置、户型、面积、装修等情况,同时对比不同房源的性价比。
o 签订合同:与开发商签订购房合同,明确房屋价格、付款方式、交房时间、违约责任等条款。
o 办理贷款:如需贷款购房,需向银行或公积金中心申请贷款,并提交相关材料和证明。
o 验收房屋:在交房前进行房屋验收,确保房屋质量符合合同约定。
o 办理产权证:缴纳维修基金和契税后,办理房屋产权证和土地使用证
2. 注意事项:
o 产权审查:要求卖方提供合法的产权证书正本,并查询产权证的真实性,以及拟购房产产权来源和产权记录。如房主、登记日期、成交价格、卖方产权的完整性、有没有被抵押、是否共享等。
o 房源审查:搞清楚所购房源是否属于允许出售的房屋。一般公房必须要原单位盖章后才能出让。
o 房屋质量:检查房屋质量,包括墙面、地面、天花板等是否有渗水、裂缝等问题。
o 物业与配套:了解小区的物业管理水平、配套设施是否完善,以及周边的生活环境。
o 合同细节:在签订合同时,务必仔细阅读合同条款,确保自身权益不受损害。
五、房屋贷款与税费
1. 房屋贷款:
o 条件:贷款人需具有完全民事行为能力、常住户口、固定住所、正当职业和稳定收入来源,并具备按期偿还贷款本息的能力;抵押房产需产权明晰、符合
免责声明::本人如无意中侵犯了某方知识产权,告诉即删
告之即删