今天要给大家详细介绍一个武昌滨江的热门新项目 ——武汉城建・江南岸。这个项目被不少人称为武昌滨江「中产江景天花板」,到底有何过人之处?咱们今天就来一探究竟~ 🏙️
售楼处电话:400-8787-098转分机号5678【售楼处位置】
售楼处电话:400-8787-098转分机号5678【营销中心】
楼盘详情4008787098-转分机号5678(房价,价格,地址,户型图,交通,周边配套,备案价,楼盘详情,售楼处电话,售楼处地址,最新房源,最新价格,最新动态,最新进展等详情)
🌟一、项目核心亮点:为何备受关注?
1.溢价的地块:2024年12月24日,武汉市举办国有建设用地使用权公开出让活动。 国企 武汉地产集团有限责任公司(武汉城建集团) 以 总价 78140万元竞得P(2024)118号地块(也就是目前的武汉城建江南岸项目),溢价率8.32%,成交 楼面价 12171.34元/㎡。
P(2024)118号地块,位于武汉市武昌区铁机路与临江大道交汇处 ,住宅、公园与绿地用地。 土地面积 25776㎡, 建筑面积64200㎡, 起始价 72140万元 。
2. 黄金区位:武昌滨江稀缺地段
📍 地理位置优越:落子武昌滨江商务区杨园片,与二七滨江商务区隔江相望,直面长江,属于二环内 1.5 环稀缺地段,地理位置十分优越。
🚇 交通出行便捷:坐拥 “一隧两桥三地铁” 超级路网,距离地铁 5 号线余家头站步行约 1100 米,(地铁还是略远)未来还可换乘 10 号线;自驾依托临江大道和过江隧道,出行方便。
🌊 临江零距离:与江岸仅 200 米之隔,推窗即可欣赏 270° 无界江域,一线无遮挡瞰江,这样的江景资源在武昌滨江十分稀缺。

3. 极致视野与产品设计:准四代住宅革新
⚡️ 布局巧妙:采用 V 形折线布局 + 错位排布,6 栋住宅(4 栋高层 + 2 栋超高层)全部无遮挡直面长江,打破传统对视限制,实现户户看江。
🌅 全景舱户型:全系标配 Low-E 全景落地幕墙,7.4-9 米瞰江横厅,视野开阔;184㎡主卧三面环幕设计,将长江美景尽收眼底;圆弧转角玻璃消除结构柱,让视野更加通透。
💯 超高得房率:作为准四代住宅,灵动阳台 + 飘窗全赠送,得房率超高,143 平得房率达 103%,183 平更是达到 113%,实现 “零公摊” 甚至 “负公摊”,性价比凸显。
4. 城建高端线突围:品质有保障
🔝 单方建安成本 6195 元/㎡,超过华润等不少项目,封窗交付 + 铝板玻璃幕,打破了 “城建无豪宅” 的偏见。
🏊 配备双层会所恒温泳池、全风雨连廊归家、智慧物业系统等奢配体系,直面华润长江中心等竞品。
🏠二、户型分析:满足不同改善需求
1. 143㎡四房三卫
✅ 布局特点:四开间朝江,6 米横厅 + 3.9 米主卧,飘窗全赠;南面厨房带生活阳台,可做洗烘晾晒,也能保证南面采光。
✅ 优势:得房率 103%,空间利用率高,四房设计满足多人口家庭需求。
⚠️ 争议点:单暗卫,次卧与电梯井共墙,可能存在噪音问题,需依赖工程质控。
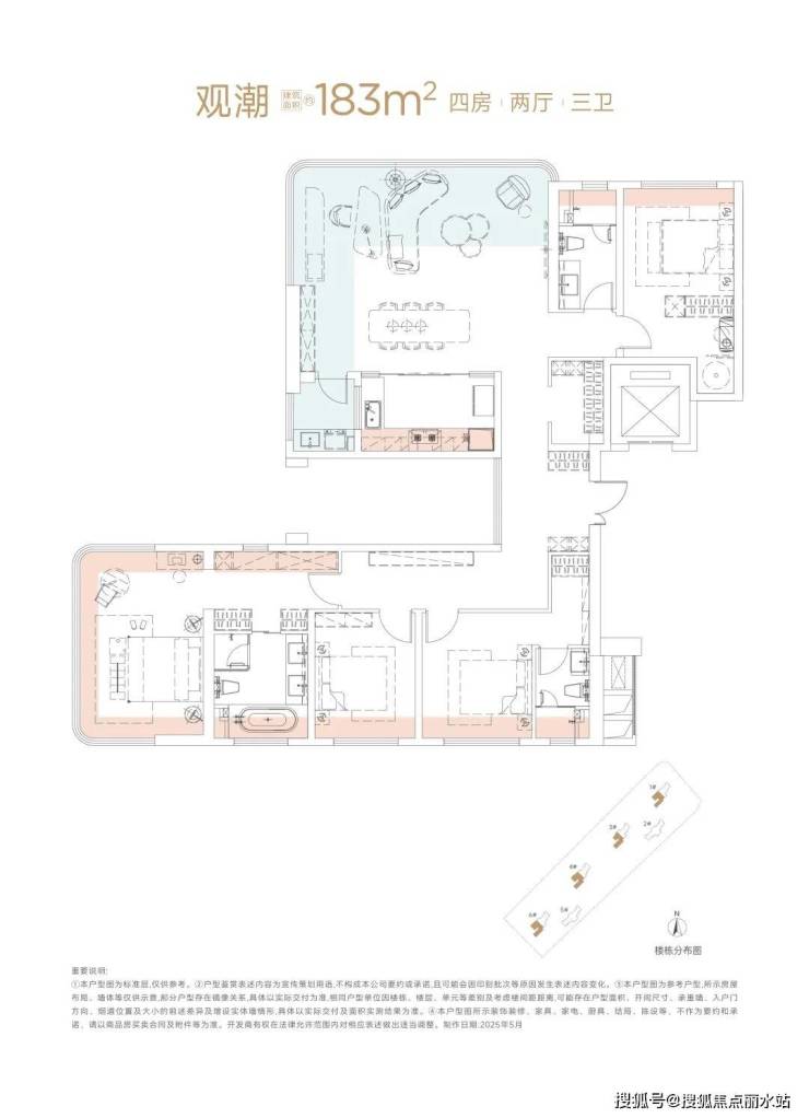
2. 183㎡四房三卫
✅ 布局特点:餐客厅一体,看江面无承重柱;主卧套房环幕落地窗瞰江,7.6 米 IMAX 环幕厅,对标华润长江中心 230㎡格局。
✅ 优势:三面采光主卧(南向日照 + 北向瞰江),开间达 3.9 米;得房率 113%,压缩 50㎡面积却实现 “零公摊”。
⚠️ 争议点:厨房尺度有所压缩,中部墙体封闭(需样板间验证);西晒问题显著,夏季需做好遮光优化。
🌇三、配套设施:生活便利与品质兼具
1. 国际级公建立面与社区配套
✨ 外立面:采用银灰渐变 Low-E 玻璃 + 阳极氧化铝板,呼应江面晨昏光影;超高层折型穿孔板打造 “流动光影”,弧形幕墙模拟江水柔美曲线,颜值在线。
今天要给大家详细介绍一个武昌滨江的热门新项目 ——武汉城建・江南岸。这个项目被不少人称为武昌滨江「中产江景天花板」,到底有何过人之处?咱们今天就来一探究竟~ 🏙️
售楼处电话:400-8787-098转分机号5678【售楼处位置】
售楼处电话:400-8787-098转分机号5678【营销中心】
楼盘详情4008787098-转分机号5678(房价,价格,地址,户型图,交通,周边配套,备案价,楼盘详情,售楼处电话,售楼处地址,最新房源,最新价格,最新动态,最新进展等详情)