沈阳 中海·盛京玖章售楼处电话:400-8787-098转分机号5678【售楼处位置】
沈阳 中海·盛京玖章售楼处电话:400-8787-098转分机号5678【营销中心】
沈阳 中海·盛京玖章楼盘详情4008787098-转分机号5678(房价,价格,地址,户型图,交通,周边配套,备案价,楼盘详情,售楼处电话,售楼处地址,最新房源,最新价格,最新动态,最新进展等详情)
项目位于浑南区浑南快速路以南,新科街东,地铁9号线榆树台站出门即是。
是为榆树台板块正式拍出的首宗地块,也是中海在沈阳今年经历了大量“换仓”之后的亮相新作,意义不凡。
中海·盛京玖章,属于低密洋房园区,总共718户房源,全部精装交付(洋房顶底清水),层高3.1米。
项目大部分户型均有外延露台设计,得房率超100%,是真正意义的第四代住宅产品。
产品规划为:
11F小高2栋,面积为124平;
5-7F洋房25栋,面积段为109、124、132、143、1832、198平;
交付时间:2027年7月末
说句题外话,也难怪房产爱好者们会把中海和华润的新盘做对比,看这面积段规划(润启高层107-140平、洋房143-200平),基本相同的面积段设置,这是真要面对面“亮刺刀”了。
不再废话,先看户型:

1)洋房109平
一梯两户,三室两厅两卫户型,标准的三叶草格局,餐客一体的LDK设计,客厅开间5米,主卧套房,配有独立家政间。
且无论中间户还是边户,均为全明户型,而且是少见的5F洋房,定位为刚需入门产品。
该户型套内面积达到111.01㎡(含赠送面积),得房率102%;
PS:事先声明,谢老板团队户型套内面积是使用户型图供尺计算,为理论上最高值,涵盖了墙体投影面积。非实际地砖面积,后文不再重复说明。
再说说户型缺点,109户型全部排列在地块南侧,临近美园路(规划),随着板块的发展,后续噪音问题是无可避免的(相对的采光会非常好);
其次,109户型南北向共设置了3处空调机位,可见并未精装标准里并没有配置中央空调。

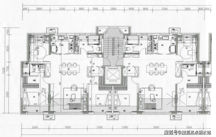
2)小高124平
一梯两户,四室两厅两卫,偏四叶草格局,第四代住宅产品,分奇偶层的错层露台(奇数层在主卧南侧,偶数层在南次卧外延)。客厅开间5.1米,主卧套房,全明户型,配备独立家政间,中央空调。
124平奇数层套内面积为134.24㎡(含赠送面积),得房率108%;
124平偶数层套内面积为133.34㎡(含赠送面积),得房率108%;
说下124户型的两个缺点:
第一,虽然是4间卧室,但北侧中间卧室开间仅有2.8米,没有达到放置正常床的3米开间标准,后续只能通过定制榻榻米或作为书房使用;
第二,入户为“单开门”,刚说完109平洋房也存在同样问题。不同于目前洋房主流的“三七开”,单开门最大的问题在于开门会遮挡电梯,属于小缺陷。
当然这也是中海的一贯设计,目前仍在售的中海·源境、中海·汇德理也是这类洋房设计。

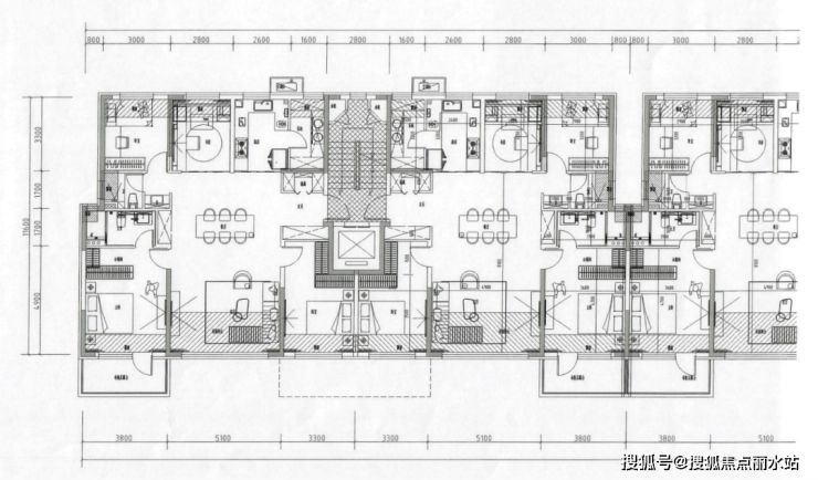
3)洋房132平
一梯一户(电梯AB门),四室两厅两卫,相当于124平的优化升级版,格局大体一致,提升了开间和进深尺寸,拥有5.6米客厅开间,主卧套房,独立家政间、中央空调。
相较于124的2间北卧,132平北卧中间无承重墙,后续可进行拆改合并,结合封装后的北侧露台,届时会有一间超大北卧房。
此外,132平的外置露台的设计略显“花哨”,奇数层3处露台(2南向卧室+1北次卧),偶数层2处(南向客厅+1北书房)。
132平奇数层套内面积为150.14㎡(含赠送面积),得房率114%,配以约7.05㎡的电梯前室,使用率可达119%;
132平偶数层套内面积为146.90㎡(含赠送面积),得房率111%,配以约7.05㎡的电梯前室,使用率可达117%;


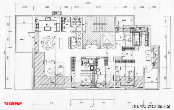
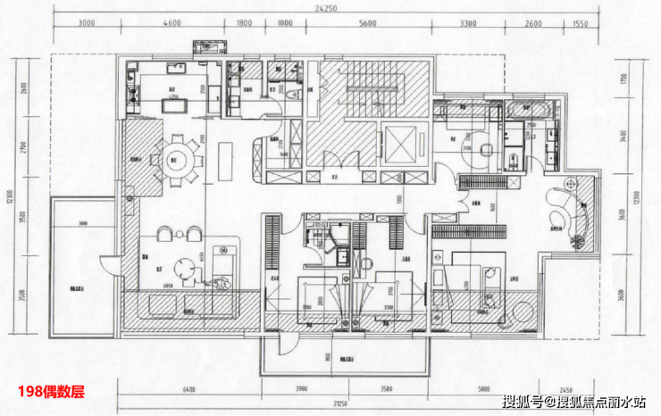
4)洋房198平
今年沈阳中海设计最大胆的产品,也是全沈阳首个一层一户的洋房产品,什么概念?
配上落地窗,室内能实现360度采光,这个房子真正做到了没有邻居,南向开间达到了21.25米。
四室两厅三卫,双侧开窗的边厅设计,198户型排列在园区景观中轴两侧,拥有不错的景观视野,客厅开间6.4米,南向双套房,主卧套尤其“恐怖”——在没有设计南向主卫的基础上,主卧开间就已经达到5米,套内可达44.82㎡。配备“五五开”入户门及主卧门。
奇偶层同样为外延错层露台,奇数层在餐厅侧面、主卧侧面及书房北侧,有3处露台设置;
偶数层在客厅侧面,两间南次卧的南向,有2处露台设置。

198平奇数层套内面积为239.65㎡(含赠送面积),得房率121%,配以约7.82㎡的独立电梯前室,使用率可达125%;

198平偶数层套内面积为237.85㎡(含赠送面积),得房率120%,配以约7.82㎡的电梯前室,使用率可达124%;
目前谢老板就拿到这4款户型,后续新增也会持续更新,敬请期待。

总结一下
1、中海的四代住宅设计还是很惊艳的,虽然设计晚于万科·雲樾(产品定价不成立,短期很难开盘),中海·盛京玖章会是沈阳首个在售的第四代住宅洋房,也配备了【玖章•荟】会所;

2、中海盛京玖章的精装标准,大概会参考目前的【中海·领馆壹号】,略微提升细节,但不会达到领馆开盘时的高标准;
3、产品定价问题,谢老板凭经验预判:中海的小面积(109、124)均价在1.6-1.7万/平,中间段(132、143平)均价在1.8-2.0万/平,大面积(182、198平)均价在2.1-2.3万/平。
沈阳 中海·盛京玖章售楼处电话:400-8787-098转分机号5678【售楼处位置】
沈阳 中海·盛京玖章售楼处电话:400-8787-098转分机号5678【营销中心】
沈阳 中海·盛京玖章楼盘详情4008787098-转分机号5678(房价,价格,地址,户型图,交通,周边配套,备案价,楼盘详情,售楼处电话,售楼处地址,最新房源,最新价格,最新动态,最新进展等详情)