
建工·象山国际约80万方品质山居大盘,容积率≤3.04,绿化率40%。项目外瞰洋湖,内享中央山体公园,吸纳片区生态、教育、文化、商业等优势资源,于浅山之上打造集居住、商业、休闲于一体的全龄互动性复合社区,是一个极具引领性的全生命周期社区
项目为湖南建设投资集团旗下的湖南建投地产集团有限公司开发。湖南建设投资集团是一家具有房地产开发、城市综合运营等综合实力的大型千亿级国有企业集团,也是长沙最早涉足房地产开发的企业之一。致力于打造一流精品工程,连续18年入选“中国企业500强”、“中国承包商80强和工程设计企业60强
地段区位

洋湖西·象嘴路口
周边配套
1、交通
地铁:规划11号、13号线
过江大桥:猴子石大桥、湘府路大桥、黑石铺大桥
高速交通:接驳长潭西、长韶娄、绕城高速口、麓景路南延线(含浦/梅溪湖10分钟实现无缝对接)
2、教育
自建木结构幼儿园:配备18个班
配建博才·建业小学:2021年9月已开学
配套就读湖南师大附中博才实验中学(学士校区):前期业主均已按配套入学就读
配建长沙市图书馆24小时智慧分馆:已扩建开放
3、商业
宜家荟聚中心、龙湖天街、卓伯根、京东超级店等;此外项目自建商业如下:
商业面积:项目自持2.4万方特色商业街区
商业街开业:预计2022年12月
商业定位:“洋湖西·城市社交生活主场”
开业商家:麦当劳、茶颜悦色、桓球荟健身、零食很忙、黄小鱼童年美术馆、潮上鲜牛火锅、喜见烘焙等
签约商家:城市之间精品超市、食鉴家、盛小姐手工吐司等
招租信息:少量约60-300㎡旺铺火热招租
4、休闲
洋湖湿地公园、洋湖水街、李自健美术馆、谢子龙影像艺术馆等
5、医疗
医院配套:妇女儿童三甲医院(规划在建)、中医药大学第附属岳麓国际医院(规划中)
纯人车分流设计:为美好生活让行
环形跑步道:健康生活从此出发
架空层及延伸空间:打造邻里互动空间
规划休闲娱乐空间、儿童游乐空间:孩子快乐成长专属奇特天地
配建社区服务中心、养老照看中心、网红警务室等:绽放归心服务温暖
楼盘参数
开发商:湖南建投地产集团┃省属房产企业
产品 :70年产权普通住宅
交付标准:毛坯/精装
二期精装,三期D6789栋毛坯
占地面积 :约㎡
建筑面积: 961160㎡
容积率 :3.04
绿化率:约40%
梯户比:C10栋2梯2户,C11栋2梯3户,D6-9栋3梯3户
在售面积 :二期高层约170-174-193-227㎡,三期128-168-225㎡
价格 :毛坯1.1W,精装1.35W
总楼栋 :27栋(毛坯D区,精装C11栋)
总楼层:22-34层
单层高:2.92米
总户数:3936户
车位:约1比1.12
物业公司 :湖南建工七星物业
物业费:2.8元/㎡/月
交房时间:二期2025年4月,三期D789栋24年12月D6栋2025年9月

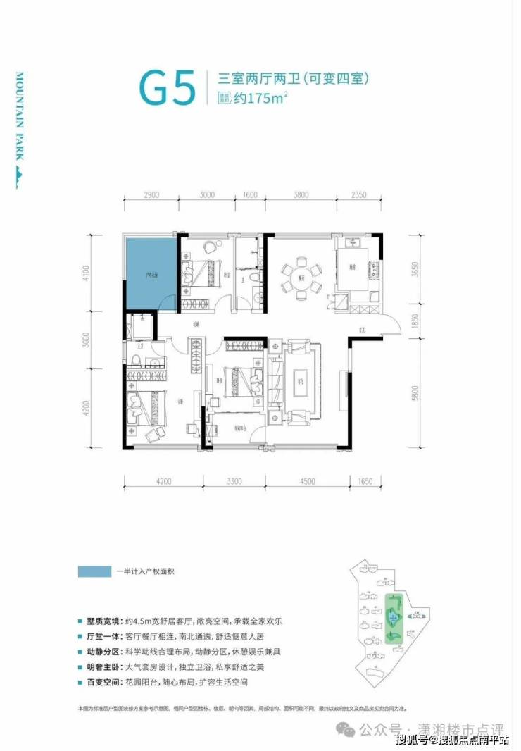
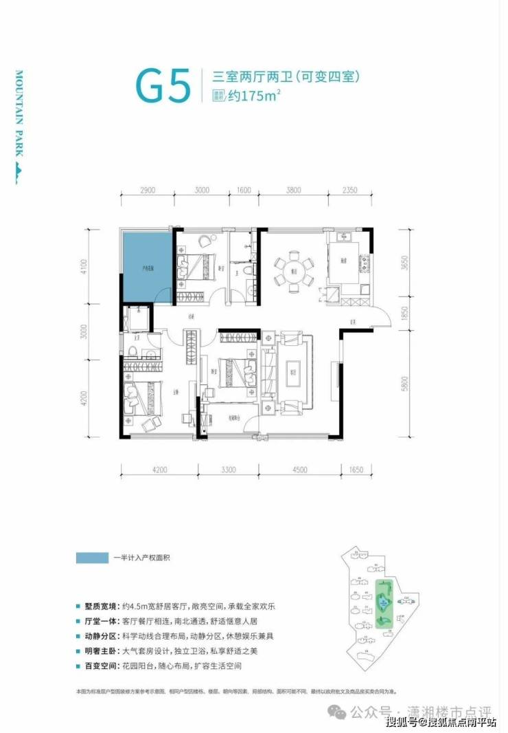
户型和样板间
象山国际三期坐落于台地之上,俯瞰小区内部约3万方中央公园,外揽洋湖湿地公园一线天幕巨屏景观,全能产品户型,覆盖刚需+改善型,全能配套,集生态环境、优质教育、繁华商业、书香文化、便捷交通、市政配套等于一身,打造一个自给自足的生态复合型社区,坐享项目价值兑现的大成之作

免责声明:本宣传资料所有文字、数据、图片及所标尺寸等仅为本项目建设区域设计效果的表达和示意,为要约邀请,不构成要约内容,相关内容不排除因政府相关规划、规定及其他原因而发生变化,一切有关房屋的具体信息以书面合同及政府最终审批文件为准。免责声明:本文章文字、数据和图片皆来源网络,如有侵权请告知立马删除,数据图片仅供参考,不作为邀约或承诺。