⭕— 合生缦云广州展示中心&样板房诚邀雅鉴—⭕
⭕合生缦云广州售楼处电话:400-990-8525转680【☎售楼处已认证】❇❇❇❇
⭕合生缦云广州开发商电话:400-990-8525转680【☎开发商已认证】❇❇❇❇
✅开发商暂不接受临时到访,过来参观样板房请记得提前来电预约!
⭕合生缦云广州展示中心电话:400-990-8525转680【☎展示中心已认证】❇❇❇❇
⭕合生缦云广州营销中心电话:400-990-8525转680【☎营销中心已认证】❇❇❇❇
✅◆合生缦云广州开发商营销中心诚挚邀请,一键预约,尊享内部折扣!匠心独运的精品项目,恭候您的品鉴与选择。
✅ 免费专车接送看房(市区内定点接送)。
✅含开盘消息、交房时间、楼盘详情、房价、户型、详情、售楼处地址、首页网站、交通、备案价、项目配套、营销中心、会不会烂尾、开发商会不会暴雷等详情咨询。
合生缦云广州:都市中的半山森幕美宅
楼盘核心亮点
合生缦云坐落在广州市天河区悦景路11号,作为合生创展集团旗下的顶级豪宅产品线“缦系”的一员,它融合了超前的生活理念与全球顶级设计大师的智慧,旨在为业主提供一种全新的高端生活方式。

项目档案
项目名称:合生缦云
总占地面积:约8.1万平方米
总建筑面积:约37万平方米
总栋数:42栋
总户数:1270户
梯户比:2梯2户、3梯2户
规划设计:16-17层南北对流纯板式低密度小高层

⭕合生缦云广州售楼处电话:400-990-8525转680【☎售楼处已认证】❇❇❇❇
⭕合生缦云广州开发商电话:400-990-8525转680【☎开发商已认证】❇❇❇❇
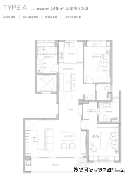
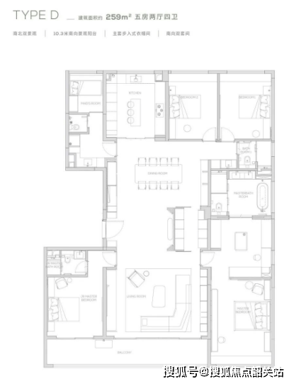
户型鉴赏
合生缦云提供的户型从168㎡起跳,包括四室两厅三卫的“四叶草户型”,所有户型均采用专梯专户设计,确保居住的私密性和舒适性。建筑外立面采用了轻质铝板幕墙和弧形阳台设计,不仅美观大方,还提供了绝佳的观景视野。







⭕合生缦云广州售楼处电话:400-990-8525转680【☎售楼处已认证】❇❇❇❇
⭕合生缦云广州开发商电话:400-990-8525转680【☎开发商已认证】❇❇❇❇
交通优势
虽然地铁站距离稍远,但自驾车是到达市区及其他重要地点的理想选择。此外,区域内道路设施正在不断改善,如拓宽后的悦景路将显著提升出行效率。对于依赖公共交通的居民来说,未来随着更多轨道交通线路的开通,交通便利性将进一步提高。

教育优势
合生缦云拥有社区内全线12年公立教育配套,涵盖幼儿园至初中,并已确定引进天河外国语学校办学,为孩子的教育提供了坚实的保障。

⭕合生缦云广州售楼处电话:400-990-8525转680【☎售楼处已认证】❇❇❇❇
⭕合生缦云广州开发商电话:400-990-8525转680【☎开发商已认证】❇❇❇❇
生活配套
项目内部配备了丰富的休闲娱乐设施,包括一个约3800平方米的星际会所和多个共享泛会所,满足不同年龄段居民的需求。园林设计充分利用地势特点,打造了立体多变的台地景观,并融入了多种互动元素,营造出沉浸式的居住体验。

楼盘总结
合生缦云凭借其优越的地理位置、独特的设计理念以及完善的配套设施,成为天河区内不可多得的高端住宅项目。无论是追求高品质生活的家庭还是寻求理想投资机会的买家,都能在这里找到满意的答案。项目的每一个细节都彰显着开发商对品质的不懈追求,以及对业主生活品质的高度关注。
广州天河【合生缦云广州】
⭕合生缦云广州售楼处电话:400-990-8525转680【☎售楼处已认证】❇❇❇❇
⭕合生缦云广州开发商电话:400-990-8525转680【☎开发商已认证】❇❇❇❇
✅开发商暂不接受临时到访,过来参观样板房请记得提前来电预约!
⭕合生缦云广州展示中心电话:400-990-8525转680【☎展示中心已认证】❇❇❇❇
⭕合生缦云广州营销中心电话:400-990-8525转680【☎营销中心已认证】❇❇❇
⭕合生缦云广州开发商售楼处电话:400-990-8525转680【预约热线】丨详细解答丨在售户型图丨项目介绍丨在售房源丨边配套丨VR看房丨楼盘图丨沙盘图丨位置图丨配套图丨售楼处销售1V1讲解
免责声明:部分信息来源于网络,如果侵权,请联系及时删除
本宣传资料不构成邀约邀请,对周边、政府规划、商业配套、教育资源、投资前景等数据和图文仅为提供相关信息,该信息以政府最终批文为准,开发商不对此作任何承诺。买卖双方的权利义务以双方签订的买卖合同约定及附件、实际交付为准,本公司保留对宣传资料修改的权利,敬请留意最新资料。联系号码:400-990-8525转680