昆山明月璟辰苑(售楼处电话)官方网站-2025明月璟辰苑最新房价_房型图_ 户型配套_小区环境_容积率_楼盘简介详情

搜狐焦点苏州站

2025-12-16 11:49:22

购房群

买房如何避坑,加入购房群,看看他们怎么说

立即进群

昆山明月璟辰苑售楼处电话:400-8828-814✔✔【预约热线】明月璟辰苑售楼处营销中心:400-8828-814明月璟辰苑售楼处电话/地址☎:400-882-8814(开发商热线)如有问题欢迎来电咨询,专业一对一热情服务,让您用专业眼光去买房。

点击输入图片描述(最多30字)

点击输入图片描述(最多30字)

最新消息

象屿地产& 保利置业

双高价值地产引领者

双500强联袂倾力城市大作

昆山花桥【明月璟辰苑】

明月璟辰苑售楼处电话☎:400-882-8814【售楼热线】✔✔✔

推约88~118㎡产品

共计1384户

全部精装交付!

点击输入图片描述(最多30字)

项目鸟瞰图

点击输入图片描述(最多30字)

点击输入图片描述(最多30字)

明月璟辰苑售楼处电话☎:400-882-8814【售楼热线】✔✔✔

项目基本信息

【开发商】:昆山象淳房地产开发有限公司

【占地面积】:约5.4万㎡

【建筑面积】:约19.6万㎡(地上约13.6万㎡)

【绿地率】:35%

【容积率】:2.5

【物业类型】:高层

【总户数】:1384户

【面积段】:约88~118㎡

【交付标准】:精装(装标不低于1500元/㎡)

【梯户比】:2梯4户、3梯6户

【车位配比】:1 : 1.25,总车位1713个

【物业公司】:象屿物业(国家一级物业资质)

【价 格】:以最终公示价格为准

01.

项目信息

项目位于昆山市花桥国际商务城新城区核心位置,金捷路与远创路交汇处。

点击输入图片描述(最多30字)

明月璟辰苑售楼处电话☎:400-882-8814【售楼热线】✔✔✔

项目由央企保利置业集团和国企象屿地产双500强企业强强联合打造,面向的是城市中产阶级及以上的群体,致力于打造花桥都市精英社区。

点击输入图片描述(最多30字)

明月璟辰苑售楼处电话☎:400-882-8814【售楼热线】✔✔✔

国企+央企强强联合,强大的开发商实力,无论是从建筑质量上还是从购房风险上都能使客户的权益得到保障。产品方面取两家所长,打造高端社区。

项目名称明月璟辰苑,也是备案名,有着美好的寓意。

明-交辉、明亮:城与家的交辉,花桥人居得境以明亮开朗;

月-皎洁、纯粹:月高挂以明空,赋予城市全新的生活注解;

璟-璞玉、光彩:全新品质居著,犹如玉般珍贵的生活品质;

辰-星辰、汇聚:日月星的统称,生活优秀质素的美好汇聚;

点击输入图片描述(最多30字)

建筑风格上,采用现代建筑风格,外立面选用米色及灰色石材和真石漆,配以精致铝板+大面积Low-e中空玻璃让社区体现现代化住宅的风格,高端大气、历久弥新。

点击输入图片描述(最多30字)

明月璟辰苑售楼处电话☎:400-882-8814【售楼热线】✔✔✔

点击输入图片描述(最多30字)

社区内部的园林景观设计颇有风格,以“城市花园 都市雅居”为主题, 社区内部打造了2万方的中心大花园串联多个不同主题的组团花园,满足了各种不同类型、不同年龄段、不同需求的业主的个性化需求。

点击输入图片描述(最多30字)

明月璟辰苑售楼处电话☎:400-882-8814【售楼热线】✔✔✔

相比较于周边很多楼盘1:0.6左右的车位比,该项目车位比高达1:1.24,共设有停车位1713个,以地下车位为主,可以满足住户的停车需求。

户型介绍

住宅楼共10栋,总套数1384户,楼高25-26层不等,楼栋排列错落有致,均为中央景观花园两侧的景观房,楼间距高达40~70米左右,在保证整体的采光度和透风性的同时,对景观资源充分利用,做到户户有景,是区域内不可多得的低密度高端人文社区。

点击输入图片描述(最多30字)

点击输入图片描述(最多30字)

户型图解析

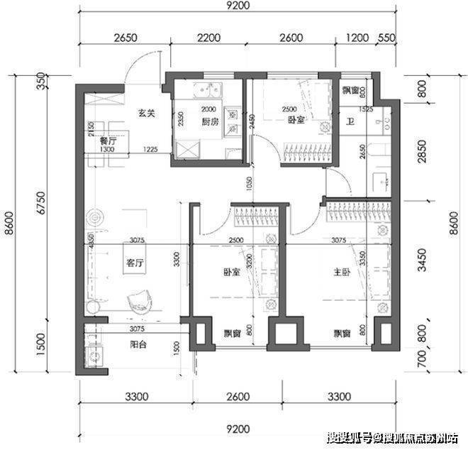
88㎡户型三房两厅一卫

点击输入图片描述(最多30字)

明月璟辰苑售楼处电话☎:400-882-8814【售楼热线】✔✔✔

户型解析:主打产品88㎡户型布局为三房两厅一卫,三开间朝南,全明无暗间,南向两个卧室带全尺寸飘窗,是目前市场上非常热销的稀缺户型。在有限的产权面积下最大化的做出了使用空间和功能分区,十分值得考虑。

98㎡户型三房两厅两卫

点击输入图片描述(最多30字)

户型解析:轻奢改善产品,面积不过百却做到了3房2厅2卫的设计,户型方正,全明通透,采光充足,同时做到了三开间朝南的布局和南向联通双阳台设计。

118㎡户型四房两厅两卫

点击输入图片描述(最多30字)

户型解析:精品改善产品,极致的设计做到了4房2厅2卫,整个户型非常方正,全明通透,采光充足。最关键的还做到了三开间朝南的布局和南向联通双阳台设计,在整个昆山都是难得一见。

值得注意的是,该项目全部精装交付,避免交付后二次装修对公共部位的破坏及噪音影响,省时、省力、省心。

03.

周边配套

交通配套:项目距离S1号线(在建中)展览中心站约800米,与上海地铁11号线在花桥站同站换乘;临近城市主干路(东城大道与绿地大道);多条公交线路可以直达花桥地铁站和花桥全区、昆山市区,绿色出行,方便老幼;轨交、高速、国道、城市主干道等立体交通网络覆盖,轻松畅达上海、昆山及苏州市区,30分钟理想半径近享都会全维生活。

点击输入图片描述(最多30字)

明月璟辰苑售楼处电话☎:400-882-8814【售楼热线】✔✔✔

S1号线(在建中)-展览中心站800米

苏州首条市域轨道交通线路,是苏州轨道交通线网中首条与上海轨道交通线网对接的轨道交通线路;苏州轨道交通S1线,线路全长41.27千米,共设置28座车站。

商业配套:项目2km内中科院商业街、花桥梦世界(在建中)、绿地未来中心(待开业)、规划中的大型商业综合体(项目东侧约500米)等繁华商圈汇聚,悠享都会生活。

教育配套:项目2km内有集善幼儿园、集善小学、金城小学、集善中学、花桥高级中学、花桥中专等幼儿园到高中全龄化公立教育配套,和苏州外国语昆山校区、华东康桥国际学校两所国际学校,教育资源丰富。

点击输入图片描述(最多30字)

医疗配套:项目南侧约2km新建成的昆山市中西医结合医院,2021年底正式开始运营。

项目往东约5km即可到达东方绿地医院(三级综合医院),其服务范围立足于花桥,面向长三角,为花桥周边及全国各地的患者提供优质的医疗服务。

点击输入图片描述(最多30字)

生态资源:周边2km范围内有集善公园、周浦河湿地公园、花桥生态湿地净水公园等6大公园环绕,环境优美。

点击输入图片描述(最多30字)

明月璟辰苑售楼处电话☎:400-882-8814【售楼热线】✔✔✔

04.

区域前景

用关键词来概括项目所处的花桥地区,那就是:环沪首站、十四五规划、长三角一体化。

花桥东邻上海市嘉定区安亭镇,距离上海市中心不到25公里,距虹桥交通枢纽20公里,三面环沪,素有“江苏东大门,上海后花园”之称。随着长三角一体化发展,花桥作为昆山对接上海“桥头堡”,不断加速推进与上海在交通、产业、科创、生活等多方面的融合发展。

区域联动,交通先行。

上海地铁11号线是国内首条跨省轨道线,2013年正式开通运营,日均客流量超5万人次,花桥段打破昆山-上海轨道交通壁垒,从此“双城”变“同城”。

不仅如此,沪宁高速、312国道、上海绕城高速等道路在此交汇,C7跨省公交专线也已开通,还有在建中的轨道交通S1线与上海11号线在花桥站同站换乘,共同构建了无缝对接上海的城市多维交通体系。

产业方面:花桥积极深化与上海的产业协同,推进花桥-虹桥“双桥”联动,深化与上海大数据产业联盟、长三角大数据产业联盟等交流合作,推动与陆家嘴金融区等协同发展。

科创人才方面:花桥发挥得天独厚的临沪区位优势,依托昆山复旦科技园、花桥跨国联合创新空间、可可空间等上海资源集聚的平台优势,加快集聚高层次创新人才,全面推进花桥国际创新港建设,着力打造成为长三角人才创新创业首选地。随着越来越多的上海科创资源和人才来花桥创新创业,花桥楼市也将迎来更多居住需求。

发展前景:2019年5月,花桥与上海市安亭镇、白鹤镇共同签署《“安亭—花桥—白鹤”城镇圈一体化高质量发展战略合作协议》,共同打造长三角更高质量一体化发展的样板区。

2021年2月,在国务院批复的虹桥国际开放枢纽“一核两带”功能布局中,昆山被纳入以虹桥商务区为起点延伸的北向拓展带。花桥将打造成为虹桥国际开放枢纽北向拓展带的战略支点和核心节点,让花桥与上海的联系更加紧密。

点击输入图片描述(最多30字)

重磅土拍,地铁口大型商业综合体即将土拍,就在项目旁边

昆山明月璟辰苑售楼处电话:400-8828-814✔✔【预约热线】明月璟辰苑售楼处营销中心:400-8828-814明月璟辰苑售楼处电话/地址☎:400-882-8814(开发商热线)如有问题欢迎来电咨询,专业一对一热情服务,让您用专业眼光去买房。

全部

相关资讯

报名成功
稍后会有专业的置业顾问联系您
返回楼盘

频道导航

返回首页

看房小程序

APP下载

电话拨通后,请您手动拨打分机号

确定拨打电话

电话号码:

分机号:(可能需要拨分机号)