定了!园区绿城湖西项目
再爆新动态!
项目城市展厅正式公开
案名就叫:凤起潮鸣
项目打造42栋3-17F住宅产品
业态涉及联排+洋房+小高!
有单独会所+泛会所
超级户型同步曝光,一起来看
咨询热线:18662309054
1
案名:凤起潮鸣
绿城湖西地块城市展厅正式公开
万众瞩目,热点十足!园区绿城科技园地块继规划之后!
近日项目位于w酒店2楼7号会议室
的城市展厅正式公开
案名也正式公布就叫:凤起潮鸣。
凤起潮鸣,是绿城典型的凤起系作品,起源于杭州,自2016年凤起潮鸣一战封神后, 便成了顶豪市场代表词,也是绿城TOP级豪宅产品线。
该产品系要求十分严格,唯有占据核心地段、目前主要项目包括杭州凤起潮鸣、宁波凤起潮鸣、义乌凤起潮鸣、台州凤起潮鸣等,目标客群为高净值人群,主打高端平层与大平层产品。

咨询热线:18662309054
此次,绿城将目光锁定在金鸡湖这片承载着苏州至高理想的土地上。这背后,是绿城对苏州城市价值的深刻洞察,更是对苏州城市文化的尊重和致敬。值得期待。
咨询热线:18662309054
2
园区发展三十年之精华
凤起系首落湖西
绿城·凤起潮鸣属于大湖西核心,这里不仅是苏州的经济、文化中心,更是国际滨水生活的典范。整个项目位于东板桥河西、金鸡湖大道南。
是在2025年3月21日, 由绿城以约 53亿的总价斩获,当初竞价超182轮!热度非常高!成交楼面价高达40684元/㎡,溢价率45%。

地块周边 3、5、7号线三轨交汇,3站即达苏州中心,北侧紧邻金鸡湖大道,往西直通古城、往东直达湖东。
地块位于湖西CBD以南片区, 三面临水,咫尺5A级金鸡湖景区、独墅湖景区,紧邻湖西中央商务区,拥有着东方之门、苏州中心等城市顶级配套。
星海小学、星海实验初中、金鸡湖学校、苏大附中等学校环伺;苏州工业园区星海医院往南500米可达;水坊路邻里中心、大润发、星尚邻里等商业配套齐全。
这里北接CBD 的璀璨繁华,西承姑苏千年的历史气韵,东揽金鸡湖与独墅湖的潋滟波光,既有城市的便捷与活力,又有难得的宁静与诗意,是真正实现了繁华与自然的完美融合的好地方。
上一次半盔有新房是2023年入市的湖西观云(已售罄),容积率1.8,17-24F小高层,备案均价5.48万/m²。
可以预见, 绿城·凤起潮鸣的到来,又将是苏州楼市豪宅的新传奇,出场即炸场!目前项目城市展厅已经公开,喜欢的可提前关注起来。
咨询热线:18662309054
3
三面环湖
园区湖西难得墅区,未来要抢
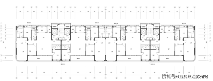
产品方面:
根据规划, 绿城·凤起潮鸣根据“一面城市三面湖”的半岛型地块,错落布局合院、洋房、中高层等产品形态,让建筑仿佛生长在湖岸之上,成为湖景的一部分,为苏州著写新的精神流域。
拟建42栋3-17F住宅,是湖西近十年都难得的低密墅区,非常稀缺。其中包括:
26栋3F联排
13栋6-11F洋房
3栋17F小高层

从规划图还可以看出, 项目北侧打造了下沉庭院,小高层与洋房一层采用架空设计,搭配完善的会所体系,高端属性拉满。
大面积的玻璃幕墙搭配铝板,加之弧线流线的精妙设计,处处彰显出高级质感,尽显雅致格调!

公示的洋房和联排部分户型如下。
洋房户型,约190平:
标准层面图:

户型图详情:
户型方正,四开间朝南,奢阔南向面宽达约16.9米,尽显空间掌控力;约9.3米南向贯通阳台衔接6米客厅;南向3个卧室均采用大面宽设计,采光与舒适兼得;

咨询热线:18662309054
主卧配置小书房、步入式衣帽间及卫浴5件套,私享尊崇起居;
厨房贴心规划家政间,让后勤动线更显从容;边户转角主卧拥 IMAX 级 270° 环幕视野,风光尽揽无余!
联排1层户型:
一层平面图:
别墅100套左右,东边户是大户型,面积300平左右;中间户260-270平。

东边户后期是楼王大户位置,南向奢阔开间约12.1米,客餐厅一体化设计,配备独立明厨与星级公卫,空间尺度感满满。

项目立面图:
洋房南立面图:非常流畅的造型,首层高3.6米,很多楼栋有架空设计,其余层高3.15米

联排立面图:坡屋顶,大面积玻璃,跟逸庐有点像。首层3.6米,二层3.3米,三层高3.2米。

根据地块规划条件,肯定是超级顶奢:
全装修住宅,装修标准不低于5000 元/㎡;分割销售单元为非单层的住宅,可选择实施全装修。

项目位于w酒店2楼7号会议室
的城市展厅正式公开
咨询热线:18662309054