保利新江湾(售楼处) 官方电话 - 2026保利新江湾销售中心 - 环境 - 户型 - 价格 - 地址 - 楼盘详情 - 配套 - 电话 - 交房时间

搜狐焦点苏州站

2026-03-18 10:53:39

购房群

买房如何避坑,加入购房群,看看他们怎么说

立即进群

保利新江湾售楼处电话☎400-8228-664✔✔✔

案场限流 看房请务必提前来电预约登记

保利新江湾售楼处电话☎:400-8228-664

保利新江湾营销中心电话:400-8228-664←【预约热线】

最新消息

保利发展杨浦新江湾项目

即将上市!

将打造洋房+叠加+联排低密生态氧吧

将推出建面约103-140㎡洋房

建面约160-185㎡叠拼

以及建面约192-320㎡合院产品

保利新江湾售楼处电话:400-8228-664✅︎✅︎✅

2025年9月3日,杨浦新江湾E1-08A地块由保利发展与上海地产通过股权转让联合拿下。出让总价37亿元,成交楼面价5.89万元/㎡。项目容积率仅约1.1,限高约20米。

其土地面积约5.71万㎡,建筑面积约6.28万㎡,住宅套数下限为455套;这也是保利发展首次在新江湾城板块拿地。

根据最新网传消息,项目预计建造约238套100-139㎡6层洋房,48套160㎡叠墅(上下叠),68套170㎡叠墅(上下叠),47套190㎡联排别墅,24套215㎡联排别墅,11套260㎡联排别墅,2套350㎡联排别墅。

保利新江湾售楼处电话:400-8228-664✅︎✅︎✅

保利新江湾售楼处电话:400-8228-664✅︎✅︎✅

项目容积率仅1.1,打造两面环水景观低密社区,建造明确有会所。

地块本身就处于新江湾城湿地和水系包围之处,从小区的楼栋分布图来看,滨河的基本都是大面积的联排别墅户型,景观应该相当不错。

保利新江湾售楼处电话:400-8228-664✅︎✅︎✅

项目南侧不远处是杨浦德法学校,再往南就是目前新江湾城板块在售的新盘建发海宸,未来入市,相信能和建发海宸形成协同作用,共同提升新江湾城板块的居住焕新价值。

让我们来看看公开文件展示的部分过程稿户型图,户型很多,仅展示一部分。

特别声明哈,以下户型图仅为招标过程中的过程稿版本,最终以开发商公示为准!

约100-139㎡的洋房户型图

保利新江湾售楼处电话:400-8228-664✅︎✅︎✅

保利新江湾售楼处电话:400-8228-664✅︎✅︎✅

保利新江湾售楼处电话:400-8228-664✅︎✅︎✅

约160-170㎡的叠墅户型图

保利新江湾售楼处电话:400-8228-664✅︎✅︎✅

保利新江湾售楼处电话:400-8228-664✅︎✅︎✅

保利新江湾售楼处电话:400-8228-664✅︎✅︎✅

保利新江湾售楼处电话:400-8228-664✅︎✅︎✅

保利新江湾售楼处电话:400-8228-664✅︎✅︎✅

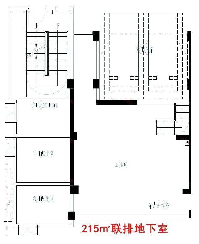
约215㎡的联排户型图

保利新江湾售楼处电话:400-8228-664✅︎✅︎✅

保利新江湾售楼处电话:400-8228-664✅︎✅︎✅

保利新江湾售楼处电话:400-8228-664✅︎✅︎✅

保利新江湾售楼处电话:400-8228-664✅︎✅︎✅

保利发展此次立足于新江湾城再启新章,秉持江河共建的匠心,持续赋能杨浦,继续让板块再度沸腾,致献更新的国际人居低密典范。

新江湾坐拥9.45平方公里原生湿地、60%绿化覆盖率,PM2.5浓度常年低于市区20%,堪称上海主城罕见的“绿宝石”。

未来,在上海主城这样极度稀缺的地块,保利发展将集全国之力,聚全城资源,在新江湾再创巅峰之作——主城稀贵1.1低密(近10年上海出让的1.1容积率以内的住宅用地仅占2-3%)、正南北朝向的墅质洋房和滨水别墅

项目毗邻城市副中心五角场,周边合生汇、江湾里等大型商业环伺,满足高端消费需求;尚浦领世、字节、叠纸、汉高、耐克大中华区总部等7000余家科创企业环伺,形成“产城文化生态”深度融合的第三代国际社区。

上海乃至全国的顶级高校,复旦大学、同济大学、上海财经大学都在新江湾城。这些顶级学府营造了新江湾城浓厚的人文氛围,并为板块产业发展提供了源源不断的人才资源。

保利新江湾售楼处电话:400-8228-664✅︎✅︎✅

除却知名高校资源,新江湾城的基础教育也非常拔尖,同济一附中、兰生复旦中学、复旦二附中、上音实验学校、复旦科技园小学、中福会幼儿园、德法学校等名校为新江湾城居民的子女提供着优质的中小学教育。

产业方面,新江湾城作为杨浦超大规模产业园区的落户地,坐拥湾谷科技园、复旦软件园、创智天地3大产业园,集中了科技金融机构460家、科技型企业7000余家,其中耐克、IBM、AECOM、西门子、李尔、硅谷银行等跨国公司地区总部、研发中心纷纷落户。

保利新江湾售楼处电话:400-8228-664✅︎✅︎✅

新江湾E1-08A地块,不仅是保利发展参与上海城市更新的缩影,更是中国城市文明进阶的缩影——在这里,低密是敬畏,生态是天赋,而共建共生的理想,终将定义下一个城市国际传奇水岸墅区,成为绿宝石之上的永恒光辉。

保利新江湾售楼处电话:400-8228-664✅︎✅︎✅

保利新江湾售楼处电话:400-8228-664✅︎✅︎✅

保利新江湾售楼处电话:400-8228-664✅︎✅︎✅

保利新江湾售楼处电话:400-8228-664✅︎✅︎✅

保利新江湾售楼处电话:400-8228-664✅︎✅︎✅

保利新江湾售楼处电话:400-8228-664✅︎✅︎✅

全部

相关资讯

报名成功
稍后会有专业的置业顾问联系您
返回楼盘

频道导航

返回首页

看房小程序

APP下载

电话拨通后,请您手动拨打分机号

确定拨打电话

电话号码:

分机号:(可能需要拨分机号)