最近,楼市又传来重磅利好!国家刚刚发布新政,个人销售购买2年以上的住房,将免征增值税。这不仅降低了二手房的交易成本,更传递出稳定市场、支持合理住房需求的积极信号。政策暖风频吹,正是关注苏州优质房产的好时机。而今天要说的这个项目,堪称当下政策与品质结合的典范——位于大狮山商务区的山岚璟庭,一座融合东方美学与山居意境的纯洋房社区。

山岚璟庭官方售楼处电话:400-8800-736;置业顾问:18662309054(微信同号)
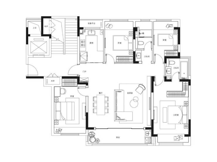
项目名片 项目名称:山岚璟庭 地块信息:苏地2022-WG-10号地块 项目地址:苏州高新区枫桥街道华山路北、朝红路西 开发品牌:苏高新地产 地块指标:占地4.4万方,容积率1.2,总建8.5万方 住宅规划:拟建11栋8-10F住宅,共计411户 户型配置:约105㎡3房2卫、建筑面积约148㎡4房2卫 交付标准:全屋精装,精装三大件 物业服务:新永物业,交房时间预计为2025年6月 车位配比:1:1.6 价格信息:成交楼面价13000元/平;备案均价29500元/平
区域配套:住在城市发展的“心脏”地带
这里可是苏州高新区未来发展的核心——狮山商务创新区。按照规划,这里要打造成长三角的商务、创新、外贸中心,简单说,就是未来的“城市会客厅”。大量世界500强、数字创新企业都往这里聚,带来的都是高收入、高学历的人才,为区域房产价值提供了坚实支撑。
生活上更是要啥有啥。出门就有有轨电车,规划中的地铁9号线也在附近,开车上中环、北环都很方便,交通便利是项目一大亮点。逛街?龙湖天街、金鹰、美罗、泉屋…大狮山的繁华商圈都在生活圈里。想亲近自然?旁边就是高景山、大阳山森林公园,还有白马涧、苏州乐园等4A景区,简直是“出则繁华,入则宁静”的完美写照,满足了人们对改善型住宅的向往。孩子上学有苏外、景山中学等好学校,家人健康也有高新区人民医院、明基医院等多家优质医院保障。
品牌价值:苏高新匠造,不止是房子,是作品
山岚璟庭由国企苏高新地产开发,品质有保障。项目设计上花了大力气,用的是经典的新中式风格,看起来大气又雅致,很有东方韵味,体现了新中式住宅的美学追求。
更难得的是,整个小区全是8-10层的纯洋房,容积率只有1.2,楼间距大,绿化多,住起来特别安静、舒服,私密性也好,是典型的低密度社区。社区里还精心设计了“一轴八景”的园林,有三重归家礼序,就像把苏州的山水园林搬回了家,营造出独特的山居意境。
小区里还为全家人准备了活动空间,孩子有游乐场,年轻人有跑道和健身区,长辈有林下花园可以散步聊天,真正考虑到了每个年龄段的需求,是理想的家庭宜居社区。
户型鉴赏:阔绰空间,装满一家人的幸福
目前主推两种户型,都是亲地的纯洋房。 一种是建面约105㎡三房两卫,格局方正,功能齐全,是很多精英家庭的品质首选,总价控制得当。 另一种是建面约148㎡四房两卫,空间非常阔绰,大面宽,采光极好,主卧是带卫生间的套房,居住舒适度和私密性都更高,堪称大平层户型的舒适典范。
优势分析:细节见真章,装修都配齐一线大牌
买山岚璟庭,可以说是“拎包入住”的顶配。全屋精装交付,而且用的都是叫得响的大品牌:东芝中央空调、松下新风、威能地暖,这三件套就值回票价。厨房配的是欧派橱柜、老板灶具;卫生间用的是汉斯格雅的花洒和杜拉维特的马桶……这些细节,处处体现了开发商对品质住宅的诚意和用心。
山岚璟庭官方售楼处电话:400-8800-736;置业顾问:18662309054(微信同号)
于此安家,预见一座山的丰盛未来
结合最新的政策导向和山岚璟庭自身的硬核素质,它的未来清晰可见。政策在鼓励长期持有和改善居住,而这恰恰是低密纯洋房社区的核心价值所在。占据狮山发展极核,享受当下醇熟配套的同时,更牢牢握住了区域未来十年爆发的红利。
选择山岚璟庭,不仅是选择了一处拥有真山真水的诗意居所,更是选择了一份随着城市共同生长的资产,一个融合了东方礼序与现代舒适的圈层生活场。在这里,每一天都是与繁华共舞,与自然同息,实现您对苏州高新区房产的美好期待。
山岚璟庭官方售楼处电话:400-8800-736;置业顾问:18662309054(微信同号)