2025年6月6日,安居福汇阁项目47套建面约70-89㎡二至三房户型,正式启动配售。项目位于宝安区福海街道,总建面约13万㎡,规划总户数944户(其中可配售房源552套),目前均为现房配售,全实景呈现,所见即所得。
·配售公告·

·本次配售信息·
配售房源套数:47套
配售房源所在楼栋:2栋A座23套、C座24套
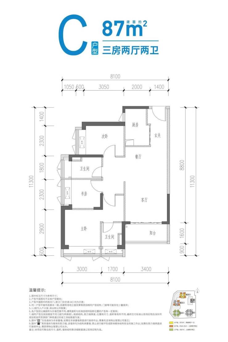
配售户型:建筑面积约70-89㎡二至三房(建筑面积约70㎡的两房15套,建筑面积约87-89㎡三房32套)
配售均价:约30400元/㎡(按建筑面积,毛坯交付)
·申购地址·
·申购政策·
认购本批次住房,按照申请家庭资格条件,分为四个队列,具体如下:

·配售方式与配售程序·
本批次住房实行集中认购、分队列摇号排序选房。
(一)认购申请方式
认购申请家庭可线上提交认购意向。
(二)选房方式
本批次住房按两房户型和三房户型分别组织选房。选房顺序通过公证摇号确定(高层次人才、高精尖缺人才除外)。
两房户型的选房队列顺序依次为第一队列、第二队列、第三队列;三房户型的选房队列顺序依次为第一队列、第二队列、第三队列、第四队列。同一选房队列中,高层次人才、高精尖缺人才优先选房,选房顺序依次为高层次人才、高精尖缺人才。其中,高层次人才选房顺序按照高层次人才证书发放时间(以证书编号的年月日为准)的先后顺序确定,证书发放时间相同的,选房顺序按照认购编号先后顺序确定;高精尖缺人才选房顺序按照认购编号先后顺序确定。
其他认购申请家庭由公证摇号确定的顺序依次选房,房源选完即止。认购申请家庭选房时,只能在其认购意向项目中选择一套房源。
(一)线上申请认购
申请人进入深圳市住房和建设局网站—政务服务—服务主题—住房保障服务—面向人才配售住房申请(“住房保障个人服务窗口”上方)填报申请信息,线上提交申请材料,同时签署诚信申报声明,对申请材料和申报信息的真实性、准确性、合法性负责。申请人成功提交认购申请后系统自动生成认购编号,该编号作为后续进行公证摇号的号码(高层次人才、高精尖缺人才除外)。
线上申请认购时间为2025年6月6日18:00至2025年6月22日18:00。认购截止日前未线上提交认购申请的,视为放弃认购,认购截止日后不再受理认购申请。认购申请家庭需调整认购意向的,应当于认购截止日前登录深圳市住房和建设局网站进行变更,逾期不予变更。
认购申请家庭已签订其它保障性住房项目认购协议书且仍有效的,不接受此次认购申请。
(二)看房
看房安排以《关于面向人才配售住房有关事项的通知》(2025011-6)为准。
(三)认购资格审核结果公示
深圳市宝安区住房和建设局会同相关部门对全部认购申请家庭进行资格审核。审核结果将在深圳市宝安政府在线网站公示5个工作日。认购申请家庭如需放弃本次认购申请,应当在公示期内登录深圳市住房和建设局网站提交放弃认购申请。
认购申请家庭对资格审核结果有异议的,应当在公示期间持相关证明材料向深圳市宝安区住房和建设局提出异议申请。公示期满后,不再受理认购申请家庭异议申请。
深圳市宝安区住房和建设局对认购申请家庭异议申请进行复核。异议成立的,更正认购申请家庭审核结果,并在深圳市宝安区政府在线网站发布终审合格认购申请家庭名单。
(四)公证摇号
终审合格认购申请家庭名单发布后,深圳市宝安区住房和建设局将发布本批次住房配售摇号公告。由公证处对终审合格的认购申请家庭(不含高层次人才、高精尖缺人才),通过摇号方式分别确定本批次住房两房户型和三房户型各队列认购申请家庭的选房顺序号,摇号结果在深圳市宝安政府在线网站发布。
(五)发布选房通告
深圳市宝安区住房和建设局根据公证摇号确定的选房顺序号及高层次人才所持高层次人才证书发放的时间顺序或认购编号先后顺序、高精尖缺人才的认购编号先后顺序,确定本批次住房终审合格认购申请家庭的选房顺序及选房名单,并在深圳市宝安政府在线网站发布本批次住房的选房通告及选房名单、选房顺序。
(六)选房及签约
选房通告及选房顺序、选房名单发布后,认购申请家庭即可登录深圳市住房和建设局网站,在线打印《选房通知书》。
认购申请家庭须按《选房通知书》规定时间到指定地点,并按照选房顺序依次选房,房源选完即止。
认购申请家庭选定房号后,应当签订认购协议书。
认购申请家庭应按照认购协议书的规定时间缴纳购房款并签订住房买卖合同。未在规定时间内缴纳购房款、签订买卖合同的,视为主动放弃本次认购。
·宝安实景现房大社区·
已交付全现房| 实景呈现大社区
园林植被、建筑工艺、户型空间全实景呈现;以“自然共生"理念打造约1.8万㎡现代景观,园林以特色铺装串联廊架、景墙与种植池,乔灌草群落错落有致,融入智能照明与节水技术,设有儿童区、成人健身休闲区,满足一家人需求,感受真实可触的安居生活。
·现享配套 成熟宜居生活·
现享交通|工作生活轻松切换
距地铁11号线桥头站约900米,距地铁12号线桥头西站约1.4公里,享高效通勤圈。临富桥大道、宝安大道、福洲大道等宝安主干道;驾车约19公里宝安中心,约25公里南山中心,约36公里福田中心。(以上距离来源百度地图,具体以实际为准)

现享教育|优质教育资源密集
项目配建9班幼儿园,同时周边优质教育资源密集,距公办福桥小学约50米、九年一贯制公办桥头学校约500米、立新湖学校约1.2公里、塘尾万里学校约1.4公里,公办福永中学约2.7公里。(入学积分政策、学区范围划分、具体招生信息以教育局公布的招生政策为准。距离来源百度地图,具体以实际为准)
现享商业|西部消费新中心旁
自身配建约9000㎡社区商业,距唐美商场直线距离约800米,约2公里范围内可达华强广场、约6万㎡百港城、约10万㎡同泰时代广场,约3km范围内可达约50万㎡鸿荣源壹方商业(在建)、约20万㎡万丰海岸城购物中心,便利生活尽在掌握。(距离来源百度地图,具体以实际为准)
现享文体|邂逅松弛自然生活
西侧约300米即达福海足球体育公园,约700米桥头社区公园、约1.5km范围内福海儿童公园、立新湖公园,立新湖公园占地约1.9平方公里、水域面积约1.2平方公里,约8.8公里环湖绿道串联栈道、观景台,园内约2000㎡月季园,约70种月季,周末全家散心好去处。(距离来源百度地图,具体以实际为准)

现享医疗|家人健康安心守护
项目配建约1000㎡社区健康服务中心,距离约3公里福永人民医院(二甲),距离约4.5公里深圳中西医结合医院(三甲)。(以上距离来源百度地图,具体以实际为准)
·建面约70-89㎡二至三房现房·
左右滑动查看更多
来源:深安居